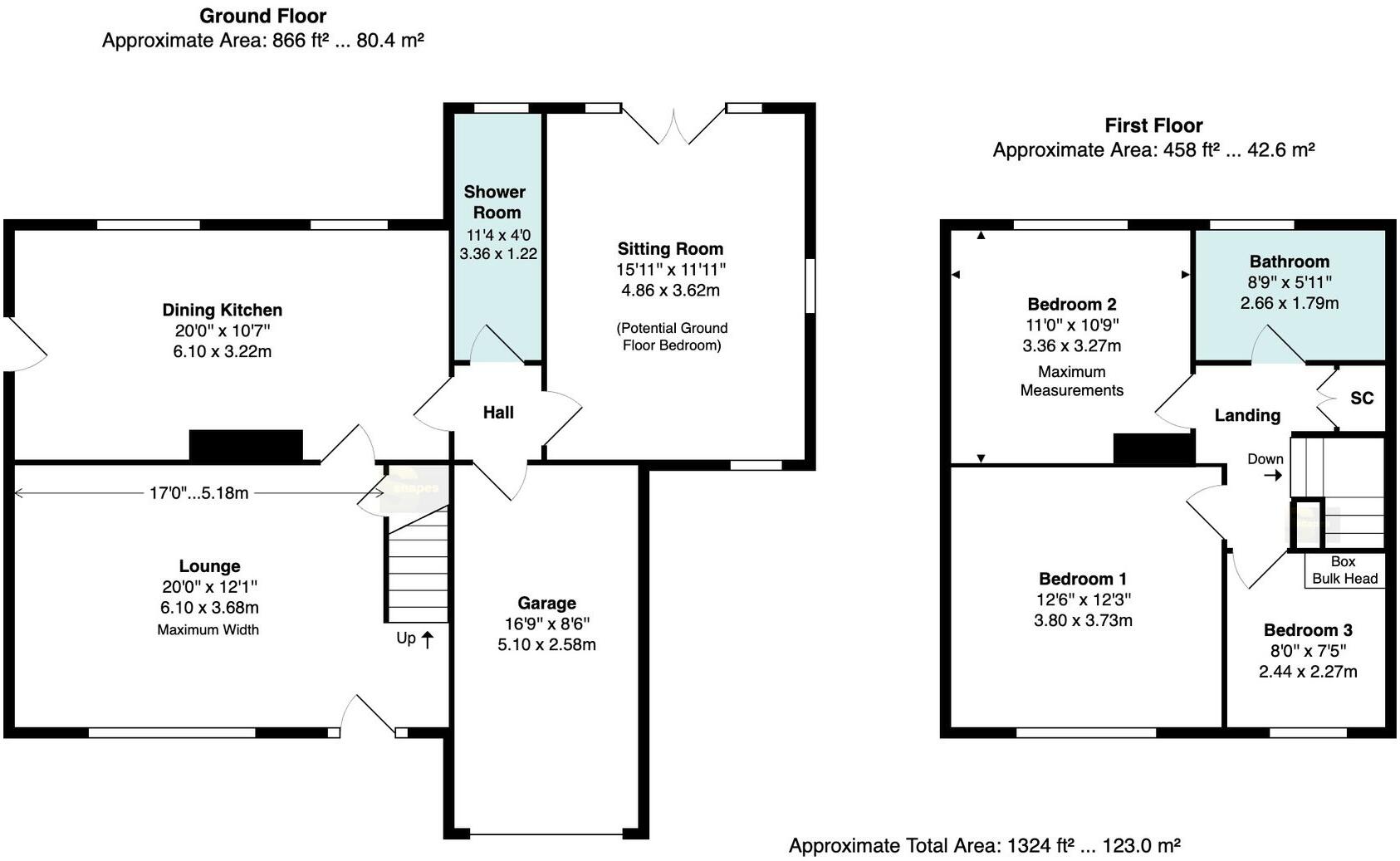
Spacious three-bedroom house with expansive private garden and garage.
No onward chain — available to move straight into
Large landscaped rear garden with mature trees and sun terrace
Attached garage with electric roller door, driveway parking
Two large 20ft reception/dining spaces; flexible ground-floor use
Ground-floor shower room plus upstairs family bathroom with jets
Broadband speeds reported very slow locally — check providers
Council tax above average; nominal rent charge £6 per year
Built mid-20th century — check services/survey for updating needs
This well-presented three-bedroom detached home sits on a large plot in a quiet Bramhall street, offered with no onward chain. The property delivers generous living space across two reception rooms and a 20ft-wide dining kitchen, plus a useful ground-floor shower room and an upstairs family bathroom.
Outside, the block-paved driveway and attached garage (electric roller door, light and power) provide practical parking and storage. The rear garden is a standout feature — an extensive, landscaped lawn with mature evergreens, fruit trees, raised rockery and a two-level sun terrace, offering privacy and strong outdoor potential.
Internally the layout is traditional and spacious, with good natural light and built-in storage. The second sitting room with patio doors could serve as a ground-floor bedroom or home office if required. The home dates from the mid-20th century and has double glazing and a gas boiler with radiators.
Practical points to note: broadband speeds are reported very slow locally, council tax is above average, and there is a nominal rent charge of £6 per annum. Prospective buyers should arrange their own surveys and utilities checks; the property is freehold and chain free, making it suitable for families seeking space or buyers looking for a roomy, single-family home with a large garden.
3 bedroom detached house for sale in Langdale Road, Bramhall, SK7 — £449,950 • 3 bed • 1 bath • 1340 ft²
3 bedroom house for sale in Eskdale Avenue, Bramhall, SK7 — £525,000 • 3 bed • 1 bath • 1102 ft²
3 bedroom semi-detached house for sale in Dalston Drive, Bramhall, SK7 — £549,950 • 3 bed • 1 bath • 1195 ft²
3 bedroom detached house for sale in Ladythorn Grove, Bramhall, SK7 — £700,000 • 3 bed • 1 bath • 1512 ft²
3 bedroom detached house for sale in Ladythorn Grove, Bramhall, SK7 — £795,000 • 3 bed • 2 bath • 2047 ft²
3 bedroom detached house for sale in Laleham Green, Bramhall, SK7 — £435,000 • 3 bed • 1 bath • 1033 ft²










































































































