SK7 1DX - 3 bedroom house for sale in Eskdale Avenue, Bramhall, SK7

View on Property Piper

3 bedroom house for sale in Eskdale Avenue, Bramhall, SK7

Summary - 54 ESKDALE AVENUE BRAMHALL STOCKPORT SK7 1DX

3 bed 1 bath House

**Standout Features:**
- Fully refurbished, move-in ready modern home
- Spacious open-plan living area with contemporary design
- Large separate lounge and good-sized utility room
- South-facing landscaped garden with composite sun decking
- Off-street parking and low ground rent
- Located in a sought-after residential area, close to excellent schools

**Summary:**
Discover this beautifully refurbished three-bedroom link-detached house in the highly desirable area of Bramhall. Boasting a modern open-plan living space and a separate large lounge, this home is perfect for families looking for comfort and convenience. The contemporary kitchen area invites family gatherings, while the sizeable utility room and downstairs WC add practicality to daily life. Upstairs, a modern bathroom and additional WC cater to the household’s needs, bathed in natural light from the rear aspect.

Step outside to a stunning south-facing landscaped garden, featuring composite sun decking and lush lawn—ideal for relaxation or entertaining guests. This property offers excellent connectivity with fast broadband and off-street parking. With renowned schools nearby, this home promotes family-friendly living in an affluent community. Act quickly to seize this exclusive opportunity, as the proposed plan for new homes at the rear may impact privacy.

The property is not only a comfortable sanctuary but also a smart investment in a thriving neighborhood—embrace modern living in this exceptional Bramhall family home!

Property Details

Image Descriptions

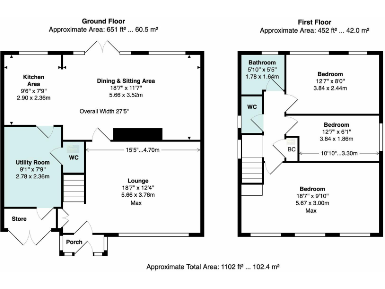
Floorplan Description

Rooms

Textual Property Features

Detected Visual Features

EPC Details

Nearby Schools

Nearest Bars And Restaurants

,,,,}

Nearest General Shops

,,}

Nearest Grocery shops

,,}

Nearest Supermarkets

,,}

Nearest Religious buildings

,,}

Nearest Medical buildings

,,,}

Nearest Airports

}

Nearest Leisure Facilities

,,,,}

Nearest Tourist attractions

,,}

Nearest Train stations

,,,,}

Nearest Bus stations and stops

,,,,}

Nearest Hotels

,,}

Tags

Local Market Stats

AirBnB Data

Similar Properties

Meta

High Res Images

Compatible Images

Low res Images

Thumbnails

Raw Images

High Res Floorplan Images

Compatible Floorplan Images

Low res Floorplan Images

FloorplanImages Thumbnail

Raw Floorplan Images