**Standout Features:**
- Large building plot of approximately 775sqm
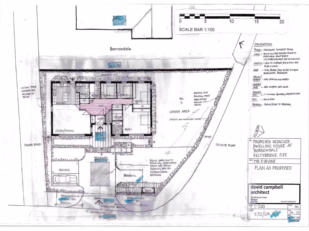
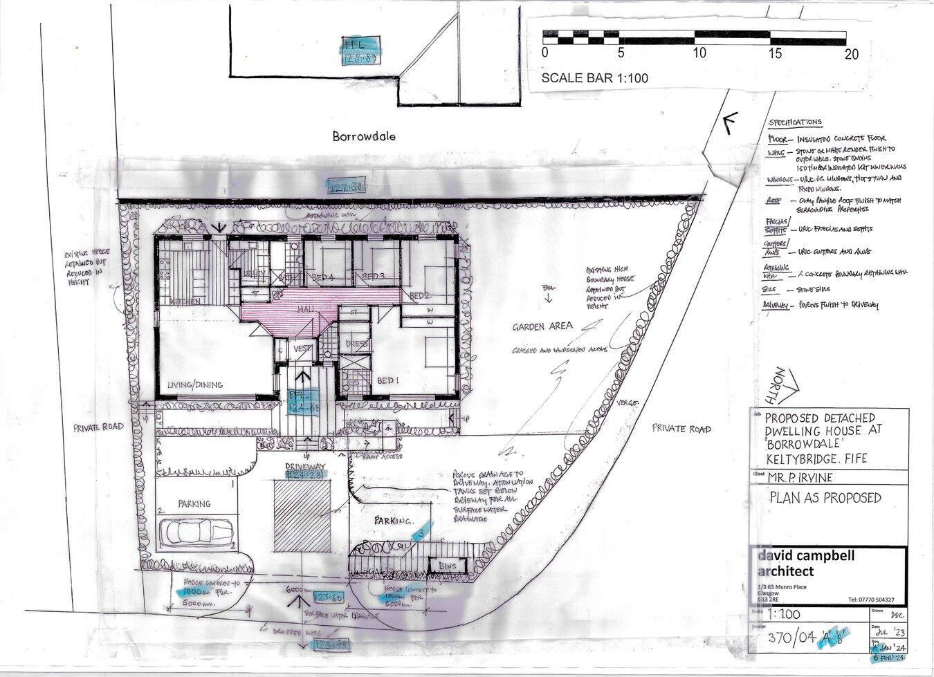
- Full planning permission granted for a 4-bedroom detached bungalow (Ref: 23/01695/FLL)
- Scenic views towards Benarty Hill
- Convenient access to local amenities and motorway networks
- Off-street parking for up to 3 vehicles
- Vibrant countryside living with ample outdoor space
**Potential Concerns:**
- Located within a more remote community, which may affect access to some services
Escape to the countryside with this exceptional building plot in Borrowdale, Keltybridge, KY4. Spanning 775sqm, this prime location boasts full planning permission for a beautifully designed detached bungalow, ideal for families or those seeking a peaceful retreat. The proposed layout features an entrance vestibule, a spacious open-plan kitchen/sitting/dining area, a utility room, four generous bedrooms—including a master with en suite and dressing room—plus a family bathroom, all thoughtfully designed to enhance comfort and functionality.
Enjoy unparalleled views of lush fields and the majestic Benarty Hill, making this an idyllic setting for your dream home. With easy access to local amenities and major motorway links, it perfectly balances tranquil living with urban conveniences. The expansive garden space provides multiple opportunities for outdoor enjoyment. Whether you’re a first-time buyer or looking to invest, this plot offers the promise of a serene lifestyle and untapped potential. Act quickly—opportunities like this don’t last long!
Plot for sale in Plot 1, Hillcrest, Maryburgh, KY4 — £120,000 • 4 bed • 2 bath
Plot for sale in Plot 4, Hillcrest, Maryburgh, KY4 — £115,000 • 4 bed • 2 bath
Plot for sale in Plot 2, Hillcrest, Maryburgh, KY4 — £110,000 • 4 bed • 2 bath
Plot for sale in Plot of Land, Hilton Road, Cairneyhill, KY12 8RG, KY12 — £135,000 • 1 bed • 1 bath
Plot for sale in Plot 12, The Ness, Main Street, Torryburn, KY12 8LR, KY12 — £125,000 • 1 bed • 1 bath • 818 ft²
Plot for sale in Plot of Land, Whitegates Terrace, Kelty, KY4 0AN, KY4 — £30,000 • 1 bed • 1 bath


























