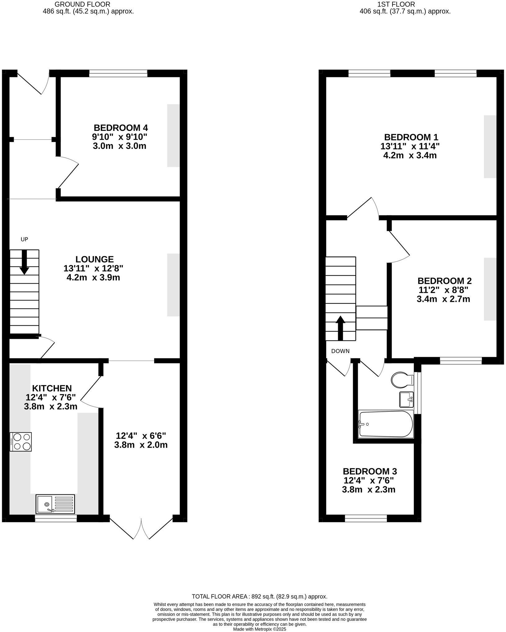
**Standout Features:**
- Four-bedroom terraced house in Forest Gate
- Separate kitchen and bright lounge
- Private rear garden
- Investment potential in a vibrant area
- Close proximity to schools with high Ofsted ratings
**Notable Concerns:**
- Property requires modernization
- Small backyard needs improvement
- Above-average crime rate in the area
- Average-sized overall layout
Discover the potential of this four-bedroom terraced house in the heart of Forest Gate, priced between £525,000 and £580,000. Ideal for families, first-time buyers, or investors, this property offers spacious living with a welcoming lounge, separate kitchen, and a versatile fourth bedroom perfect for a home office or guest room. Upstairs, you’ll find three generous bedrooms and a family bathroom. The private rear garden invites you to create your perfect outdoor haven.
While the home boasts excellent investment potential due to its desirable location near amenities and highly-rated schools, it does require some modernization. The backyard currently needs attention, and the overall property condition is average, providing a renovation canvas for the new owner. With double-glazing and mains gas heating, this mid-terrace property is a promising investment in a vibrant community.
Don’t miss the chance to transform this house into your dream home or a lucrative rental opportunity—it won’t be available for long!
4 bedroom end of terrace house for sale in Macdonald Road, Forest Gate, E7 — £700,000 • 4 bed • 1 bath • 1195 ft²
3 bedroom terraced house for sale in Ashley Road, Forest Gate, London, E7 — £560,000 • 3 bed • 1 bath • 1308 ft²
3 bedroom terraced house for sale in Rutland Road, Forest Gate, London, E7 — £475,000 • 3 bed • 1 bath • 1217 ft²
2 bedroom terraced house for sale in Rutland Road, London, E7 — £475,000 • 2 bed • 1 bath • 1098 ft²
3 bedroom house for sale in Clifton Road, Forest Gate, London, E7 — £550,000 • 3 bed • 1 bath • 896 ft²
4 bedroom semi-detached house for sale in Atherton Road, E7 — £850,000 • 4 bed • 2 bath • 1923 ft²


































































