**Standout Features:**
- Full planning permission for conversion (UTT/24/1942/FUL)
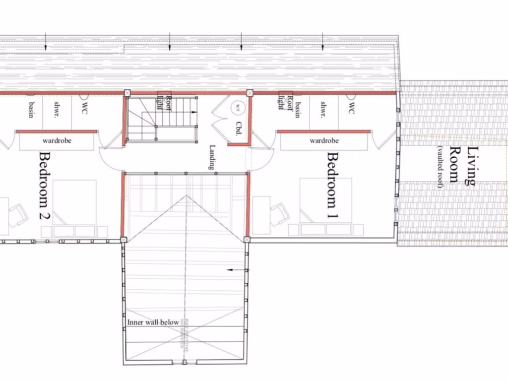
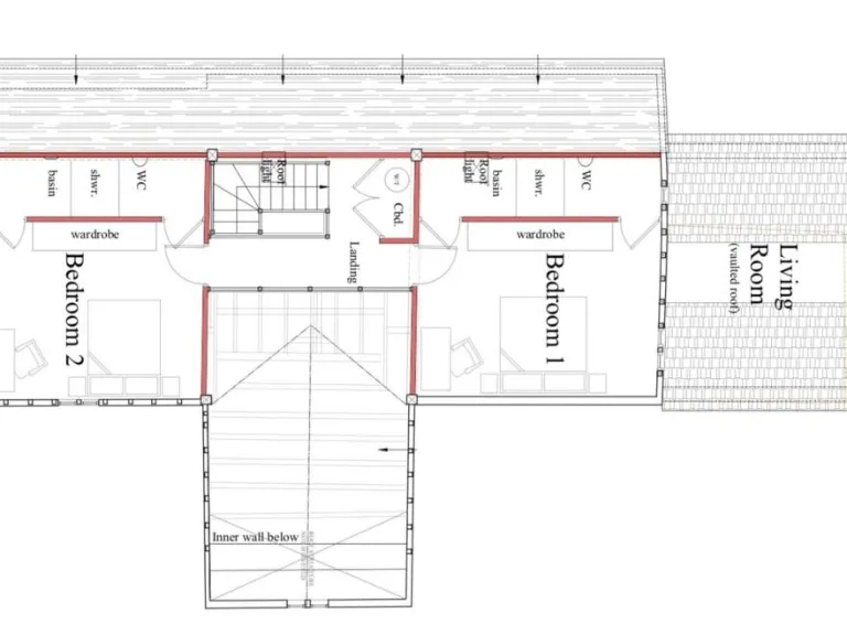
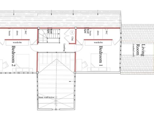
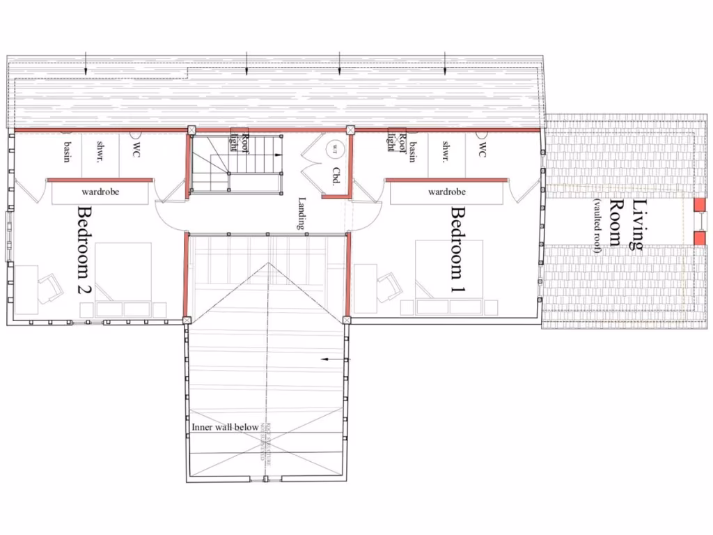
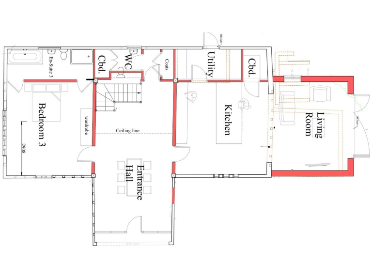
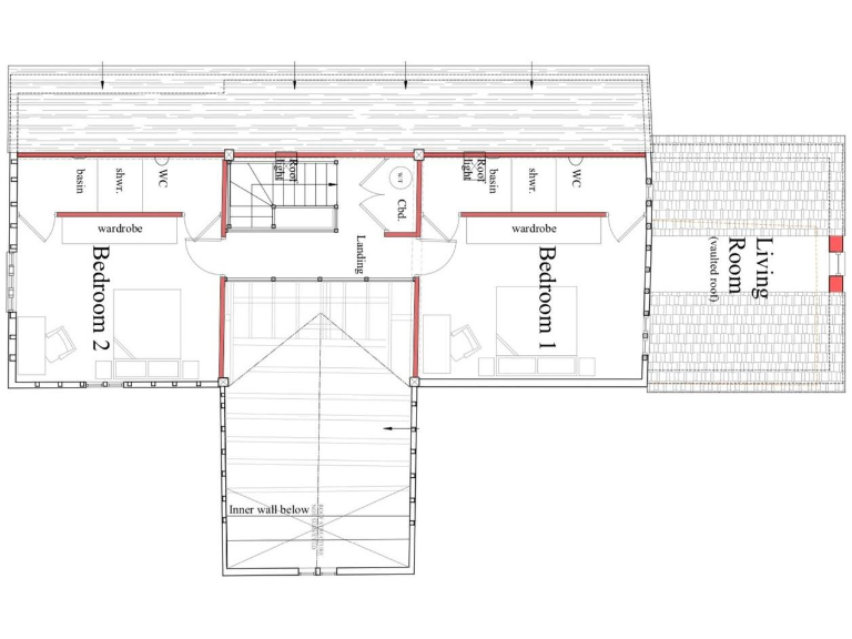
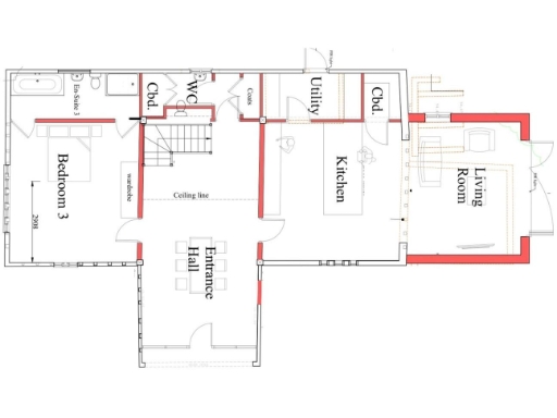
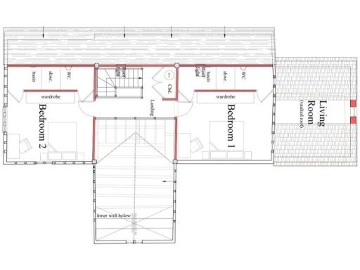
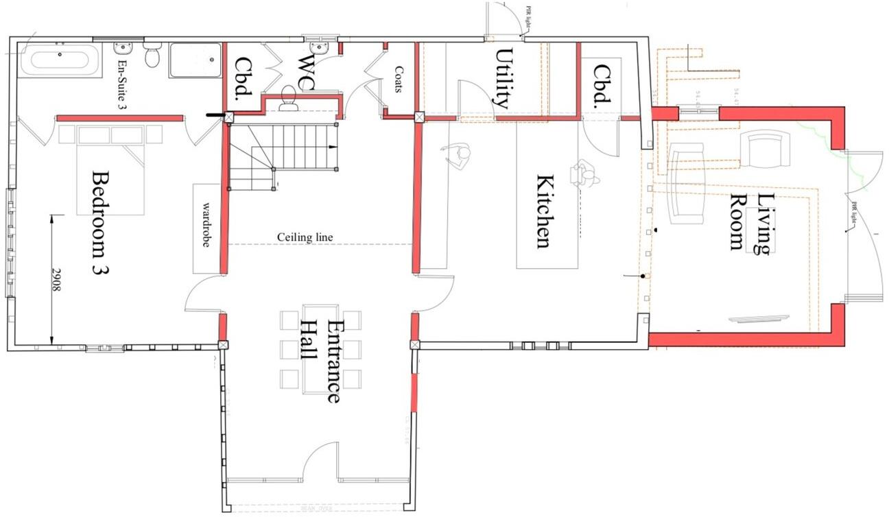
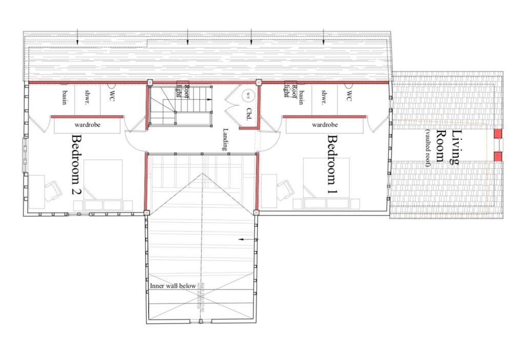
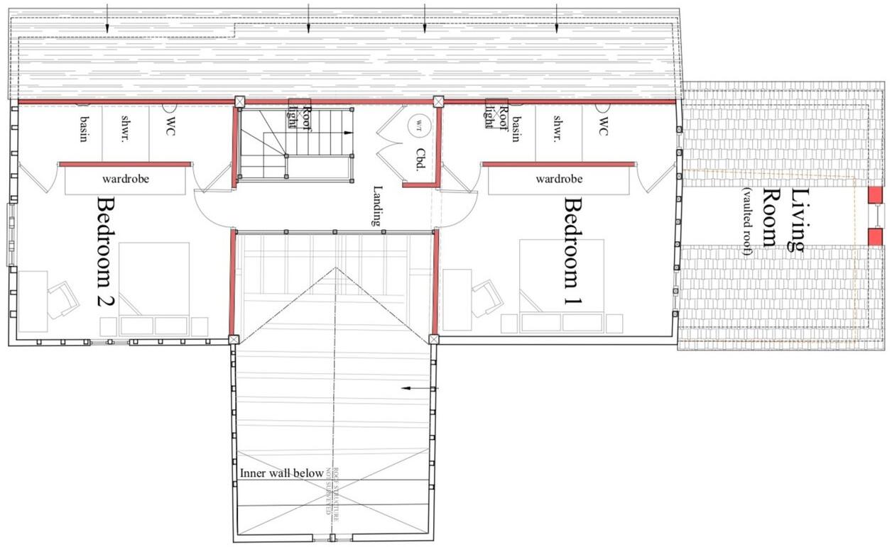
- Vaulted entrance and kitchen design
- Three spacious en-suite double bedrooms
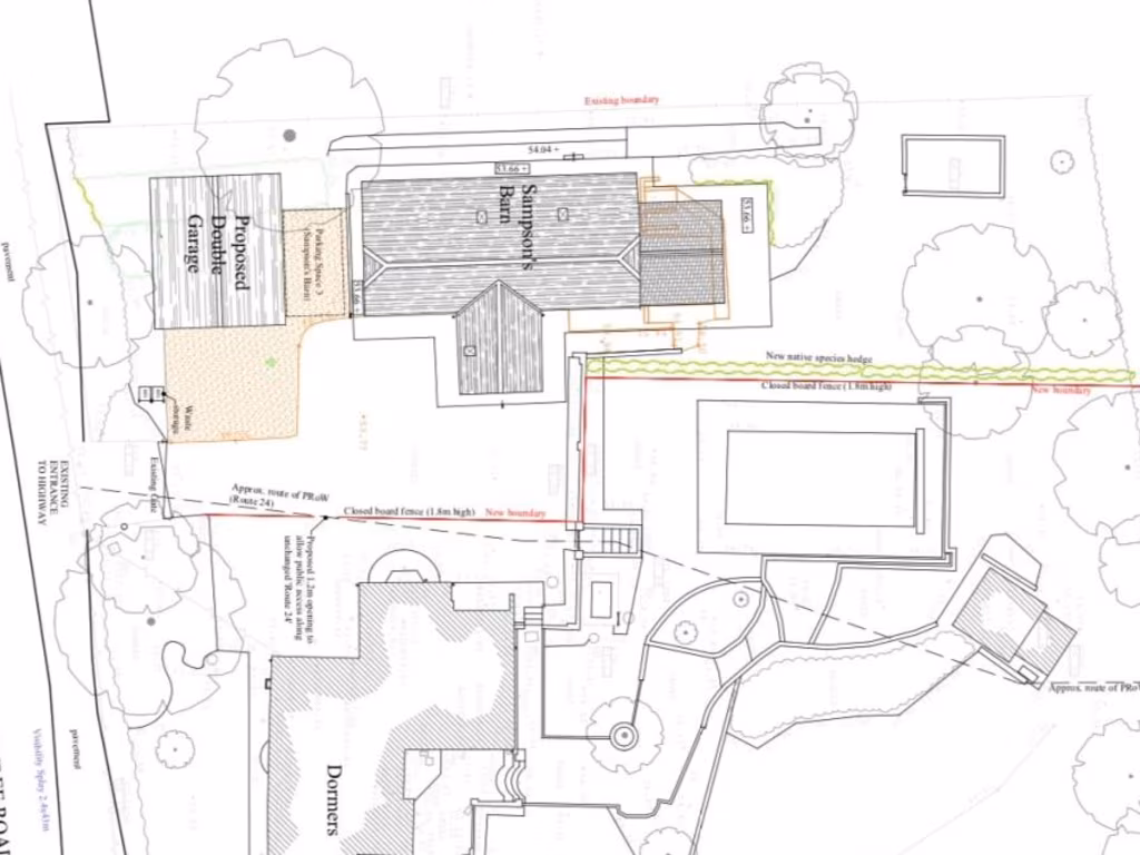
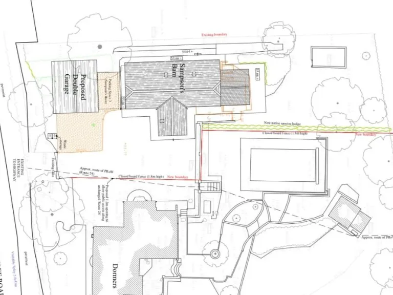
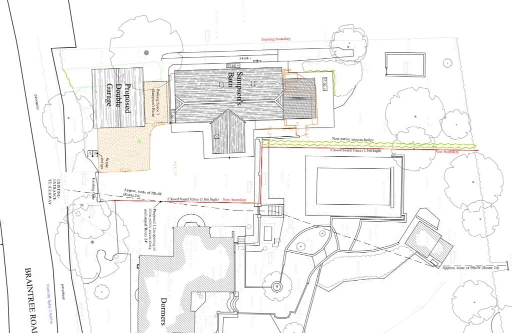
- Generous plot size with part walled garden
- Gated private entrance with potential for double garage
**Summary:**
Discover a unique opportunity to transform this charming barn on Braintree Road in Dunmow into your dream country residence. With full planning permission already in place, envision a lavish home featuring a majestic vaulted entrance, a modern kitchen/breakfast room, and three generous en-suite bedrooms—perfect for families seeking comfort and privacy. This property offers a rare blend of rural character and contemporary living in a well-connected area, just a stone's throw from Great Dunmow's bustling town center, which boasts a variety of shops, restaurants, and essential amenities.
While the barn currently awaits conversion, its impressive timber façade and spacious grounds offer immense potential for customization. Enjoy the benefits of a private gated entrance and easy access to local recreational facilities. The nearby schools are rated 'Good', ideal for families. With the average crime rate and excellent mobile signal, the property promises a safe and connected lifestyle.
Transform this unique barn into a luxurious retreat that could hold both personal enjoyment and significant future value. Properties with this level of potential don’t stay on the market long. Book your site viewing today and unlock the possibilities of rural living combined with modern conveniences.
Barn for sale in Great Maplestead, Halstead, Essex, CO9 — £330,000 • 1 bed • 1 bath
Barn for sale in Great Maplestead, Halstead, Essex, CO9 — £450,000 • 1 bed • 1 bath
Office for sale in Hardings Barn, Bardfield End Green, Thaxted, Dunmow, Essex, CM6 — £625,000 • 1 bed • 1 bath • 2489 ft²
Land for sale in Development Opportunity, Great Bardfield, CM7 — £1,000,000 • 1 bed • 1 bath • 4400 ft²
5 bedroom barn conversion for sale in Chappel, Colchester, Essex, CO6 — £1,500,000 • 5 bed • 2 bath • 3500 ft²
5 bedroom barn conversion for sale in Broxted Road, Great Easton, Dunmow, Essex, CM6 — £1,250,000 • 5 bed • 4 bath • 3041 ft²






















































