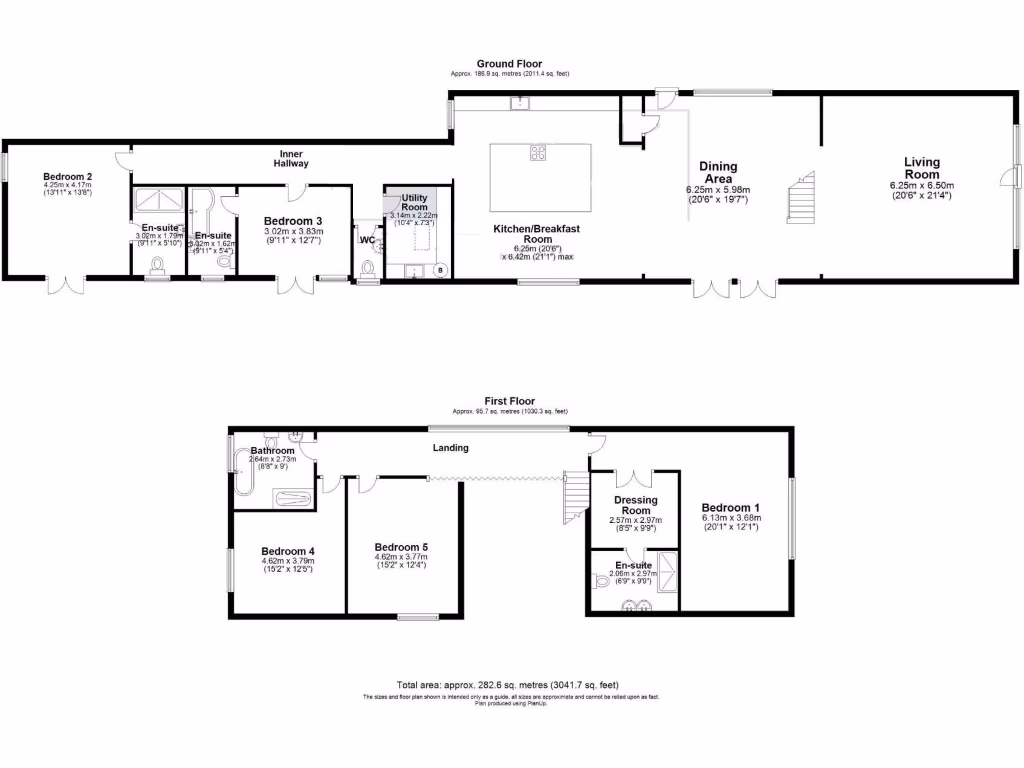
**Standout Features:**
- Newly renovated Grade II listed barn conversion
- Five spacious bedrooms, including three en-suites and a family bathroom
- Open-plan living space with high ceilings and abundant natural light
- Double cart lodge with workshop
- Extensive gardens and countryside views
- Ample driveway parking for multiple vehicles
**Concise Summary:**
Discover the charm of countryside living in this newly renovated, Grade II listed barn conversion on Broxted Road, Great Easton. Perfect for families or discerning buyers, this stunning five-bedroom home features expansive open-plan living space that bathes in natural light, highlighted by high ceilings and elegant design elements. The property boasts five well-appointed bedrooms, including three with en-suite bathrooms, providing comfort and convenience for all residents.
Enjoy the serenity of generous gardens stretching toward picturesque countryside, ideal for relaxing with family or entertaining friends. A unique double cart lodge with an attached workshop offers great potential for hobbies or storage. With ample driveway parking for more than eight vehicles, this home ensures both convenience and space.
While the property has been tastefully updated, its status as a listed building may limit renovation options, ensuring its historical integrity remains intact. Seize this rare opportunity to embrace a tranquil lifestyle in a vibrant, affluent community with excellent schools nearby. Don't miss out on this exclusive gem—make it yours today!
4 bedroom barn conversion for sale in Monkhams Farm Barns, Monkhams EN9 — £1,250,000 • 4 bed • 3 bath • 2454 ft²
4 bedroom barn conversion for sale in Brookend, Stebbing, Dunmow, CM6 — £750,000 • 4 bed • 3 bath • 2300 ft²
3 bedroom barn conversion for sale in Tilbury Road, Great Yeldham, Essex, CO9 — £900,000 • 3 bed • 4 bath • 2503 ft²
3 bedroom barn conversion for sale in Oxen End, Little Bardfield, CM7 — £850,000 • 3 bed • 3 bath • 2235 ft²
5 bedroom barn conversion for sale in Pannells Ash Barn, Sudbury Road, Castle Hedingham, CO9 — £1,375,000 • 5 bed • 5 bath • 3904 ft²
5 bedroom barn conversion for sale in Copped Hall, Epping, CM16 — £1,200,000 • 5 bed • 2 bath • 2490 ft²














































































































































