Inland rural site with imminent outline approval and high GDV potential.
12.55 acres — large residential development parcel
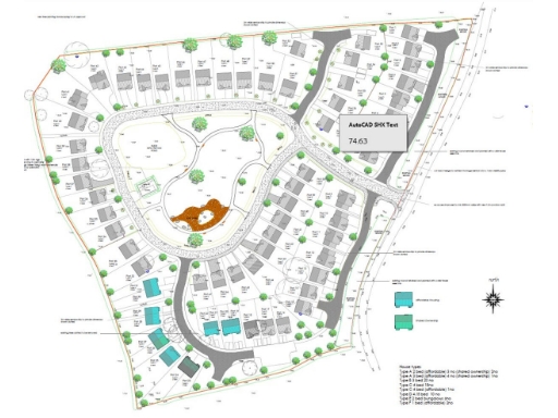
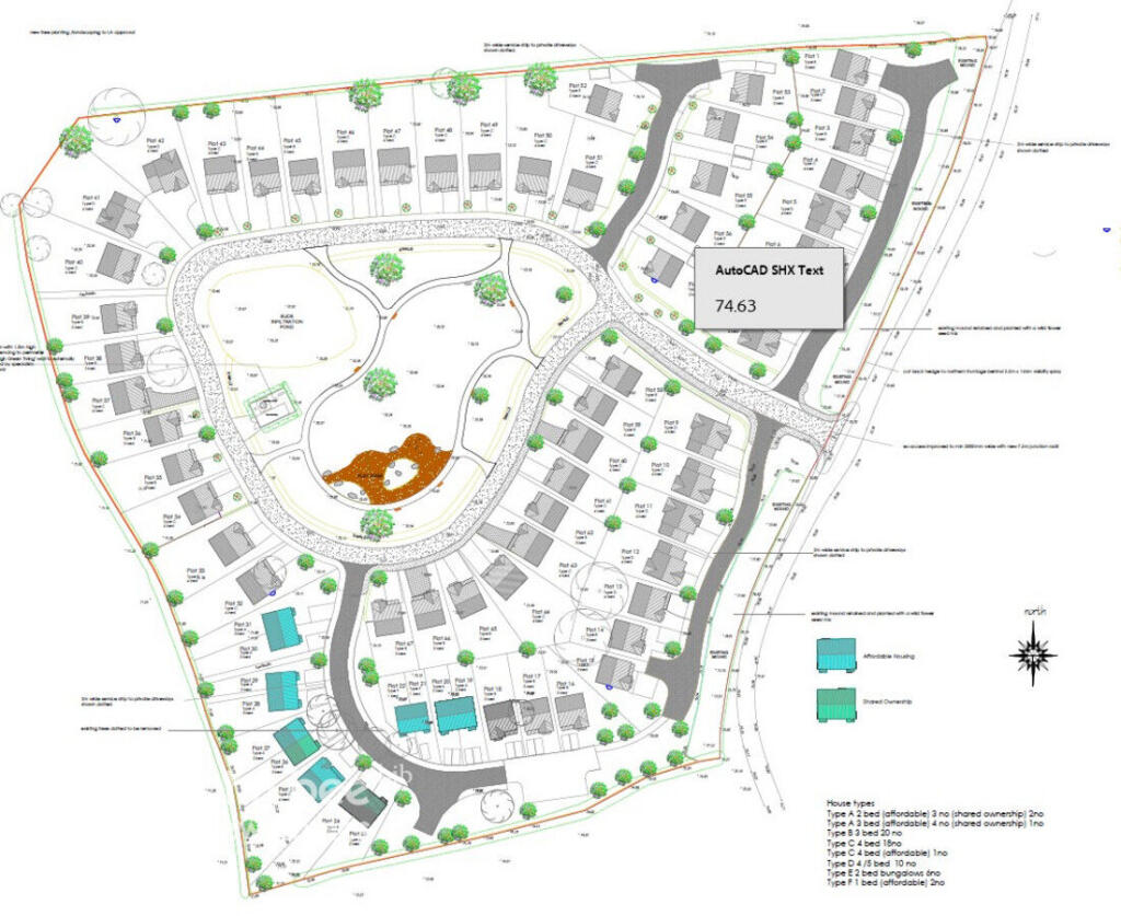
A rare 12.55-acre development parcel with strong value potential and an estimated GDV of £36,000,000. The site benefits from imminent outline approval (24/00563/OUT) for 65–67 dwellings, a previously approved full consent for 38 units (now expired), and an agreed draft s106. It is sold freehold with vacant possession and is offered by informal tender for a purchaser able to progress quickly.
The land is a former MOD training camp with several remaining structures; remediation and clearance will be required before construction. Infrastructure liabilities include an estimated CIL of about £1.28m on market housing and a draft s106 (currently referencing 65 units) covering 13 affordable homes, public open space provision and maintenance. Ecological reports indicate BNG can be achieved on site (c.17.6% habitat uplift and 10.31% hedgerow uplift), but purchasers should verify all metrics and obligations.
Location is rural yet accessible — around 1 mile from the A41 between Whitchurch and Newport, with Market Drayton c.12 minutes’ drive and Shrewsbury c.32 minutes. The hamlet setting and low crime level suit executive housing and downsizers, though the rural catchment and local school ratings should be considered when targeting buyers.
This opportunity suits developers or investors comfortable with brownfield remediation, planning finalisation and developer contributions. All technical reports, layout drawings, draft s106 and valuation details are available in the property information pack; prospective buyers must complete their own due diligence on planning, BNG, CIL, VAT and ground works assumptions.
Land for sale in Telford, Shropshire, TF11 — £1,500,000 • 1 bed • 1 bath • 1600 ft²
Land for sale in The Ridges, Lightmoor Road, Lightmoor, Telford, Shropshire, TF4 3QW, TF4 — £450,000 • 1 bed • 1 bath
Land for sale in Land at Priorslee Roundabout, Holyhead Road, Snedshill, Telford, TF2 9WU, TF2 — POA • 1 bed • 1 bath
Plot for sale in Lightmoor Road, Lightmoor, Telford, Shropshire, TF4 3QW, TF4 — £450,000 • 1 bed • 1 bath • 1292 ft²
Land for sale in Development land at Moreton Say TF9 — £1,100,000 • 1 bed • 1 bath • 19438 ft²
Land for sale in Moortown, High Ercall, Telford, TF6 — £375,000 • 1 bed • 1 bath • 2152 ft²










































