IP7 5LW - 2 bedroom semidetached bungalow for sale in Great Oak Place…

View on Property Piper

2 bedroom semi-detached bungalow for sale in Great Oak Place, The Street, Raydon, IP7

Summary - Oak View, The Street, Raydon IP7 5LW

2 bed 1 bath Semi-Detached Bungalow

Contemporary single-storey living with solar, EV charging and private garden..
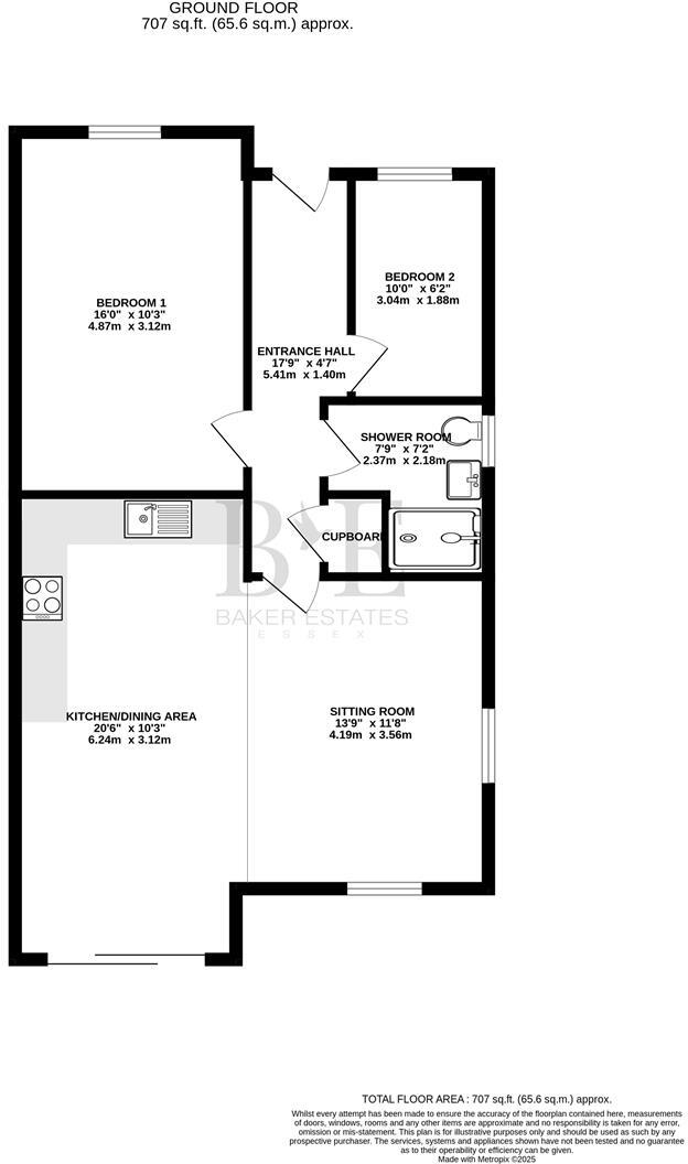
- Single-storey 2-bedroom bungalow, good sized principal bedroom
- Open-plan kitchen/dining to sitting room with patio access
- Solar panels, EV charging point and underfloor heating throughout
- Off-street parking for two cars accessed via communal rear court
- Freehold with modest annual management charge (£110) for communal areas
- Rear garden with patio, enclosed by wood panel fencing
- Slow broadband speeds in the area; check provider availability
- Main heating fuel: oil boiler and radiators (not a communal system)
A bright, single-storey bungalow arranged around an open-plan living, dining and kitchen area — ideal for easy, low-stairs living in a quiet village setting. The property benefits from thoughtful modern fittings including quartz worktops, Bosch appliances and an attractive sitting area that opens to the rear garden. Solar panels, an EV charging point and whole-house underfloor heating provide contemporary running-cost advantages and comfort.

The layout suits downsizers or small families: a large principal bedroom to the front, a second bedroom that can serve as a guest room or study, and a well-finished shower room with walk-in enclosure. Off-street parking for two vehicles is accessed from a communal rear court; the parking area is maintained by a management company (estimated annual cost £110).

Buyers should note practical limitations: broadband in the area is slow and the main heating fuel is oil rather than mains gas or a communal system. Council tax band is not yet confirmed. The home is freehold and set on a decent plot with a private lawn and patio, making it straightforward to enjoy outside space without heavy maintenance.

Overall, this bungalow offers an attractive, low-maintenance base in an affluent village within the Dedham Vale AONB. It will particularly suit purchasers looking for single-storey living with modern energy features, but those who rely on fast broadband or prefer a mains gas heating system should factor that in.

Property Details

Brochure Descriptions

Image Descriptions

Floorplan Description

Rooms

Textual Property Features

Target Audience

AI Tags

Detected Visual Features

EPC Details

Nearby Schools

Nearest Bars And Restaurants

,,,,}

Nearest General Shops

,,}

Nearest Grocery shops

,,}

Nearest Supermarkets

,,}

Nearest Religious buildings

,,}

Nearest Medical buildings

,,,}

Nearest Leisure Facilities

,,,,}

Nearest Tourist attractions

,,}

Nearest Train stations

,,,,}

Nearest Bus stations and stops

,,,,}

Nearest Hotels

,,}

Tags

Local Market Stats

Similar Properties

Meta

High Res Images

Compatible Images

Low res Images

Thumbnails

Raw Images

High Res Floorplan Images

Compatible Floorplan Images

Low res Floorplan Images

FloorplanImages Thumbnail

Raw Floorplan Images