Single-level living with parking and garden in tranquil village surroundings.
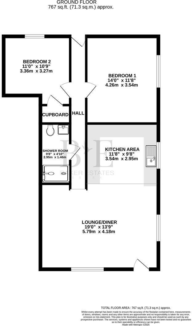
Newly renovated two-bedroom semi-detached bungalow, circa 767 sq ft
Spacious open-plan lounge/kitchen with Bosch appliances
Private gated driveway with parking for two vehicles
Decent enclosed garden; scope for landscaping or low-maintenance planting
Solar panels fitted; EPC C supports energy efficiency
Oil-fired boiler and radiators (oil fuel not community)
Area broadband speeds reported as slow — not suitable for heavy remote work
Annual management cost circa £110 until residents take over
A newly finished two-bedroom semi-detached bungalow offering single-level, contemporary living in the peaceful village of Raydon. The open-plan lounge and kitchen form a large social hub, with Bosch appliances and navy-and-grey fitted units creating a tidy, modern finish. At about 767 sq ft, the layout is efficient: two bedrooms, a walk-in shower room, and useful circulation space.
Outside there is a private gated driveway with off-street parking for two cars and a decent enclosed garden ready for landscaping or low-maintenance planting. Solar panels are fitted and the EPC is C, helping running costs, while the property is freehold and positioned in a low-crime, affluent rural setting close to Hadleigh and local AONB countryside.
Practical points to note: the home is heated by an oil-fired boiler with radiators (not a community scheme) and broadband speeds in the area are reported as slow. There is a small annual management cost (£110) for communal parking maintenance until the site is resident-run; double glazing dates from before 2002. These factors may matter to buyers wanting high-speed connectivity or a different heating fuel.
This bungalow will suit downsizers or buyers seeking a comfortable, low-maintenance rural home with modern finishes and off-street parking. It also offers scope for modest cosmetic personalisation in the garden and internal finishes if desired.
2 bedroom semi-detached bungalow for sale in Great Oak Place, The Street, Raydon, IP7 — £350,000 • 2 bed • 1 bath • 707 ft²
2 bedroom semi-detached bungalow for sale in Great Oak Place, The Street, Raydon, IP7 — £300,000 • 2 bed • 1 bath • 707 ft²
3 bedroom detached bungalow for sale in Great Oak Place, The Street, Raydon, IP7 — £550,000 • 3 bed • 2 bath • 1067 ft²
3 bedroom terraced house for sale in The Street, Raydon, IP7 — £275,000 • 3 bed • 2 bath • 818 ft²
2 bedroom detached bungalow for sale in Castle Road, Hadleigh, IP7 — £375,000 • 2 bed • 2 bath • 786 ft²
3 bedroom detached bungalow for sale in Little Cornard, Sudbury, Suffolk, CO10 — £625,000 • 3 bed • 2 bath • 2000 ft²


























