**Standout Features:**
- Newly built 2-bedroom semi-detached bungalow
- High-quality finishes with contemporary design
- Open plan living area with dual aspect windows
- Modern kitchen equipped with Bosch appliances
- Eco-friendly features: solar panels and EV charging point
- Convenient off-street parking for two vehicles
- Peaceful location in Raydon, within AONB
**Summary:**
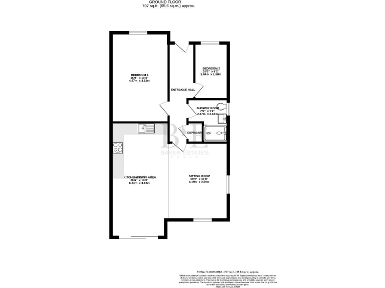
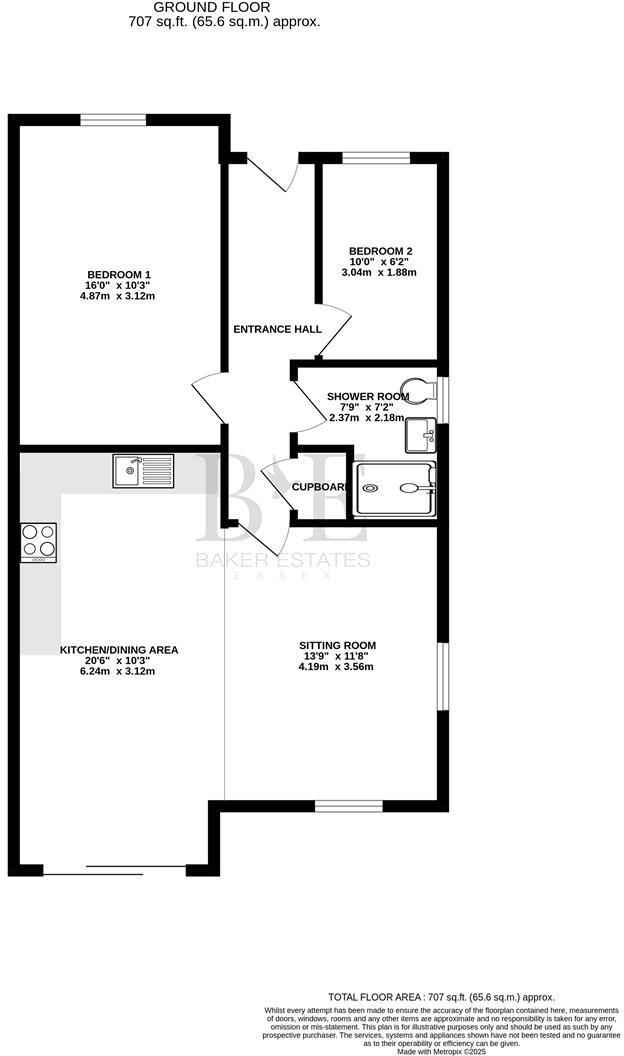
Discover the ultimate in modern living with this newly built 2-bedroom semi-detached bungalow in the charming village of Raydon. Boasting 707 square feet of thoughtfully designed space, this bungalow features dual-aspect windows in a spacious open-plan living area that seamlessly connects to a stylish kitchen equipped with Bosch appliances—perfect for entertaining or family dinners.
The generous master bedroom pairs comfortably with a versatile single bedroom, ideal for guests or as a study. Enjoy the well-appointed shower room with contemporary finishes, and revel in energy efficiency with in-roof solar panels and an electric vehicle charging point. The serene garden, complete with an Indian sandstone patio, invites you outdoors for relaxation or gatherings. With parking for two vehicles at the rear and set back from the road, the property offers a sense of security and tranquility.
Situated in the Dedham Vale Area of Outstanding Natural Beauty, this home is located conveniently near Hadleigh, with easy access to local amenities, recreational options, and highly-rated schools. Don't miss this exclusive opportunity—embrace a peaceful lifestyle in Raydon while enjoying the comfort and sophistication of modern living.
2 bedroom semi-detached bungalow for sale in Great Oak Place, The Street, Raydon, IP7 — £300,000 • 2 bed • 1 bath • 707 ft²
2 bedroom semi-detached bungalow for sale in Great Oak Place, The Street, Raydon, IP7 — £350,000 • 2 bed • 1 bath • 707 ft²
2 bedroom semi-detached bungalow for sale in Great Oak Place, The Street, Raydon, IP7 — £375,000 • 2 bed • 1 bath • 767 ft²
2 bedroom semi-detached bungalow for sale in Great Oak Place, The Street, Raydon, IP7 — £395,000 • 2 bed • 1 bath • 744 ft²
3 bedroom detached bungalow for sale in Great Oak Place, The Street, Raydon, IP7 — £550,000 • 3 bed • 2 bath • 1067 ft²
3 bedroom semi-detached house for sale in Dunningham Drive, Raydon, IP7 — £375,000 • 3 bed • 2 bath • 1120 ft²


































