Low-price refurbishment opportunity near schools and transport links.
Vacant freehold two-bedroom Victorian semi-detached property
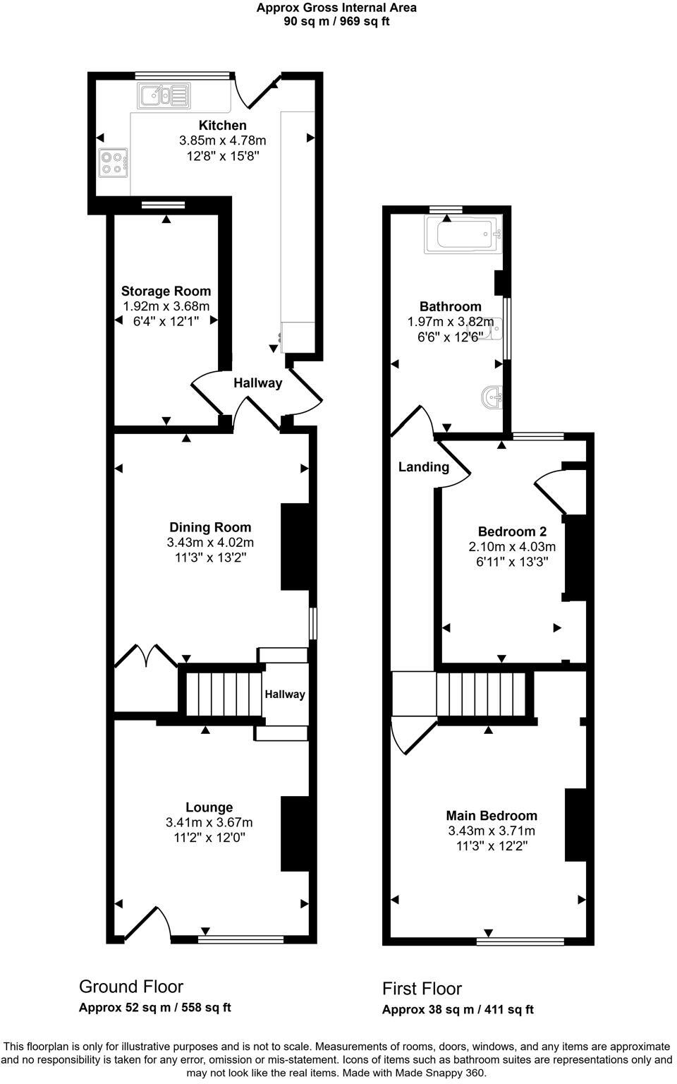
Approximately 969 sqft across seven rooms with high ceilings
Requires full refurbishment throughout; dated fixtures and finishes
Small rear turfed and paved garden; potential for rear extension (subject to planning)
On-street parking only; no off-street parking provided
Located in a deprived area with higher local crime levels
Close to several Good-rated primary schools and public transport links
Sold at auction — buyers must review legal pack and bidding requirements
This two-bedroom Victorian semi-detached house in CV6 is a vacant freehold offered at auction, priced to reflect necessary refurbishment. The property spans about 969 sqft across seven rooms and retains period features such as high ceilings, original windows and a brick chimney, giving clear scope for value-led renovation.
Internally the layout includes a lounge, dining room, an additional reception room, kitchen, two bedrooms and a first-floor bathroom. The house requires comprehensive updating throughout; cosmetic wear and dated fittings are evident and mechanical and electrical checks are recommended before purchase. The small rear garden is turfed and paved, and on-street parking serves the property.
Located in a residential area with nearby good-rated primary schools and city transport links, the house suits a buyer seeking a refurbishment project or an investor aiming to add value. There is potential for rear extension subject to planning permission; buyers should review the legal pack and local planning constraints before bidding.
Material drawbacks are straightforward: the property requires renovation, sits in an area with higher crime statistics and wider local deprivation, and plot size is small. These factors are reflected in the low guide price and will be important considerations for mortgage lenders and insurers.
2 bedroom terraced house for sale in Ranby Road, Coventry, CV2 — £39,000 • 2 bed • 1 bath • 588 ft²
2 bedroom terraced house for sale in 9 Knight Avenue, Coventry, West Midlands, CV1 2AY, CV1 — £25,000 • 2 bed • 1 bath • 854 ft²
3 bedroom semi-detached house for sale in 21 Scholfield Road, Keresley End, Coventry, CV7 8LJ, CV7 — £50,000 • 3 bed • 1 bath • 886 ft²
2 bedroom terraced house for sale in 79 Blythe Road, Coventry, West Midlands, CV1 5AU, CV1 — £39,000 • 2 bed • 1 bath • 681 ft²
2 bedroom end of terrace house for sale in Glenridding Close, Longford, Coventry, CV6 — £120,000 • 2 bed • 1 bath • 532 ft²
2 bedroom terraced house for sale in 11 Craners Road, Coventry, CV1 5AZ, CV1 — £50,000 • 2 bed • 1 bath • 729 ft²














































































































































