Spacious four-bedroom with 100ft garden and full planning consent for extensions.
- Four good-size bedrooms and through lounge dining room
- Approximately 100' rear garden, large private plot
- Wide driveway plus integral garage and cellar
- Extensive planning permission for major extensions granted
- Double glazing fitted post-2002 and mains gas heating
- Solid brick walls assumed uninsulated; potential insulation works
- Single family bathroom for four bedrooms; consider adding bathrooms
- Council tax level described as quite expensive
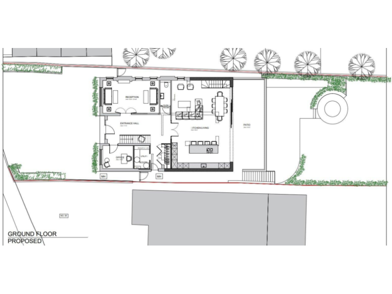
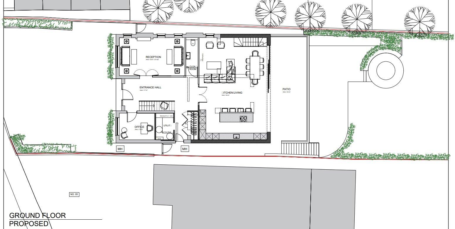
An imposing 1930s detached house set just 0.5 miles from Winchmore Hill Green and local transport links. The current layout provides four good-size bedrooms, a through lounge, kitchen/breakfast room and a single family bathroom; a large cellar adds useful storage. The house sits on a large plot with an approximately 100' rear garden, wide driveway and integral garage.
The property comes with extensive planning permission for significant enlargement: garage conversion to a habitable room, first-floor front extension, two-storey rear/side extension, loft conversion and basement floor extension — ideal for buyers wanting substantial added living space and value uplift. Practical features include double glazing (fitted post-2002), mains gas central heating and excellent local amenities, parks and highly rated schools within walking distance.
Notable matters: the property has solid brick walls that are assumed uninsulated, and there is only one bathroom for four bedrooms. Council tax is described as quite expensive, and the planning works will require budget, project management and building control compliance. Overall this is a roomy period property offering strong extension potential for growing families or buy-to-let investors prepared to undertake renovation.
 4 bedroom detached house for sale in Houndsden Road, London, N21 — £1,200,000 • 4 bed • 1 bath • 1580 ft²
 4 bedroom detached house for sale in Houndsden Road, London, N21 — £1,200,000 • 4 bed • 1 bath • 1580 ft² 6 bedroom semi-detached house for sale in Langham Gardens, London, N21 — £1,150,000 • 6 bed • 3 bath • 1626 ft²
 6 bedroom semi-detached house for sale in Langham Gardens, London, N21 — £1,150,000 • 6 bed • 3 bath • 1626 ft² 5 bedroom semi-detached house for sale in Vicars Moor Lane, N21 — £1,200,000 • 5 bed • 1 bath • 1682 ft²
 5 bedroom semi-detached house for sale in Vicars Moor Lane, N21 — £1,200,000 • 5 bed • 1 bath • 1682 ft² 3 bedroom terraced house for sale in Barrowell Green, N21 — £625,000 • 3 bed • 1 bath • 1264 ft²
 3 bedroom terraced house for sale in Barrowell Green, N21 — £625,000 • 3 bed • 1 bath • 1264 ft² 3 bedroom semi-detached house for sale in Hyde Park Avenue, N21 — £625,000 • 3 bed • 1 bath • 1071 ft²
 3 bedroom semi-detached house for sale in Hyde Park Avenue, N21 — £625,000 • 3 bed • 1 bath • 1071 ft² 3 bedroom semi-detached house for sale in The Orchard, Winchmore Hill, London, N21 — £875,000 • 3 bed • 1 bath • 2004 ft²
 3 bedroom semi-detached house for sale in The Orchard, Winchmore Hill, London, N21 — £875,000 • 3 bed • 1 bath • 2004 ft²






























































































































