Newly renovated 4-bed Victorian townhouse with dramatic kitchen and private garden near Highbury Fields..
Newly renovated throughout with period details retained
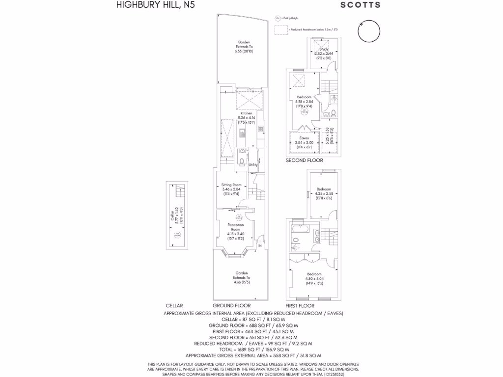
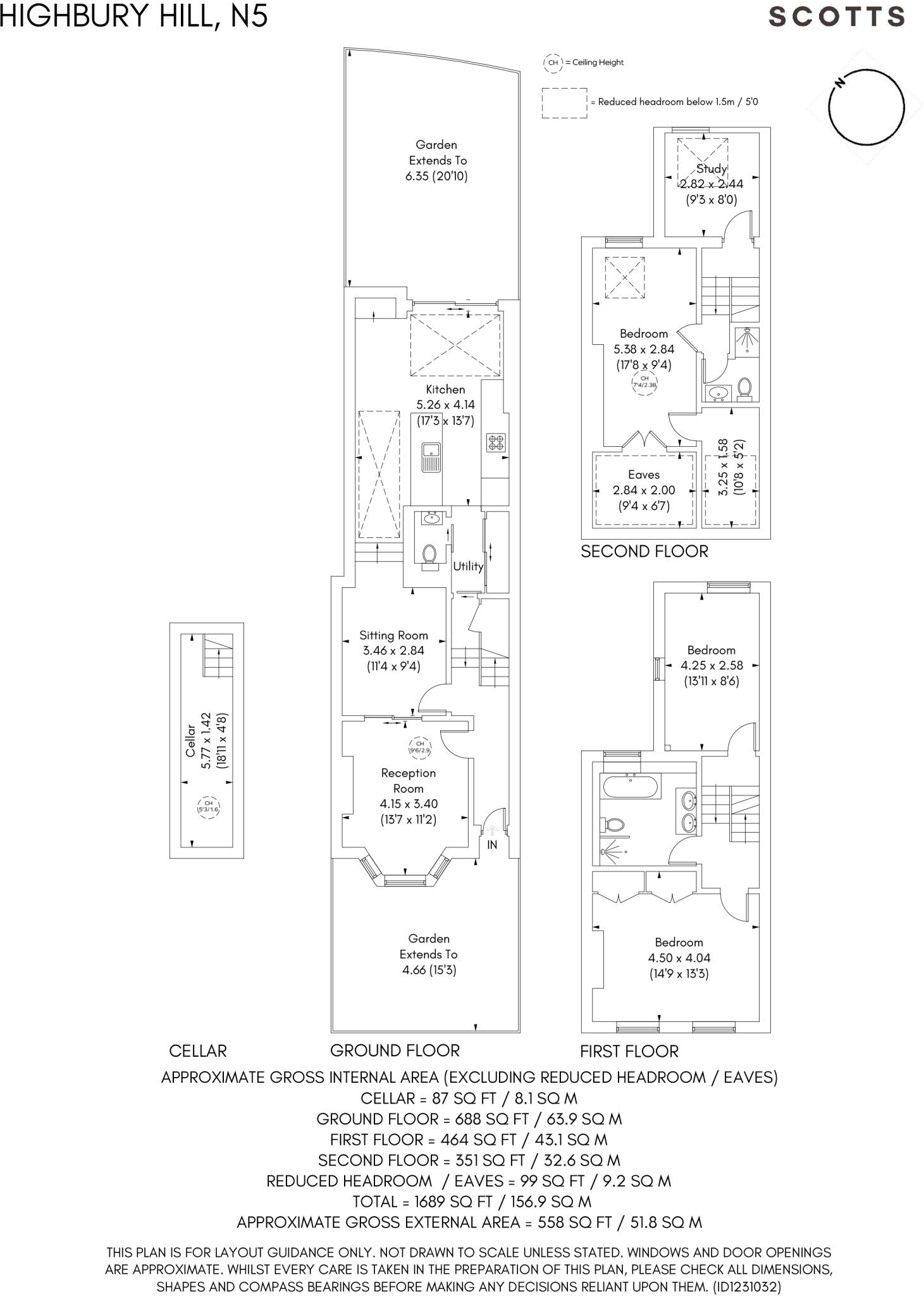
Four double bedrooms and two bathrooms across 1,689 sq ft
Dramatic kitchen conversion with full-height metal glazing
Private, low-maintenance terraced garden (small plot)
Freehold; multi-storey Victorian terraced layout
Fast broadband and excellent mobile signal for remote work
Moments from Highbury Fields, shops and Piccadilly/Overground
Average local crime levels; council tax band unknown
An elegant four-bedroom Victorian terraced house on Highbury Hill combining period character with a striking contemporary renovation. High ceilings, original cornicing and a marble fireplace sit alongside a dramatic kitchen conversion with full-height metal-framed glazing that opens fully to a private, low-maintenance garden.
Newly renovated throughout, the house offers 1,689 sq ft across multiple floors, a generous principal bedroom, three further bedrooms and two well-finished bathrooms — one with a freestanding bath and walk-in shower, the other under a skylight with glazed tiles. Polished concrete floor tiles and bespoke cabinetry give the kitchen-dining space a refined, industrial edge ideal for modern family life or entertaining.
Set on one of N5’s most desirable streets, the location is a key draw: moments from Highbury Fields, artisan shops and popular restaurants, with Arsenal Underground and Drayton Park Overground providing fast links to the City and West End. Fast broadband and excellent mobile signal suit remote working and connected lifestyles.
Practical points to note: the plot is small and the garden is compact and terraced rather than lawned. Crime levels are average for the area and council tax band is not provided. Overall, this freehold Victorian townhouse suits a family or professionals seeking a move-in-ready period home with contemporary living spaces in a highly connected, sought-after neighbourhood.
4 bedroom terraced house for sale in Avenell Road, Highbury, Islington, London, N5 — £1,600,000 • 4 bed • 2 bath • 1870 ft²
4 bedroom terraced house for sale in Legard Road, Highbury, London, N5 — £1,850,000 • 4 bed • 2 bath • 1751 ft²
4 bedroom terraced house for sale in Highbury Hill, London N5 — £1,700,000 • 4 bed • 4 bath • 1830 ft²
4 bedroom terraced house for sale in Liberia Road, Highbury, Islington, London, N5 — £2,250,000 • 4 bed • 2 bath • 2000 ft²
5 bedroom house for sale in Kelross Road, London, N5 — £3,250,000 • 5 bed • 3 bath • 2294 ft²
2 bedroom apartment for sale in Highbury Hill, London, N5 — £950,000 • 2 bed • 1 bath • 1080 ft²






























































































