Chain-free three-bed home with extension potential close to top schools.
Detached three-bedroom bungalow on a large suburban plot
Open-plan kitchen-diner with sun room and rear garden access
Wide paved driveway with parking for several cars and single garage
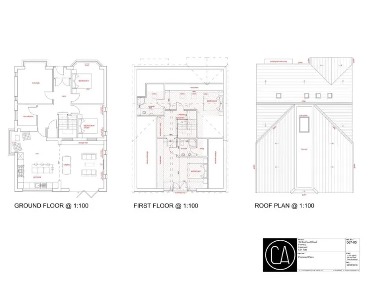
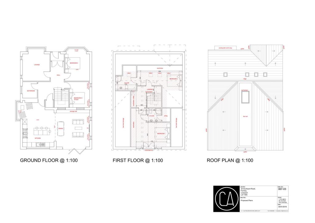
Previously passed planning to add first floor and two ensuite bedrooms
Offered chain free for a quicker sale
Single bathroom only; may be tight for larger families
Cavity walls assumed uninsulated — potential energy upgrades needed
Council tax band above average for the area
This detached three-bedroom bungalow on Southport Road offers a comfortable, single-storey layout that will suit families and downsizers seeking easy living in Formby. The house has a bright front lounge, an open-plan kitchen-diner with a sun room, and a generous lawned front garden with a wide paved driveway and single garage. Occupying a large plot in an affluent, low-crime suburb, it sits close to outstanding primary schools and good secondary options.
A major selling point is the previously passed planning to extend to the rear and add a first floor with two ensuite bedrooms; drawings exist and could be re-submitted to increase living space and value. The bungalow is offered chain free, so a purchaser wanting to move quickly can do so without delay. Practical features include mains gas boiler and radiators, double glazing, excellent mobile signal and fast broadband suitable for home working.
Buyers should note a few practical drawbacks: the property has just one bathroom, and walls are assumed to be uninsulated cavity construction which may mean improvement works for energy efficiency. The home appears well maintained but presents scope for modernisation and potential renovation to fully unlock its planning potential. Council tax lies above average for the area.
Overall this property suits a family looking for a spacious single-storey home with substantial development upside, or an investor/builder targeting a renovation and extension opportunity in a desirable Formby location.
3 bedroom detached bungalow for sale in Grisedale Close, Formby, Liverpool, L37 — £410,000 • 3 bed • 1 bath • 2023 ft²
3 bedroom detached bungalow for sale in Brooks Road, Formby, Liverpool, L37 — £410,000 • 3 bed • 1 bath • 1624 ft²
3 bedroom detached bungalow for sale in Bushbys Park, Formby, Liverpool, L37 2EF, L37 — £550,000 • 3 bed • 2 bath • 1213 ft²
3 bedroom detached bungalow for sale in Elmdale Close, Formby, Liverpool, L37 — £399,000 • 3 bed • 1 bath • 1103 ft²
3 bedroom detached bungalow for sale in Redgate, Formby, Liverpool, L37 — £340,000 • 3 bed • 1 bath • 1159 ft²
3 bedroom detached bungalow for sale in Dukes Way, Formby, L37 — £385,000 • 3 bed • 1 bath • 1273 ft²






















































































































































































