Perfect family home with large garden and easy Central Line access.
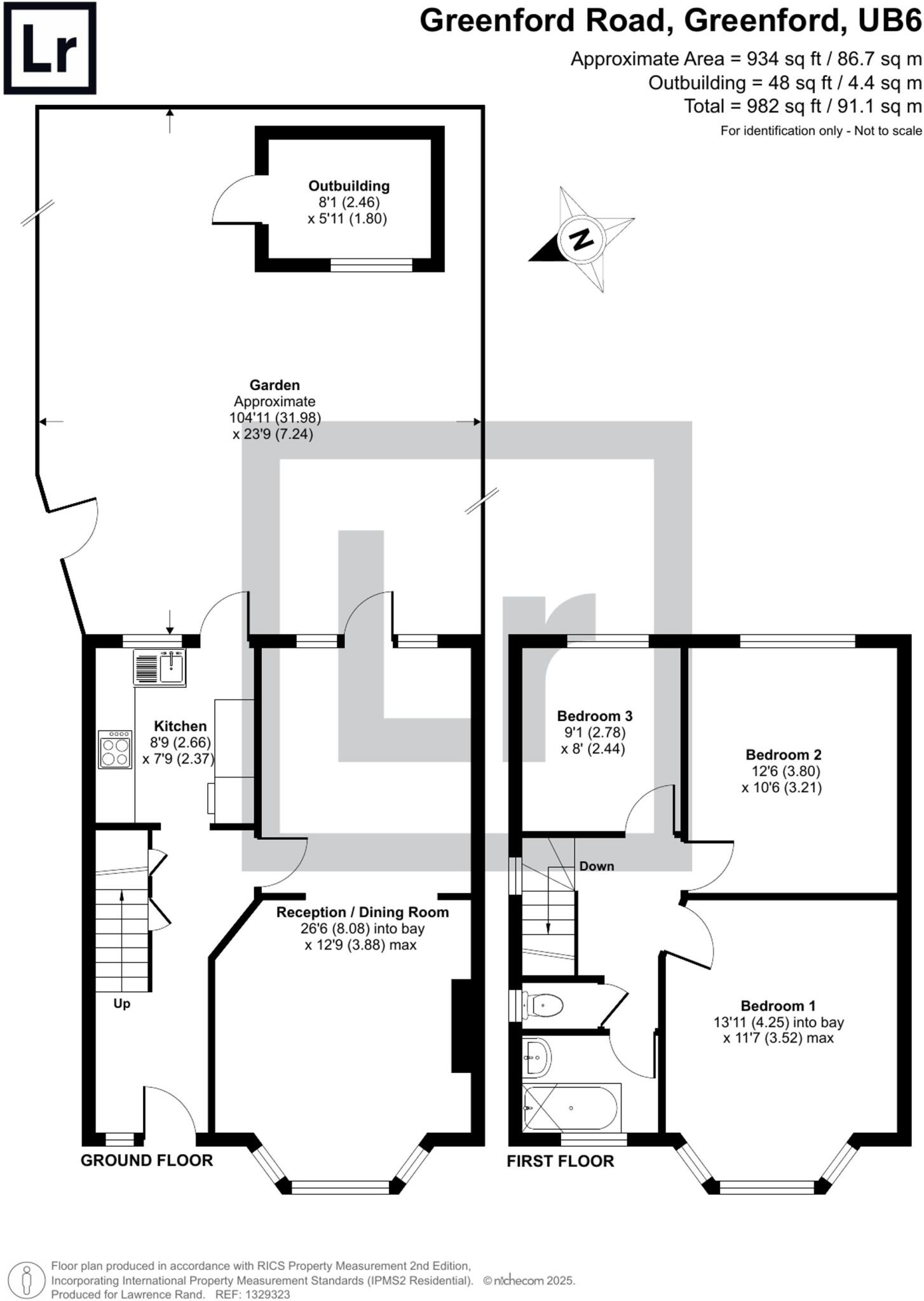
Three double bedrooms with bay-fronted living room and dining area
Large private rear garden with extensive paved patio for entertaining
Driveway providing off-street parking for two vehicles
Fast FTTP broadband and excellent mobile coverage across networks
Short walk to Greenford station (Central line) and local shops
Single family bathroom plus separate WC — potential morning bottleneck
EPC D; solid brick walls assumed uninsulated — consider energy upgrades
Local crime recorded as high; buyer should satisfy themselves on safety
This well-proportioned three-bedroom semi-detached house offers practical family living with a large rear garden and off-street parking for two cars. The through lounge/dining room and bay-fronted reception provide flexible space for family life, and the kitchen opens directly onto a paved patio ideal for outdoor dining and play.
The location is a strong everyday selling point: a short walk to Greenford station (Central line), local shops and amenities, with several highly rated primary and secondary schools nearby. Broadband is very fast (FTTP) and mobile signal is excellent across major networks, supporting home working and streaming without compromise.
Buyers should note some material points: the property has an EPC rating of D and the original solid brick walls are assumed to have no cavity insulation, so further energy upgrades may be desirable. There is a single family bathroom plus a separate WC which may cause morning congestion for a full household. Local crime levels are recorded as high, which may concern some purchasers.
Overall this 1930s–1940s home represents a practical, character-filled family opportunity in a well-connected part of Greenford. It will suit buyers wanting immediate habitable accommodation with clear potential for energy improvements or cosmetic updating to add value.
3 bedroom semi-detached house for sale in Greenford Road, Greenford, UB6 — £580,000 • 3 bed • 1 bath • 926 ft²
3 bedroom semi-detached house for sale in Barnham Road, Greenford, UB6 — £680,000 • 3 bed • 1 bath • 1186 ft²
3 bedroom semi-detached house for sale in Bennetts Avenue, Greenford, UB6 — £625,000 • 3 bed • 1 bath • 915 ft²
3 bedroom semi-detached house for sale in Crossgate, Greenford, UB6 — £650,000 • 3 bed • 1 bath • 1220 ft²
4 bedroom terraced house for sale in Portland Crescent, Greenford, UB6 — £585,000 • 4 bed • 2 bath • 1485 ft²
4 bedroom semi-detached house for sale in Daryngton Drive, Greenford, Middlesex, UB6 — £735,000 • 4 bed • 2 bath • 1629 ft²










































































