Quiet garden, great schools and quick rail links into central London.
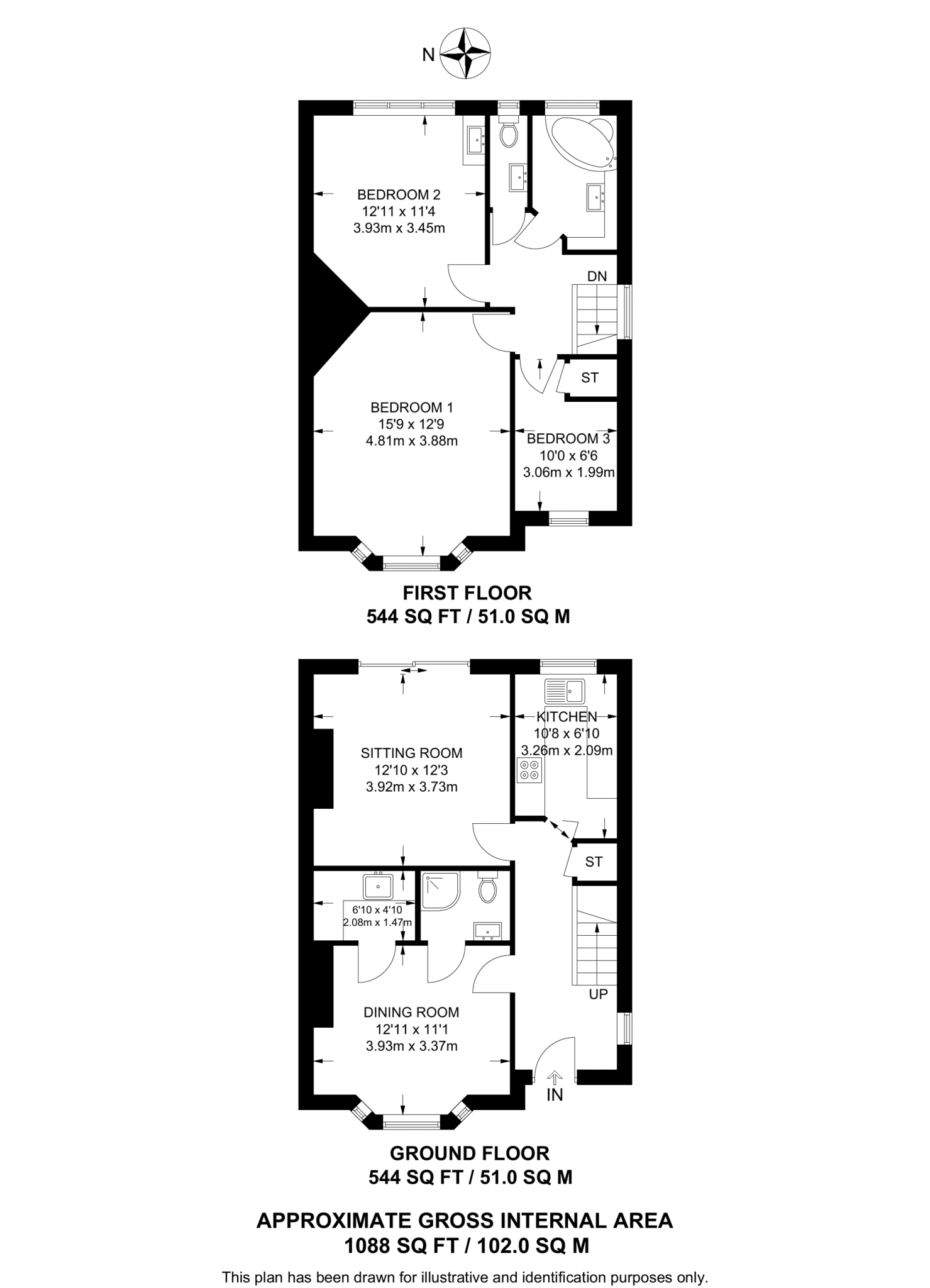
- Three double bedrooms and two bathrooms across two storeys
- Bright reception room with wooden floor and patio doors to garden
- Separate kitchen and decent private rear garden
- Approximately 1,088 sq ft; mid-20th century build (1930–1949)
- Freehold with mains gas boiler and radiator heating
- Cavity walls recorded with no insulation (assumed); upgrade opportunity
- Double glazing present; install date unknown
- Average local crime; excellent mobile signal and fast broadband
This well-proportioned three-bedroom end-of-terrace offers comfortable family living across two storeys with about 1,088 sq ft of accommodation. The bright reception room with wooden floors and patio doors opens onto a quiet private garden, while a separate kitchen and two bathrooms add practical day-to-day convenience. Constructed in the mid-20th century, the house has characterful period proportions and a sensible layout for modern family life.
The location is a key strength: close to West Norwood station with direct rail links into central London, surrounded by good primary and secondary schools (including an outstanding secondary), local shops and nearby green spaces such as Norwood Park. Daily life is supported by fast broadband, excellent mobile signal and a range of local amenities including playgrounds and sports facilities.
There are a few important points to note: the property’s cavity walls are recorded as having no built-in insulation (assumed), and the double glazing install date is unknown — both are practical upgrade opportunities that will improve comfort and running costs. Crime levels are average for the area and the property is freehold with mains gas central heating via a boiler and radiators.
Priced at £650,000, this mid-century end-terrace represents a sensible purchase for families seeking space, a garden and strong local schooling; it will particularly suit buyers willing to carry out moderate energy-efficiency improvements or cosmetic updates to personalise the home.
3 bedroom end of terrace house for sale in Egremont Road, Streatham, London, SE27 — £725,000 • 3 bed • 1 bath • 1004 ft²
4 bedroom house for sale in Norwood Park Road, West Norwood, SE27 — £650,000 • 4 bed • 2 bath • 1356 ft²
3 bedroom terraced house for sale in Ivymount Road, West Norwood, London, SE27 — £675,000 • 3 bed • 1 bath • 1003 ft²
2 bedroom house for sale in St Louis Road, West Norwood, London, SE27 — £575,000 • 2 bed • 1 bath • 688 ft²
3 bedroom house for sale in Selsdon Road, West Norwood, London, SE27 — £700,000 • 3 bed • 1 bath • 1088 ft²
3 bedroom terraced house for sale in Preston Road, Norwood, London, SE19 — £700,000 • 3 bed • 1 bath • 1176 ft²


















































































































































