Well-located family house with garden and strong schools nearby.
Three double bedrooms over two floors
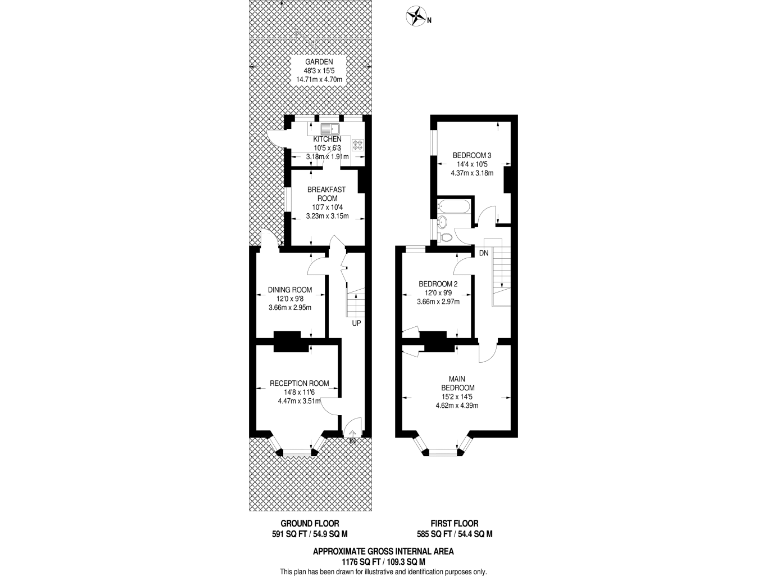
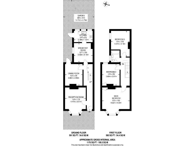
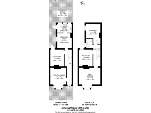
A generously arranged Victorian terraced home offering three double bedrooms across two floors, two reception rooms and a private garden — ideal for growing families seeking space and local amenities. The bright front reception and separate dining room create flexible living areas for day-to-day family life and entertaining. Good local schools, parks and frequent transport links are all within easy reach.
The property is offered as a solid period home with clear potential but some updating required. The kitchen is dated and compact with a low-average ceiling and will benefit from modernization. The house has solid brick walls likely without cavity insulation and double glazing installed before 2002, so buyers should consider energy-efficiency upgrades.
Practical positives include freehold tenure, mains gas central heating, fast broadband and low local crime. The plot is small, and there is a single bathroom, so prospective buyers should factor in layout changes or extension possibilities if more outdoor space or an extra bathroom is needed. Overall this is a characterful, well-located family home with renovation potential and strong local amenities.
3 bedroom terraced house for sale in Parish Lane, Penge, London, SE20 — £550,000 • 3 bed • 2 bath • 1051 ft²
3 bedroom terraced house for sale in The Lawns, London, SE19 — £450,000 • 3 bed • 1 bath • 946 ft²
3 bedroom terraced house for sale in College Green, London, SE19 — £600,000 • 3 bed • 1 bath • 969 ft²
3 bedroom terraced house for sale in Crampton Road, London, SE20 — £650,000 • 3 bed • 1 bath • 950 ft²
2 bedroom terraced house for sale in Crown Dale, Crystal Palace, London, SE19 — £580,000 • 2 bed • 1 bath • 977 ft²
2 bedroom terraced house for sale in Clifton Road, South Norwood, London, SE25 — £390,000 • 2 bed • 1 bath • 766 ft²


























































































































































































