Sunny enclosed garden and flexible living close to Bath.
Three double bedrooms including vaulted attic with exposed beams
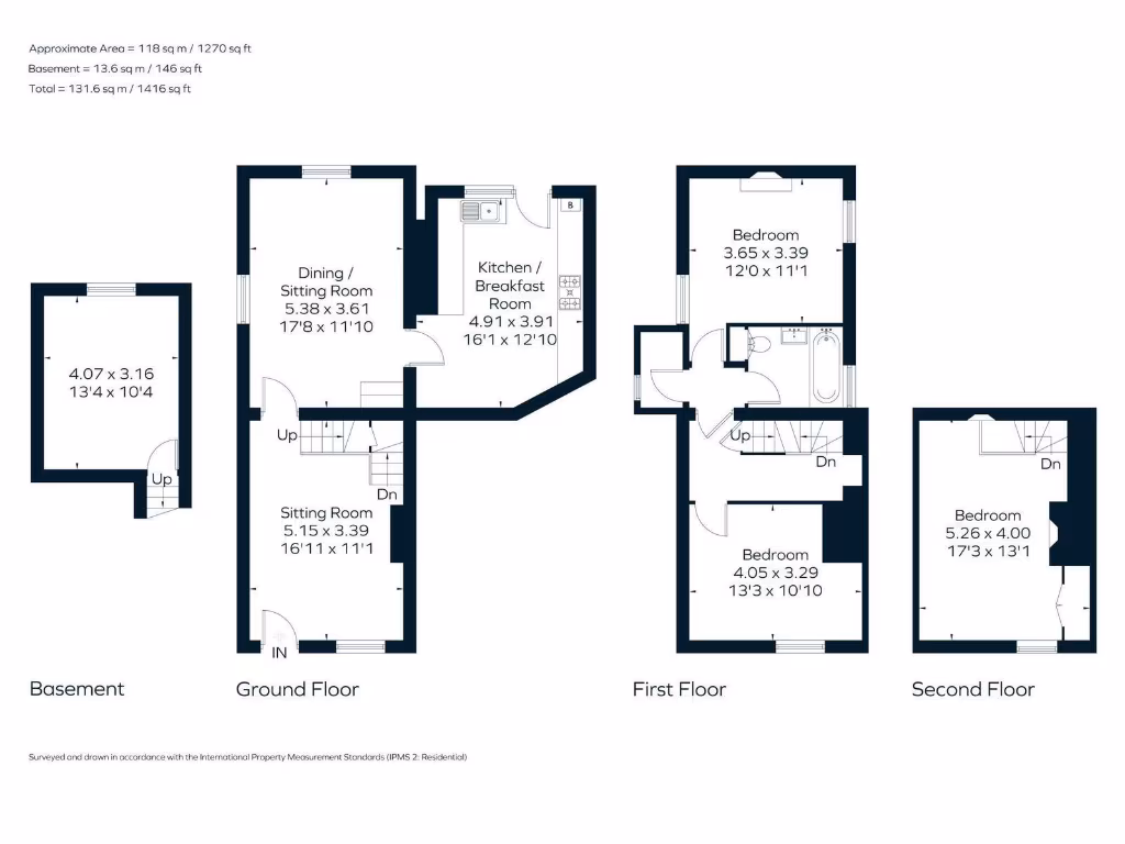
This substantial three-double-bedroom period home sits tucked in a quiet Northend hamlet yet is only a few miles from Bath city centre. Arranged over three floors, the house blends original character — fireplaces, exposed beams and decorative grates — with flexible living spaces: front sitting room, double-aspect dining room, useful cellar/office and a vaulted kitchen/breakfast room that opens to the garden.
Families will appreciate the practical layout and sunny, enclosed rear garden with patio and lawn for children and outdoor dining. The attic bedroom with vaulted ceiling and beams offers a distinctive main or guest bedroom, while two first-floor doubles provide everyday family sleeping accommodation. Local amenities, good primary schools and countryside walks are all within easy reach.
Buyers should note a few straightforward downsides: the property currently has an EPC rating of E (potential C), solid-brick construction likely needing wall insulation upgrades, and only one full bathroom plus a decommissioned WC used for storage. The plot is relatively small, so garden maintenance is modest but landscaping potential is limited. Overall, the house offers strong period charm and usable space for a family prepared to modernise energy performance and personalise the interior.
3 bedroom semi-detached house for sale in Midford Road, Odd Down, Bath, BA2 — £550,000 • 3 bed • 1 bath • 1174 ft²
3 bedroom semi-detached house for sale in London Road West, Batheaston, BA1 — £675,000 • 3 bed • 2 bath • 1317 ft²
3 bedroom terraced house for sale in Seven Acres Lane, Batheaston, BA1 — £550,000 • 3 bed • 2 bath • 1270 ft²
3 bedroom semi-detached house for sale in Kelston View, Bath, Somerset, BA2 — £335,000 • 3 bed • 1 bath • 786 ft²
2 bedroom terraced house for sale in High Street, Batheaston, BA1 — £375,000 • 2 bed • 1 bath • 824 ft²
3 bedroom detached house for sale in The Batch, Batheaston, Bath, BA1 7DR, BA1 — £469,950 • 3 bed • 2 bath • 1119 ft²


































































