Spacious four-bed home with parking and a private, sunny garden.
Chain free four-bedroom mid-terrace with flexible ground-floor bedroom and WC
Private rear garden accessed via kitchen/dining double doors
Allocated off-street parking included
Solar panels fitted to lower energy bills
Master bedroom with en-suite; total of two bathrooms
Built 2003–2006, double glazing and gas central heating throughout
Small plot and limited outdoor space
Local area classified as hampered aspiration / higher deprivation indicators
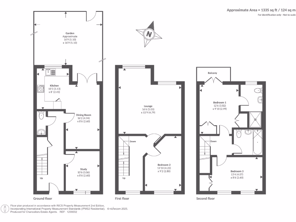
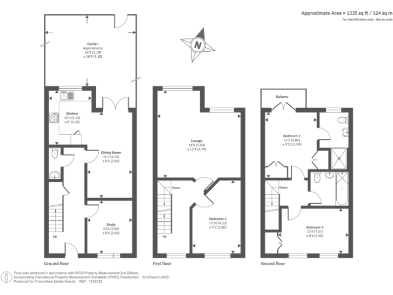
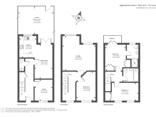
This freehold four-bedroom mid-terrace home offers practical family living across three storeys. The ground floor includes a flexible bedroom and WC, while the first floor houses a lounge and an additional bedroom. At the rear, a kitchen/dining room opens through double doors onto a private garden — ideal for children or entertaining.
Built between 2003–2006, the property is double-glazed and gas‑central heated with solar panels reducing energy costs. The master bedroom benefits from an en-suite, and allocated off‑street parking is included. At about 1,335 sq ft, the layout gives usable space for a growing household or a rental investment.
Buyers should note the plot is small and the house is a mid‑terrace, so outdoor space is limited. The local area is classified as hampered aspiration with higher deprivation indicators than average; nearby amenities and several well-rated schools are within easy reach. Council tax is moderate.
Offered chain free, this home suits families seeking ready-to-live accommodation with low running costs from solar generation, or investors wanting a modern, well‑located four-bed property with rental potential.
4 bedroom semi-detached house for sale in Tyrrell Road, Banbury, OX16 — £450,000 • 4 bed • 2 bath • 1195 ft²
4 bedroom end of terrace house for sale in Bretch Hill, Banbury, OX16 — £310,000 • 4 bed • 2 bath • 1163 ft²
4 bedroom town house for sale in Broughton Road, Banbury, OX16 — £325,000 • 4 bed • 2 bath • 1256 ft²
2 bedroom end of terrace house for sale in Banbury, Oxfordshire, OX16 — £300,000 • 2 bed • 1 bath • 714 ft²
3 bedroom terraced house for sale in Banbury, Oxfordshire, OX16 — £260,000 • 3 bed • 1 bath • 818 ft²
3 bedroom terraced house for sale in Mold Crescent, BANBURY, Oxfordshire, OX16 — £325,000 • 3 bed • 2 bath • 969 ft²






















































































