Driveway and enclosed garden — ideal starter home or rental opportunity near schools.
- Chain free sale for a quicker completion
- Three bedrooms, living room, open-plan kitchen/diner
- Off-street driveway and enclosed rear garden
- 818 sq ft; small plot and average room sizes
- System-built walls; no known insulation (energy upgrades likely)
- Double glazing present; install date unknown
- Above-average local crime and high area deprivation
- Single bathroom; scope for modernisation needed
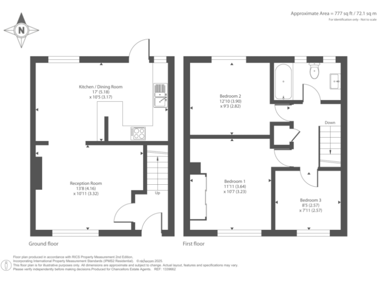
This mid-20th-century mid-terrace home in Banbury is offered chain free, making it suitable for a quick move. The house has three bedrooms, an open-plan kitchen/dining area and a separate living room, arranged across an average-sized 818 sq ft layout. Off-street parking and an enclosed rear garden add everyday convenience for families or renters.
Built in the 1950s–60s, the property appears to be a practical starter home with mains gas central heating, double glazing (install date unknown) and relatively low council tax. The plot is small and the built form is a system-built construction with no known wall insulation, so buyers should budget for energy improvements and possible remedial works to modernise fabric and services.
The location serves young families with several nearby primary and secondary schools rated Good, plus fast broadband and excellent mobile signal. Note the wider area scores a high level of deprivation and crime is above average; this may affect resale strategy and rental yield expectations. The sale is suitable for first-time buyers, investors targeting rental income, or buyers wanting refurbishment potential.
3 bedroom terraced house for sale in Causeway, Banbury, OX16 — £215,000 • 3 bed • 1 bath • 838 ft²
3 bedroom end of terrace house for sale in Portway, Banbury, OX16 1QJ, OX16 — £275,000 • 3 bed • 1 bath • 911 ft²
3 bedroom terraced house for sale in Woodfield, Banbury, OX16 — £230,000 • 3 bed • 1 bath
3 bedroom end of terrace house for sale in Grimsbury Green, Banbury, OX16 — £300,000 • 3 bed • 2 bath • 818 ft²
3 bedroom semi-detached house for sale in Banbury, Oxfordshire, OX16 — £280,000 • 3 bed • 1 bath • 987 ft²
3 bedroom semi-detached house for sale in Boxhedge Road, Banbury, OX16 — £280,000 • 3 bed • 1 bath • 732 ft²


















































































