**Standout Features:**
- Professional outside catering kitchens equipped to a high standard.
- Immediate access to A380 and M5 motorway network.
- Three dedicated walk-in fridge/freezers.
- Office and meeting rooms included in the layout.
- Expansive storage warehouse.
- Located in a picturesque rural setting, near Kenn Village.
**Potential Concerns:**
- Requires some maintenance.
- Situated in a less urban area, which might affect daily logistics for some businesses.
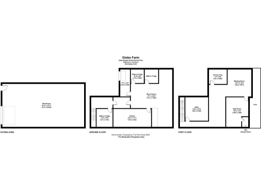
Positioned strategically at Glebe Farm in Kenn, Devon, this commercial property offers an exceptional opportunity for catering or hospitality businesses seeking a ready-to-operate facility in South Devon. With over 4,435 square feet of space, the property features two state-of-the-art catering units directly equipped with modern amenities, including three walk-in fridges, a full extraction system, and separate office or meeting areas. The large storage warehouse complements the professional kitchens, making it ideal for an expanding operation in an efficient and organized manner.
Set against a tranquil rural backdrop while maintaining essential transport links to Exeter, the A380, and the M5, this property balances serene countryside living with commercial viability. Although some maintenance is needed to maximize its potential, the low crime rate and affluent community offer a secure and encouraging environment for growth. This property won’t last long in today’s market—take advantage of this unique opportunity to elevate your business in a thriving region.
Commercial property for sale in Kennford, EX6 — £495,000 • 1 bed • 1 bath
Light industrial facility for sale in 2-4 Marsh Green Road North, Marsh Barton, Exeter, Devon, EX2 8NY, EX2 — £1,400,000 • 1 bed • 1 bath • 21854 ft²
Light industrial facility for sale in Skypark (Phase 2), Dakota Way, Clyst Honiton, Exeter, Devon, EX5 2FL, EX5 — POA • 1 bed • 1 bath • 1960 ft²
Campsite holiday village for sale in Exceptional Home and Holiday Cottage Business, North Devon, EX1 — £2,600,000 • 1 bed • 1 bath • 3909 ft²
Restaurant for sale in Rodean Restaurant, The Triangle, Kenton, Exeter, Devon, EX6 8LS, EX6 — £600,000 • 1 bed • 1 bath • 5062 ft²
Leisure facility for sale in Exceptional Home and Holiday Cottage Business, North Devon, EX1 — £2,600,000 • 1 bed • 1 bath • 3640 ft²






























