**Standout Features:**
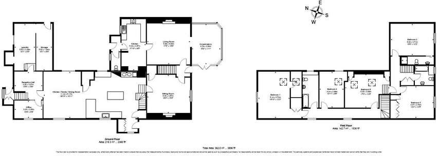
- Spacious 5-bedroom owners' farmhouse with annex, ideal for multigenerational living.
- 8 self-catering holiday cottages, each with private garden and hot tub.
- Purpose-built petting farm and animal enclosures, offering unique guest experiences.
- Multi-award-winning business with annual turnover around £300,000.
- Set in a massive 9.4-acre freehold, ensuring ample expansion opportunities.
- Excellent accessibility to North Devon's breathtaking coastline and natural attractions.
**Summary:**
Discover an exceptional opportunity in North Devon with this thriving campsite holiday village, perfect for investors or families seeking multigenerational living. The centerpiece is a spacious 5-bedroom farmhouse, featuring flexible living spaces that can serve as two self-contained units—ideal for privacy and convenience. Accompanying the farmhouse is an impressive collection of 8 self-catering cottages, each equipped with private gardens and hot tubs, catering to the growing demand for memorable holiday accommodations.
Extend your vision with the purpose-built petting farm, designed to provide unforgettable experiences for guests or to house your own animals. The property is situated on a sprawling 9.4 acres, offering plenty of room for future development or enhancement. Your guests will appreciate nearby attractions, including award-winning beaches, Exmoor National Park, and the picturesque Tarka Trail.
While the business boasts a successful turnover of approximately £300,000 and multiple accolades, buyers should be aware of the ongoing maintenance needs associated with such a large-scale property. Don’t miss out on this rare chance to invest in a beloved North Devon retreat—an opportunity that combines comfort, leisure, and substantial income potential!
 Leisure facility for sale in Exceptional Home and Holiday Cottage Business, North Devon, EX1 — £2,600,000 • 1 bed • 1 bath • 3640 ft²
 Leisure facility for sale in Exceptional Home and Holiday Cottage Business, North Devon, EX1 — £2,600,000 • 1 bed • 1 bath • 3640 ft² Leisure facility for sale in Holiday Cottage Complex, Huntsham, Tiverton, EX16 — £1,400,000 • 5 bed • 1 bath • 2732 ft²
 Leisure facility for sale in Holiday Cottage Complex, Huntsham, Tiverton, EX16 — £1,400,000 • 5 bed • 1 bath • 2732 ft² 11 bedroom mixed use property for sale in Okehampton, Devon, EX20 — £1,274,000 • 11 bed • 4 bath • 3872 ft²
 11 bedroom mixed use property for sale in Okehampton, Devon, EX20 — £1,274,000 • 11 bed • 4 bath • 3872 ft² 10 bedroom detached house for sale in Nr Woodbury, Exeter, Devon EX5 — £2,200,000 • 10 bed • 3 bath • 1451 ft²
 10 bedroom detached house for sale in Nr Woodbury, Exeter, Devon EX5 — £2,200,000 • 10 bed • 3 bath • 1451 ft² Commercial property for sale in Dunsford, Exeter, EX6 — £550,000 • 1 bed • 1 bath • 786 ft²
 Commercial property for sale in Dunsford, Exeter, EX6 — £550,000 • 1 bed • 1 bath • 786 ft² Leisure facility for sale in Acorns Campsite, Creacombe Parsonage Farm, Rackenford, Tiverton, EX16 — £1,875,000 • 1 bed • 1 bath • 8768 ft²
 Leisure facility for sale in Acorns Campsite, Creacombe Parsonage Farm, Rackenford, Tiverton, EX16 — £1,875,000 • 1 bed • 1 bath • 8768 ft²






































