Profitable freehold restaurant with large owner accommodation overlooking the village green..
- Established freehold restaurant trading profitably under 25 years ownership
- Corner position overlooking village green; strong visibility and outdoor trade
- Fully equipped commercial kitchen with extraction and walk-in cold room
- Versatile owner accommodation arranged as two interlinked apartments
- Reduced trading days offer clear scope to increase turnover
- Period features (stone walls, butcher hooks) — attractive but require upkeep
- Services reported connected but untested; EPC awaited
- Conservation area location may limit external alterations
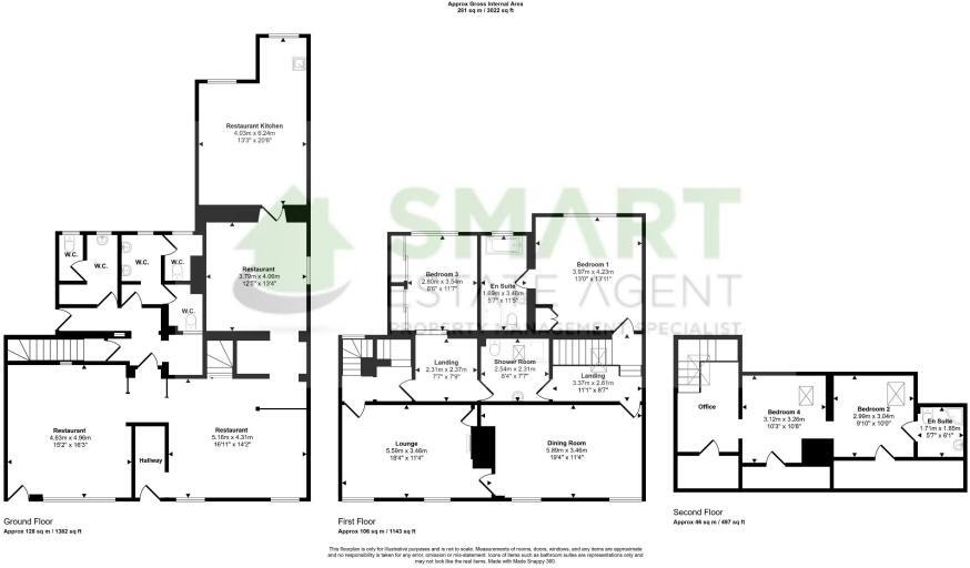
An established freehold restaurant in the heart of Kenton, offering rare combination of profitable trade and substantial owner accommodation. The Rodean has been in the same ownership for 25 years, trading successfully on a reduced schedule (Thu–Sat evenings, weekend lunches), leaving clear potential to increase service days and turnover. The property occupies a highly visible corner position overlooking the village green within the conservation area, creating excellent pass-by and outdoor trading opportunities.
The building retains character features — exposed stone walls, butcher hooks, sash windows and a chimney — and comes with a fully equipped commercial kitchen and walk-in cold room. Upstairs provides versatile living space laid out as two interlinked apartments, previously housing multiple generations; this flexibility suits owner-operators or conversion to holiday/lettings (subject to consent). Practical outside space includes a rear yard, utility area, shed and separate bin store.
Buyers should note this is a period building: while presented in good order, there is scope and likely need for ongoing maintenance and sympathetic refurbishment in parts to maximise potential. Services are stated as connected but untested and EPC is awaited. The property is offered as a going concern at OIEO £550,000 with a modest rateable value, making it attractive for incoming operators or investors wanting an established trading base in an affluent, low-crime village location.
For someone seeking a village-centre business with immediate income, character, and scope to grow trading hours or adapt the accommodation, this property provides a substantial, flexible platform. Planning enquiries should be directed to the local council to confirm alternate uses or extensions.
4 bedroom detached house for sale in The Triangle, Kenton, EX6 — £550,000 • 4 bed • 2 bath • 3186 ft²
4 bedroom terraced house for sale in Mamhead Road, Kenton, Exeter, EX6 — £425,000 • 4 bed • 2 bath • 1302 ft²
High street retail property for sale in The Triangle, Kenton, Exeter, Devon, EX6 8LB, EX6 — £450,000 • 1 bed • 1 bath • 1381 ft²
3 bedroom detached house for sale in Willsland Close, Kenton, EX6 — £475,000 • 3 bed • 1 bath • 1336 ft²
4 bedroom detached house for sale in Torrington Place, Kenton, EX6 — £650,000 • 4 bed • 3 bath • 2343 ft²
Restaurant for sale in Vacant Restaurant Premises, High Street, Exmouth, Devon, EX8 — £9,995 • 1 bed • 1 bath • 1131 ft²










































































































































