Well‑laid-out detached house near schools and the seafront, ready to personalise.
Three bedrooms including principal with ensuite
Ground-floor wet room plus additional shower room/study flexibility
Bright conservatory overlooking rear garden
Block-paved driveway for off-street parking; possible single garage presence
Freehold; mains gas boiler and radiators heating
Built c.1996–2002; scope for modernisation or reconfiguration
Double glazing installed before 2002 (original to build)
Low flood risk; council tax band moderate
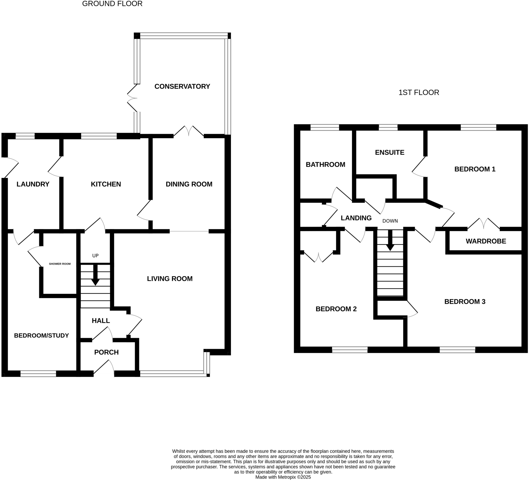
This three-bedroom detached home in Dovercourt offers practical family living close to the seafront and local schools. The ground floor layout includes a living room, separate dining room, kitchen with adjoining utility, a flexible study/ground-floor bedroom with shower room, and a bright conservatory that opens onto the rear garden. Upstairs are three bedrooms, the principal with ensuite, plus a family bathroom — useful layout for busy family life.
Outside, a block-paved driveway provides convenient off-road parking and there is a decent rear garden with paved patio for outdoor seating. The property is freehold, constructed around the late 1990s/early 2000s, with mains gas central heating and double glazing already installed. Its location on a quiet residential estate, a short distance from the seafront and several well-rated schools, is a key draw for families.
The house is presented well but retains scope for modernisation or reconfiguration if buyers want a more open-plan kitchen/dining space. Note the double glazing and other fittings are original to the build period (pre-2002), so some updating may be required over time. Council tax is moderate and flood risk is low.
No onward chain makes this practical for a quicker move, and the property’s layout suits families seeking immediate accommodation with straightforward potential to upgrade. Viewings are recommended to assess how the home meets specific layout or modernisation preferences.
4 bedroom detached house for sale in Military Way, Dovercourt, Harwich, CO12 — £370,000 • 4 bed • 2 bath • 953 ft²
4 bedroom detached house for sale in Wick Lane, Harwich, Essex, CO12 — £525,000 • 4 bed • 2 bath • 1481 ft²
3 bedroom terraced house for sale in Long Meadows, Harwich, CO12 — £245,000 • 3 bed • 1 bath • 1028 ft²
4 bedroom detached house for sale in Gordon Road, Dovercourt, Harwich, CO12 — £450,000 • 4 bed • 1 bath • 1331 ft²
3 bedroom semi-detached house for sale in Washington Road, Dovercourt, Harwich, Essex, CO12 — £245,000 • 3 bed • 1 bath • 799 ft²
3 bedroom detached house for sale in Brussels Close, Harwich, CO12 — £330,000 • 3 bed • 2 bath • 969 ft²










































































