CO12 4TU - 3 bed extended three bed terrace in Long Meadows, CO12 4TU

View on Property Piper

3 bedroom terraced house for sale in Long Meadows, Harwich, CO12

Summary - 64 LONG MEADOWS HARWICH CO12 4TU

3 bed 1 bath Terraced

Moments from Dovercourt beach with garage and a sunny private garden.
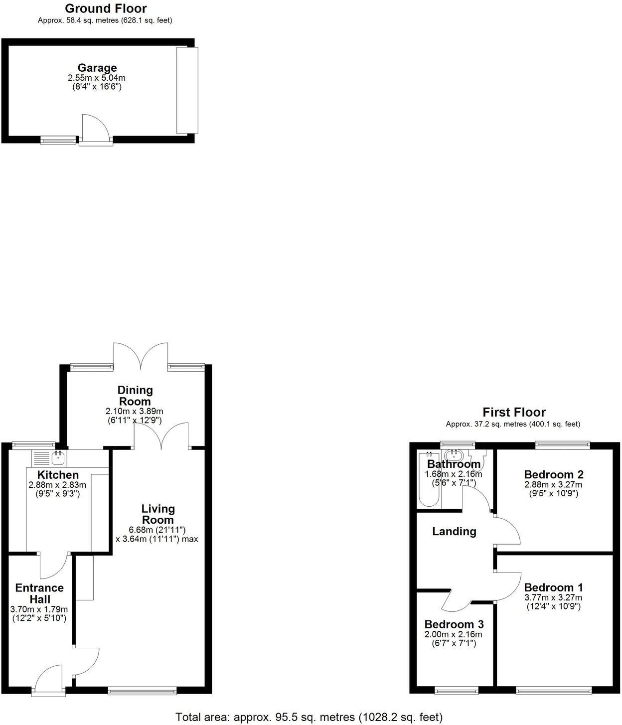
Extended dining room with wide glazed doors to garden
Set just a short walk from Dovercourt’s blue-flag beach, this extended mid-century home pairs practical family living with low-maintenance comforts. A 23' living room stretches through to a bright dining extension, which opens onto a neatly landscaped rear garden and garage with rear access — ideal for storage, hobbies or parking. The fitted galley kitchen is smart and serviceable, with space for appliances and tiled flooring for easy upkeep.

Upstairs are two comfortable double bedrooms and a smaller third room suitable as a home office or single bedroom. The bathroom is a tidy three-piece suite with an electric shower over the bath. The house benefits from double glazing and a mains gas boiler with radiators, offering everyday efficiency, and council tax is inexpensive.

Practical buyers should note the property sits on a modest plot and is average in overall size; the layout and finishes are broadly modern but reflect mid-20th-century construction (circa 1967–75). The EPC is D, so buyers planning long-term occupation may want to consider energy-efficiency improvements. There is only a single bathroom and some buyers might prefer additional WCs or further modernisation.

For families or buyers seeking a seaside location with low local crime and good nearby schools, this home presents a sensible, comfortable package with straightforward potential to personalise. The garage and rear access are useful extras that add flexibility for storage, cycle or water-sport equipment popular in this coastal town.

Property Details

Image Descriptions

Floorplan Description

Rooms

Textual Property Features

Target Audience

AI Tags

Detected Visual Features

EPC Details

Nearby Schools

Nearest Bars And Restaurants

,,,,}

Nearest General Shops

,,}

Nearest Grocery shops

,,}

Nearest Supermarkets

,,}

Nearest Religious buildings

,,}

Nearest Medical buildings

,,,}

Nearest Leisure Facilities

,,,,}

Nearest Tourist attractions

,,}

Nearest Train stations

,,,,}

Nearest Bus stations and stops

,,,,}

Nearest Hotels

,,}

Tags

Local Market Stats

Similar Properties

Meta

High Res Images

Compatible Images

Low res Images

Thumbnails

Raw Images

High Res Floorplan Images

Compatible Floorplan Images

Low res Floorplan Images

FloorplanImages Thumbnail

Raw Floorplan Images