Spacious period family house with character, recent structural work and garden retreat.
- Four bedrooms with flexible reception space and cellars for storage
- Character features: high ceilings, bay windows, restored floorboards
- Recent conservation works: roofing, structural and damp-proofing improvements
- One family bathroom plus ground-floor WC; may be tight for families
- Partial double glazing; further improvement could reduce heat loss
- Private, enclosed rear garden with mature fruit trees and new shed
- Freehold, no flood risk, excellent mobile signal, average broadband
- Located in a very deprived area; consider long-term resale factors
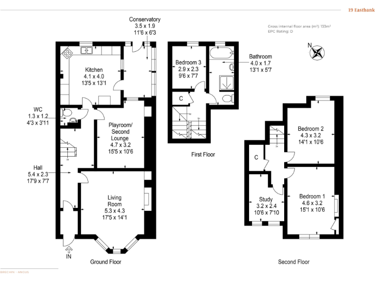
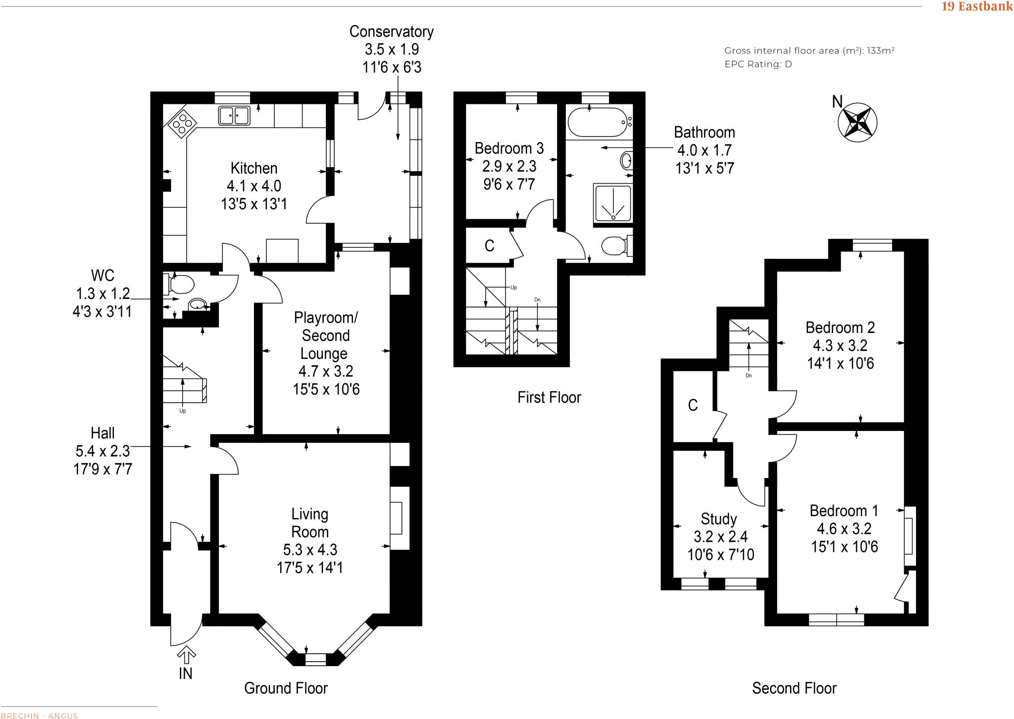
A striking Edwardian semi-detached villa, this four-bedroom home pairs original period detail with practical modern upgrades. High ceilings, bay windows and restored floorboards give strong character, while recent conservation works — including roof, structural and damp-proofing improvements — reduce immediate maintenance risk. Heating is gas central with Hive controls for efficiency; glazing is partial double glazing.
The flexible layout suits family life: a bright bay-front lounge, second reception room for dining or play, large dining kitchen and conservatory that opens onto a private, enclosed rear garden with mature fruit trees. Cellar access from two rooms provides useful storage or potential conversion subject to checks. There is one bathroom and a ground-floor WC, so morning routines may feel tight for larger households.
Practical points: the property is freehold, not at risk of flooding, and benefits from excellent mobile coverage but only average broadband speeds. The home sits on a tree-lined street close to central Brechin with easy road links (A92) to larger centres. The surrounding area scores high on local need and is described as very deprived, which may influence long-term resale and investment considerations.
This villa will suit buyers seeking a spacious family home with period charm and recent essential conservation work already completed. The house presents further scope for updating and personalization, especially around glazing and bathroom provision, to modernize for contemporary family living.
4 bedroom detached house for sale in Pearse Street, Brechin, Angus, DD9 — £290,000 • 4 bed • 2 bath • 1715 ft²
3 bedroom semi-detached house for sale in Southesk Street, Brechin, DD9 — £150,000 • 3 bed • 2 bath • 1108 ft²
6 bedroom terraced house for sale in 3A Castle Street, Brechin, DD9 6JW, DD9 — £299,000 • 6 bed • 3 bath • 2415 ft²
5 bedroom end of terrace house for sale in Market Street, Brechin, DD9 — £150,000 • 5 bed • 1 bath • 1333 ft²
4 bedroom end of terrace house for sale in 136 Denstrath Road, Edzell, Brechin, DD9 — £132,500 • 4 bed • 2 bath • 1378 ft²
5 bedroom terraced house for sale in Wellington Gardens, Montrose, Angus, DD10 — £265,000 • 5 bed • 3 bath • 1841 ft²


























































































