Modern, move-in ready two-bedroom home with garden and tandem parking.
Two double bedrooms with contemporary family bathroom
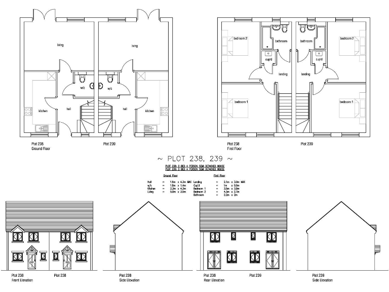
Ready for occupation and built in 2019, this two-bedroom semi-detached house offers a modern, low-maintenance home aimed at first-time buyers or couples. The ground floor opens into an open-plan living and dining area with French doors onto a larger-than-typical rear garden and a full-width patio — ideal for outdoor entertaining or family use. The fitted Kitchen Craft kitchen includes built-in appliances (double oven, 4-ring gas hob, dishwasher) and practical plumbing for laundry appliances.
Internally the layout is efficient: two double bedrooms upstairs and a contemporary family bathroom with shower over bath. The property benefits from mains gas central heating, UPVC double glazing, LVT flooring to the ground floor, and an NHBC warranty for buyer reassurance. Outside, there are two tandem off-street parking spaces to the side and low flood risk for peace of mind.
Buyers should note the compact overall floor area (approximately 586 sq ft) and a single bathroom, which may suit couples, first-time owners or as a rental investment but may be tight for larger families. There is an annual site service charge of £295 and council tax is to be assessed. Broadband is not yet connected on site, though mobile signal is strong and fast speeds are expected when activated.
Overall this is a straightforward, contemporary starter home with modern fixtures and outside space — move-in ready with clear running costs and a modest service charge. Inspect to judge the space and layout in person and to confirm covenants or any further specification details.
2 bedroom terraced house for sale in Plot 448 Markham Fields, 11 Stable Lane, Weymouth DT4 0NE, DT4 — £295,000 • 2 bed • 1 bath • 681 ft²
2 bedroom terraced house for sale in Plot 404 Curtis Fields, 32 Bramble Road, Weymouth DT4 0FT, DT4 — £277,500 • 2 bed • 1 bath • 911 ft²
2 bedroom semi-detached house for sale in Plot 477 Markham Fields, 33 Markham Avenue, Weymouth DT4 0QL, DT4 — £297,500 • 2 bed • 1 bath • 725 ft²
2 bedroom semi-detached house for sale in Plot 383 Fields, 1 Bramble Road, Weymouth, DT4 0FT, DT4 — £290,000 • 2 bed • 1 bath • 567 ft²
2 bedroom end of terrace house for sale in Plot 375 Curtis Fields, 17 Bramble Road, Weymouth DT4 0FT, DT4 — £287,500 • 2 bed • 1 bath • 667 ft²
2 bedroom semi-detached house for sale in Plot 297 Curtis Fields, 81 Curtis Fields, Weymouth, DT4 0TS, DT4 — £295,000 • 2 bed • 1 bath • 856 ft²






















































































