DT4 0TS - 2 bedroom semidetached house for sale in Plot 383 Fields, 1…

View on Property Piper

2 bedroom semi-detached house for sale in Plot 383 Fields, 1 Bramble Road, Weymouth, DT4 0FT, DT4

Summary - Plot 383 Fields, 1 Bramble Road, Weymouth, DT4 0FT DT4 0TS

2 bed 1 bath Semi-Detached

- Southeast-facing full-width patio and larger rear garden
- Photovoltaic roof panels reduce energy costs
- Contemporary Kitchen Craft kitchen with built-in appliances
- Parking for two cars side by side
- 10-year NHBC warranty included
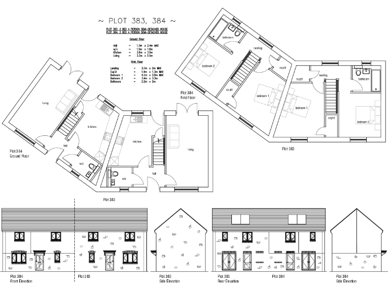
- Compact footprint (~567 sq ft) and single bathroom
- Annual service charge £295 per property
- Medium surface-water flood risk; broadband not yet assessed
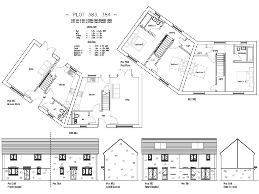
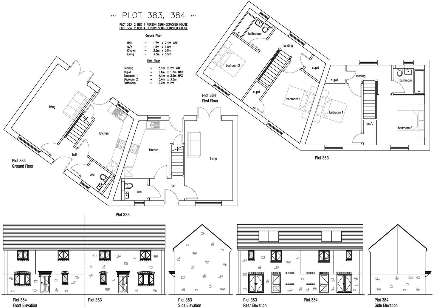
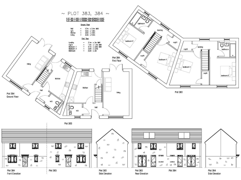
A newly built two-bedroom semi with natural stone elevations and a full-width southeast patio, ideal for first-time buyers seeking low-maintenance modern living. The ground floor offers an open lounge with French doors onto a generous rear garden and a contemporary Kitchen Craft kitchen fitted with integrated appliances. Photovoltaic roof panels reduce running costs, and a 10-year NHBC warranty provides initial peace of mind.

Practical daily life is well catered for: UPVC double glazing, gas central heating, LVT flooring to the ground floor and parking for two cars side by side. Both bedrooms are doubles and storage is helped by built-in cupboards; the family bathroom is finished in a contemporary white suite.

Notable points to consider: the home is compact at around 567 sq ft and has a single bathroom, which may feel tight for some households. There is an annual site service charge of £295 and a medium surface-water flood risk (no river/sea risk). Broadband/connectivity has not been fully assessed yet and council tax banding is to be confirmed.

Overall this plot presents a ready-to-move-in, energy-conscious option for buyers wanting modern finishes, off-street parking and low initial maintenance. It suits buyers prioritising location, warranty-backed new construction and economy of running costs over large internal space.

Property Details

Brochure Descriptions

Image Descriptions

Floorplan Description

Rooms

Textual Property Features

Detected Visual Features

EPC Details

Nearby Schools

Nearest Bars And Restaurants

,,,,}

Nearest General Shops

,,}

Nearest Grocery shops

,,}

Nearest Supermarkets

,,}

Nearest Religious buildings

,,}

Nearest Medical buildings

,,,}

Nearest Leisure Facilities

,,,,}

Nearest Tourist attractions

,,}

Nearest Train stations

,,,,}

Nearest Bus stations and stops

,,,,}

Nearest Hotels

,,}

Tags

Local Market Stats

AirBnB Data

Similar Properties

Meta

High Res Images

Compatible Images

Low res Images

Thumbnails

Raw Images

High Res Floorplan Images

Compatible Floorplan Images

Low res Floorplan Images

FloorplanImages Thumbnail

Raw Floorplan Images