Energy-efficient new build with warranty and included appliances, ideal for first-time buyers.
- Rooftop photovoltaic panels reduce energy bills
- 10-year NHBC warranty for buyer protection
- Contemporary fitted Howdens kitchen with AEG appliances
- LVT flooring included to ground floor
- Two double bedrooms; built-in wardrobe to bedroom one
- Tandem parking for two cars to rear (limited convenience)
- Small rear garden, low-maintenance but modest size
- Annual service charge £295; broadband not yet connected
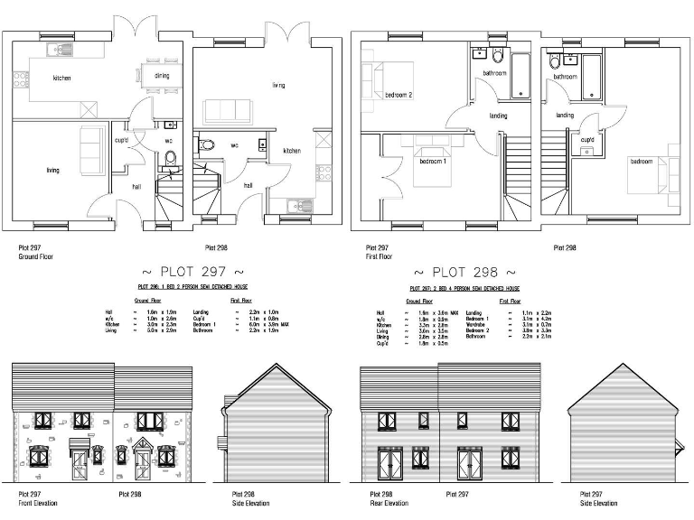
A newly built two-bedroom semi-detached house on Curtis Fields, finished with part natural stone elevations and fitted with rooftop photovoltaic panels. The layout suits first-time buyers seeking low-running costs: gas central heating, UPVC double glazing and integrated AEG appliances are included, plus LVT flooring to the ground floor and a 10-year NHBC warranty.
Ground floor living is arranged as a lounge, separate kitchen/diner with French doors onto a full-width patio and a turfed rear garden. There is a convenient ground-floor WC and built-in wardrobe to the principal bedroom. Two tandem parking spaces sit to the rear of the plot.
Practical points: completion is scheduled for November, a site service charge of £295 per annum applies, and broadband has not yet been connected on site. The plot is modest in size and parking is tandem, which may limit convenience for some households. Council tax banding is not yet available.
Overall this property offers sensible, energy-conscious new-build specification and a small garden for low-maintenance outdoor space. It will suit buyers who prioritise modern appliances, warranty protection and proximity to Weymouth town and seafront amenities, while accepting the compromises of a compact plot and tandem parking.
2 bedroom semi-detached house for sale in Plot 359 Curtis Fields, 60 Curtis Fields, Weymouth, DT4 0TS, DT4 — £300,000 • 2 bed • 1 bath • 856 ft²
2 bedroom terraced house for sale in Plot 372 Curtis Fields, 23 Bramble Road, Weymouth DT4 0FT, DT4 — £277,500 • 2 bed • 1 bath • 802 ft²
2 bedroom end of terrace house for sale in Plot 374 Curtis Fields, 19 Bramble Road, Weymouth, DT4 0FT, DT4 — £290,000 • 2 bed • 1 bath • 856 ft²
2 bedroom end of terrace house for sale in Plot 405 Curtis Fields, 34 Bramble Road, Weymouth, DT4 0FT, DT4 — £300,000 • 2 bed • 1 bath • 856 ft²
2 bedroom terraced house for sale in Plot 373 Curtis Fields, 21 Bramble Road, Weymouth, DT4 0FT, DT4 — £285,000 • 2 bed • 1 bath • 856 ft²
2 bedroom semi-detached house for sale in Plot 299 Curtis Fields, 85 Curtis Fields, Weymouth, DT4 0TS, DT4 — £297,500 • 2 bed • 1 bath • 856 ft²


























































