Large rural site with income, redevelopment potential and flexible industrial use.
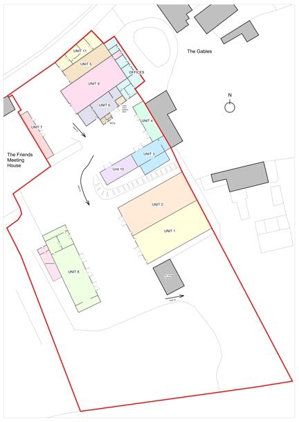
Freehold multi-let industrial estate, 11 units totalling 24,234 sqft
A rare freehold, multi-let light industrial estate in a semi-rural Norfolk village, offered as a single lot with immediate rental income and redevelopment upside. The site comprises 11 units totalling 24,234 sqft GIA across a 4.5-acre site, with an extra 2.2-acre parcel of grass/shrub land to the rear. Current combined income is £90,128 pa and the business is held within an SPV, which can be included in the sale for potential SDLT efficiencies.
Buildings are a practical mix of adapted traditional Norfolk barn and blockwork warehousing with pitched fibre-cement roofs, concrete forecourts and individual parking. The estate benefits from broad use flexibility (Class E(g), B2 and B8) which supports industrial, workshop, storage and some commercial activities. For an investor or small developer, the site offers immediate cashflow plus clear scope for refurbishment, consolidation or residential redevelopment (subject to planning).
Notable negatives are straightforward: many buildings are older and dated, requiring repair or refurbishment to realise higher rents or alternative uses; the site sits in a medium flood-risk area which will influence planning and insurance; and current income reflects lettings in their present condition, so value-add investment will be needed to lift returns. Any residential redevelopment would be subject to local planning consent and technical surveys.
This opportunity suits a buyer who can manage an operational estate while progressing longer-term uplift through refurbishment or redevelopment (STP). The combination of size, flexible use classes and extra land in a relatively affluent rural area makes it attractive to investors, occupiers seeking rural space, or small-scale developers prepared to navigate planning and flood-risk considerations.
Light industrial facility for sale in 53 Fengate, Marsham, Norwich, Norfolk, NR10 5PT, NR10 — £750,000 • 1 bed • 1 bath • 15457 ft²
Land for sale in Dog Lane, Horsford, NR10 — £2,500,000 • 1 bed • 1 bath • 5557 ft²
Commercial property for sale in Dog Lane, Horsford, NR10 — £2,500,000 • 1 bed • 1 bath • 24823 ft²
Light industrial facility for sale in 18 Whiffler Road, Norwich, Norfolk, NR3 2AZ, NR3 — £895,000 • 1 bed • 1 bath • 10157 ft²
Light industrial facility for sale in 1a,2,3 & 5, Drayton Industrial Estate, 2-3 Taverham Road, Drayton, Norwich, Norfolk, NR8 6RL, NR8 — £285,000 • 1 bed • 1 bath • 21918 ft²
Office for sale in 22 Meteor Close, Norwich, Norfolk, NR6 6HR, NR6 — £325,000 • 1 bed • 1 bath • 5620 ft²










































