Chain-free first-floor flat with long lease (circa 900 years)
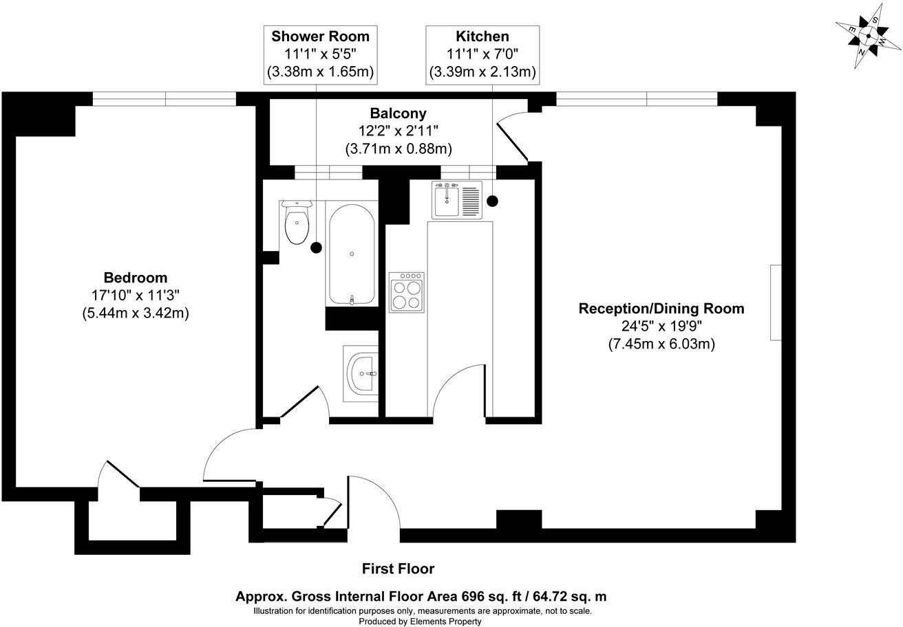
Set on the first floor of a purpose-built block at the corner of Harley Street and Queen Anne Street, this newly renovated one-bedroom flat offers rare space for central Marylebone. The apartment benefits from a generous reception room, a large double bedroom with built-in storage, and a south-facing private balcony that brings sunlight and leafy views over the street.
The building includes lift access, an intercom, and a community heating and hot-water scheme (included in the service charge). A long lease (circa 900 years) and chain-free sale simplify purchase, while the property’s licence to practice makes it suitable for professional use or single-occupier investment.
Practical considerations are frank: the service charge is above average at £5,824 pa and council tax is described as expensive. The block has secondary glazing and solid-brick construction with no assumed cavity insulation; buyers seeking maximum energy efficiency may wish to investigate upgrade options. There is no private parking or garden.
This apartment will suit buyers seeking a well‑proportioned, centrally located pied-à-terre or a lettable investment close to Regents Park, Bond Street and Baker Street transport links. The location’s convenience and the flat’s size offer clear potential, but factor in running costs and potential retrofit works if energy improvements are desired.
1 bedroom flat for sale in Harley Street, London, W1G — £1,250,000 • 1 bed • 1 bath • 571 ft²
2 bedroom apartment for sale in Harley Street, London, W1G — £1,095,000 • 2 bed • 1 bath • 860 ft²
2 bedroom flat for sale in Marylebone Street, London, W1G — £1,795,000 • 2 bed • 2 bath • 947 ft²
1 bedroom apartment for sale in Wyndham Street, London, W1H — £815,000 • 1 bed • 2 bath • 570 ft²
2 bedroom flat for sale in Montagu Mansions, London, W1U — £2,175,000 • 2 bed • 2 bath • 1238 ft²
2 bedroom flat for sale in Marylebone Square, Marylebone, W1, W1U — £5,650,000 • 2 bed • 2 bath • 1399 ft²










































