WA10 2JG - Commercial property for sale in Duke Street, St. Helens, WA…

View on Property Piper

Commercial property for sale in Duke Street, St. Helens, WA10

Summary - 129 DUKE STREET ST HELENS WA10 2JG

1 bed 1 bath Commercial Property

**Standout Features:**

- Prime location in bustling St. Helens town centre
- Versatile layout suitable for various commercial uses
- Ground floor previously utilized as a tattoo parlour
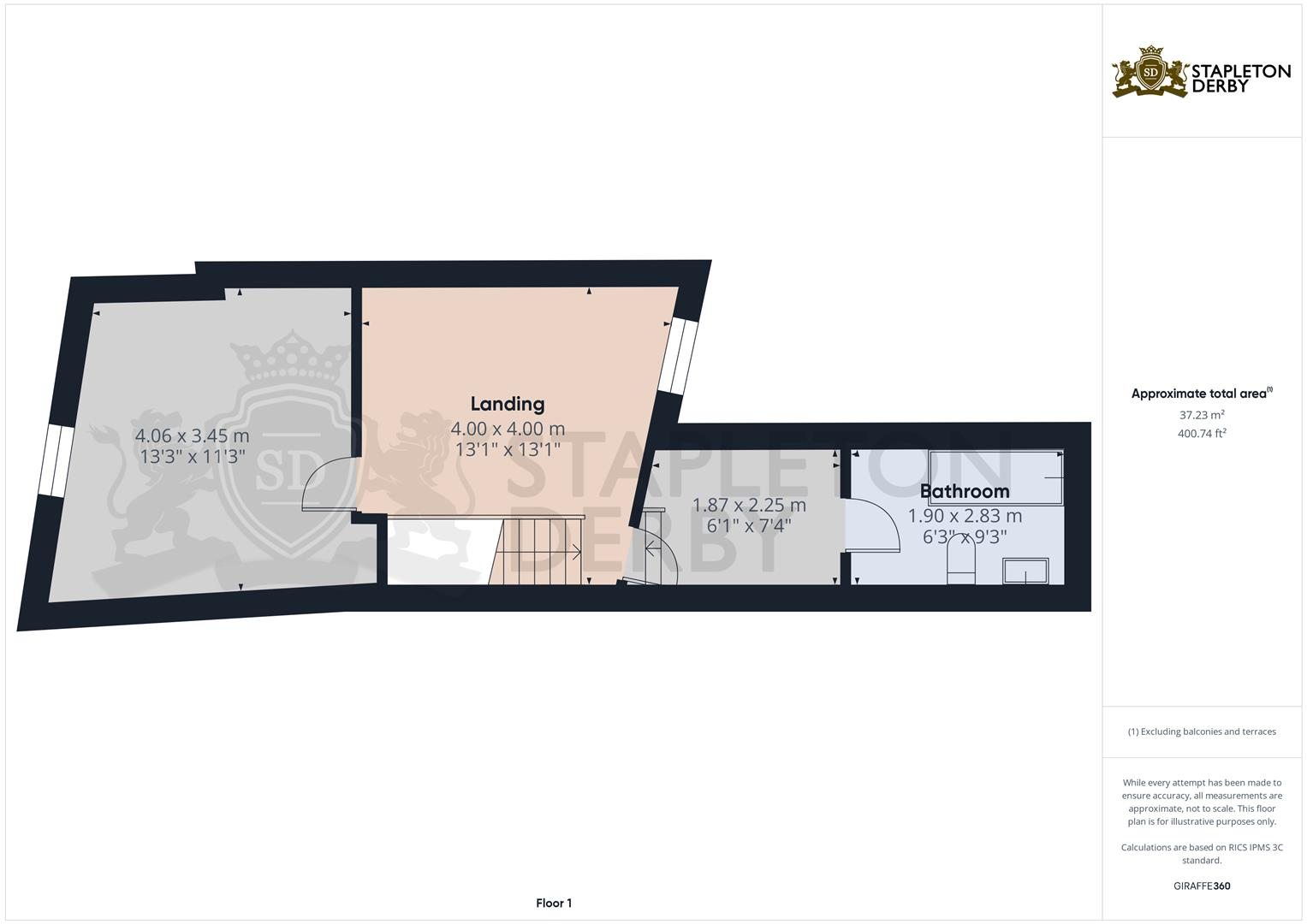
- First-floor one-bedroom apartment ideal for residential or rental use
- Freehold tenure, chain-free for quick occupancy
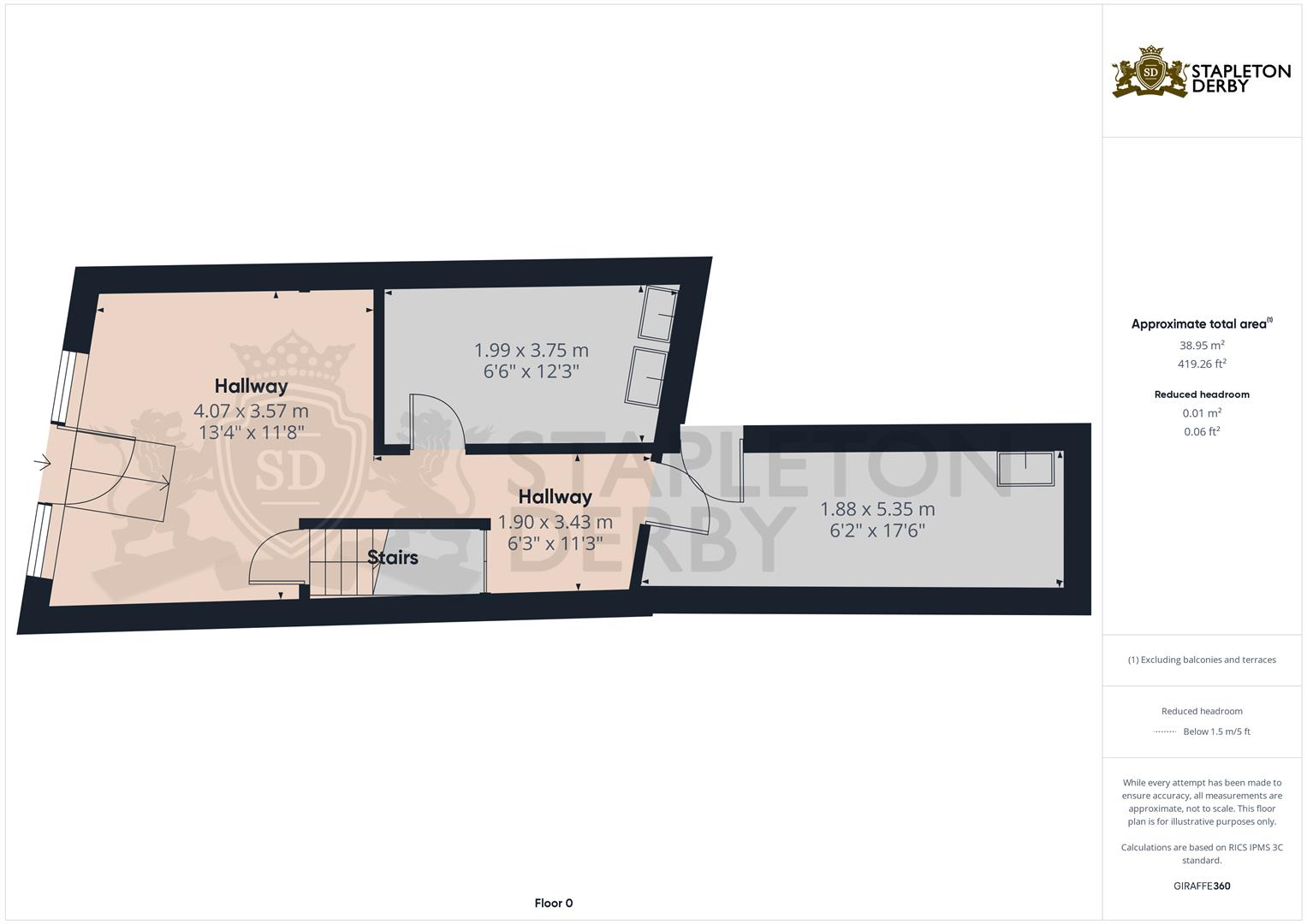
- Total size: 820 sq ft (large for diverse business opportunities)

**Summary:**

Seize a remarkable dual-investment opportunity with this prominent commercial building located in the lively heart of St. Helens. Featuring a versatile layout, the ground floor presents ample space ripe for business, previously serving as a tattoo parlour, while the upper-level holds a cozy one-bedroom apartment, perfect for residential living or rental income.

High foot traffic ensures your business will be noticed, while the central location offers a constant stream of potential customers. With no onward chain, this property can enable immediate entry into the commercial marketplace or provide a unique living arrangement for entrepreneurs. Although it is situated in a challenging area with high crime rates and deprivation, the potential for business growth is substantial. This sizeable property, spanning 820 sq ft, is ideal for small to medium enterprises looking to make their mark. Don’t miss this exceptional opportunity—viewings are highly recommended!

Property Details

Brochure Descriptions

Image Descriptions

Floorplan Description

Rooms

Textual Property Features

Detected Visual Features

Nearby Schools

Nearest Bars And Restaurants

,,,,}

Nearest General Shops

,,}

Nearest Grocery shops

,,}

Nearest Supermarkets

,,}

Nearest Religious buildings

,,}

Nearest Medical buildings

,,,}

Nearest Airports

,}

Nearest Leisure Facilities

,,,,}

Nearest Tourist attractions

,,}

Nearest Train stations

,,,,}

Nearest Bus stations and stops

,,,,}

Nearest Hotels

,,}

Tags

Local Market Stats

Similar Properties

Meta

High Res Images

Compatible Images

Low res Images

Thumbnails

Raw Images

High Res Floorplan Images

Compatible Floorplan Images

Low res Floorplan Images

FloorplanImages Thumbnail

Raw Floorplan Images