Two freehold plots with planning consent for 2 semi-detached homes in a quiet village setting..
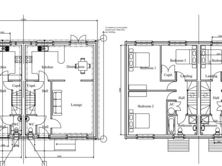
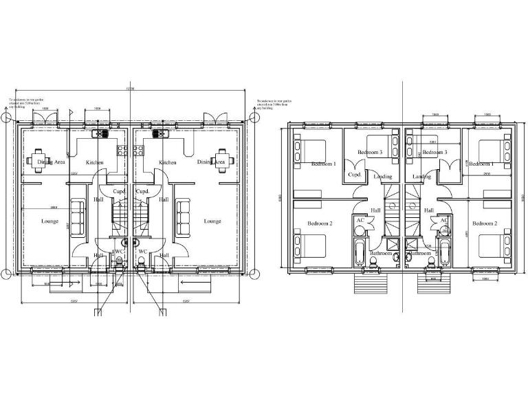
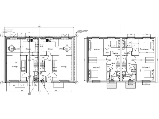
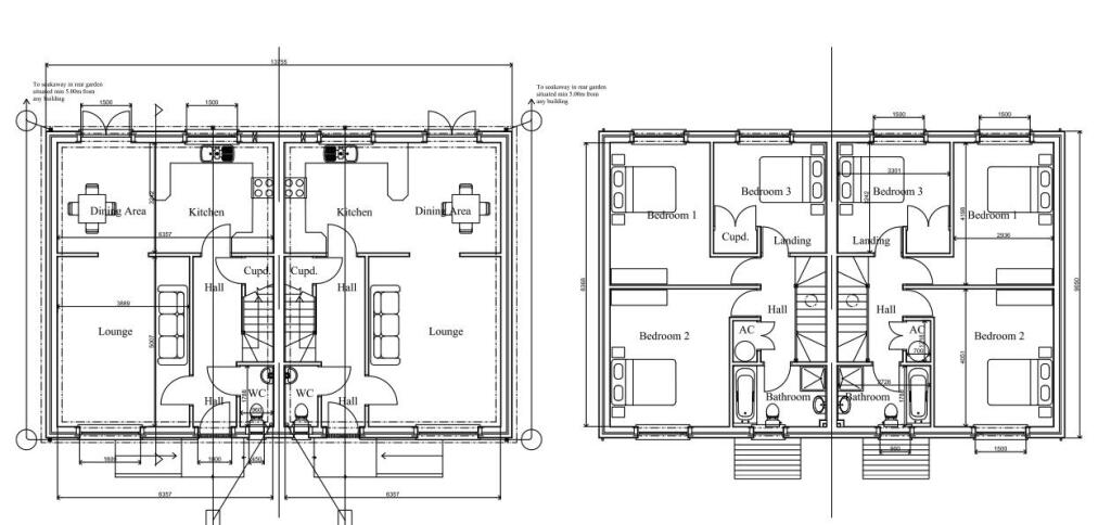
Planning granted for 2 x three-bedroom semi-detached houses (24/0571/PA).
A rare small-scale development opportunity in Boncath: two freehold building plots with planning consent for 2 x three-bedroom semi-detached houses (planning ref 24/0571/PA granted 20 Feb 2025). The site sits adjacent to the former Boncath Inn and includes provision for gardens and off-street parking for both dwellings. Flood risk is recorded as none, and the plots back onto open skies and nearby trees, offering a semi-rural setting.
This opportunity suits a local developer or investor seeking a straightforward build with planning in place. The plots are currently vacant and overgrown, so initial site clearance and standard groundwork will be required. Services and broadband are described as average; consider enquiry with Pembrokeshire County Council and utility providers for connections and build-cost clarity before purchase.
Important considerations: the wider area is classified as agricultural/remoter communities and the local area is flagged as very deprived — this may affect resale values and rental demand. The price reflects plot-level risk and the need for on-site preparation. No flood risk is recorded, and tenure is freehold.
Overall, this is a practical, affordable development plot with permission for two family homes, suited to buyers who can manage site preparation and who value a quiet village location with countryside character.
Plot for sale in Boncath, Near Cardigan , SA37 — £95,000 • 1 bed • 1 bath
Land for sale in Llangludwen, Whitland, Carmarthenshire, SA34 — £185,000 • 1 bed • 1 bath
Plot for sale in Llanglydwen, Hebron, Whitland, SA34 — £160,000 • 1 bed • 1 bath
Plot for sale in Maes Cawnen, Trelech, Carmarthen, SA33 — £120,000 • 1 bed • 1 bath
Plot for sale in Maenclochog, Clynderwen, SA66 — £175,000 • 1 bed • 1 bath
Land for sale in Crymych, Pembrokeshire, SA41 — £275,000 • 1 bed • 1 bath


































