SA34 0XP - Plot for sale in Llanglydwen, Hebron, Whitland, SA34

View on Property Piper

Plot for sale in Llanglydwen, Hebron, Whitland, SA34

Summary - GWAITH MENYN, LLANGLYDWEN - BLAENWAUN SA34 0XP

1 bed 1 bath Plot

**Standout Features:**
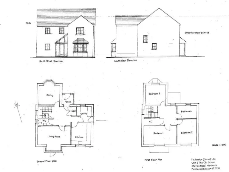
- Planning permission for two detached two-storey dwellings
- Spacious garden areas included
- Excellent location in the tranquil village of Llanglydwen
- Investment opportunity with potential for resale or personal residence
- Proximity to local schools, amenities, and transport links
- Freehold tenure, chain-free purchase

Unlock the potential of two exceptional building plots in the sought-after and serene village of Llanglydwen, Carmarthenshire. With planning permission already secured for the construction of two traditional two-storey homes, each boasting three bedrooms and generous garden space, this property presents a unique investment opportunity or the chance to create your dream home in a stunning rural backdrop.

Enjoy the charm of village living while being conveniently located near the local pub, schools, and transportation options, including the nearby train station for easy commutes. The area features low crime rates and a peaceful atmosphere, making it ideal for families or investors seeking properties in a tranquil setting. Surround yourself with nature and community without sacrificing modern conveniences. Don’t miss out on this chance to secure a slice of countryside living—act quickly, as opportunities like this are rare and highly sought after!

Property Details

Brochure Descriptions

Image Descriptions

Textual Property Features

Detected Visual Features

Nearest Bars And Restaurants

,,,,}

Nearest General Shops

,,}

Nearest Grocery shops

,,}

Nearest Supermarkets

,,}

Nearest Religious buildings

,,}

Nearest Medical buildings

,,,}

Nearest Leisure Facilities

,,,,}

Nearest Tourist attractions

,,}

Nearest Train stations

,,,,}

Nearest Bus stations and stops

,,,,}

Nearest Hotels

,,}

Tags

Local Market Stats

AirBnB Data

Similar Properties

Meta

High Res Images

Compatible Images

Low res Images

Thumbnails

Raw Images