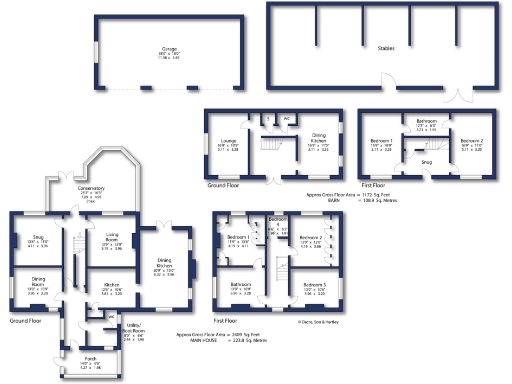
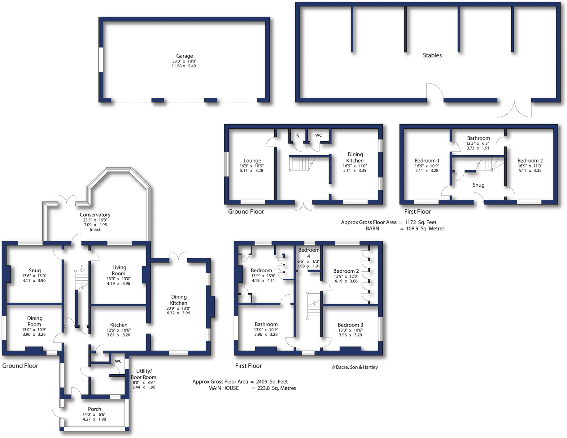
Spacious grounds, separate barn and stables — perfect for multi-generational living.
- Main house: four bedrooms; converted barn: two bedrooms (total six)
Set in about 1.336 acres, this stone-built family home combines period character with flexible living. The main house offers four generous bedrooms, a bright, extended dining kitchen with Rangemaster, multiple reception rooms and a conservatory that frames sweeping garden and countryside views. A cleverly converted detached barn provides two further bedrooms and independent living space — ideal for guests, an older child, or potential short-term let subject to licences and consents.
Outdoors is a principal selling point: landscaped lawns, mature planting, a large pond, vegetable beds with greenhouse, gated cobbled courtyard and a triple garage with electric doors. Equine or smallholding pursuits are supported by a paddock, stable block and large hen run. Broadband and mobile coverage are good and there is parking for many cars — useful for family life or running a home business.
Buyers should note practical issues plainly. The property sits in an area with above-average crime and wider local deprivation indicators. The house has double glazing installed before 2002 and cavity walls assumed to lack insulation — further energy-efficiency work may be needed. Council tax is high (Band F) and the converted barn will need the appropriate licences and consents for commercial use such as an AirBnB.
This is a rare opportunity for a family wanting separate accommodation on the same plot, or for someone seeking a home with smallholding or equestrian potential. The balance of character, generous outdoor space and additional dwelling creates scope to adapt the estate to changing household needs or income-generating uses, but expect headline running and upgrade costs to improve energy efficiency and meet any regulatory requirements for the barn.
4 bedroom barn conversion for sale in Haigh Moor Road, Tingley, Wakefield, WF3 — £750,000 • 4 bed • 2 bath • 1812 ft²
Equestrian facility for sale in Dean Head, Scotland Lane, Horsforth, Leeds, LS18 — £895,000 • 4 bed • 1 bath • 2500 ft²
4 bedroom detached house for sale in Dean House Farm, Allerton Lane, BD15 — £480,000 • 4 bed • 3 bath • 2799 ft²
6 bedroom detached house for sale in Latham Lane, Gomersal, Cleckheaton, West Yorkshire, BD19 — £1,250,000 • 6 bed • 6 bath • 2778 ft²
6 bedroom barn conversion for sale in Stubley Farm Road, Heckmondwike, West Yorkshire, WF16 — £635,000 • 6 bed • 5 bath • 3038 ft²
5 bedroom detached house for sale in Blackmoor Lane, Leeds, LS17 — £1,500,000 • 5 bed • 4 bath • 5003 ft²










































































































































