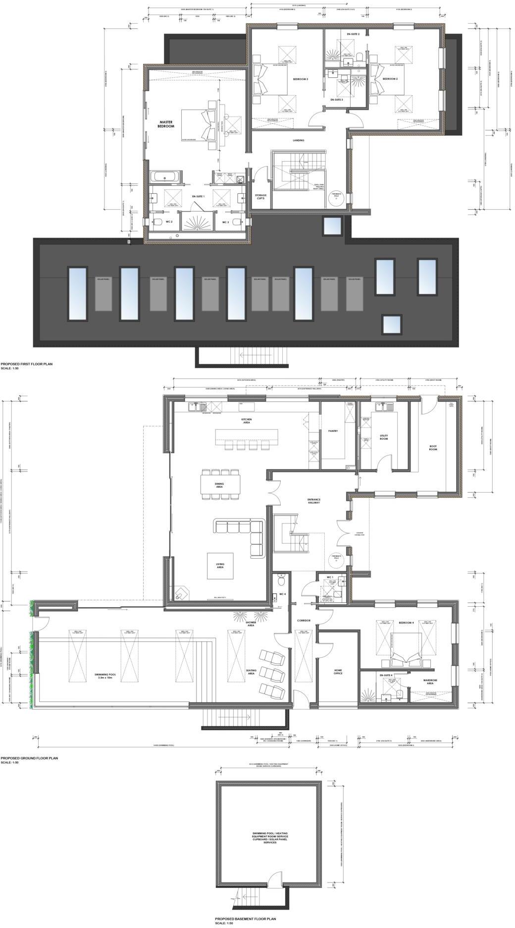
**Standout Features:**
- **Sizeable Plot:** Approximately 0.4 acres in the prestigious Golden Triangle area.
- **Planning Permission:** Full permission granted for a contemporary Grand Designs-style residence.
- **Prime Location:** Close to excellent schools and amenities; 1.2 miles from Norwich railway station.
- **Affluent Neighborhood:** Located on one of Norwich's most refined roads with a blend of historical and modern architecture.
- **Future Potential:** Exceptional opportunity for bespoke design and luxury living.
Discover a rare opportunity to build your dream home on an impressive south-facing plot of approximately 0.4 acres in Norwich's esteemed Golden Triangle. This site offers full planning permission for a stunning, state-of-the-art Grand Designs-style residence, making it perfect for ambitious buyers looking to create a bespoke living space. The plot is conveniently located just 1.2 miles from Norwich railway station and within close proximity to outstanding educational institutions, including the renowned Norwich High School for Girls.
The location boasts a tranquil, upscale atmosphere complemented by mature gardens and distinctive properties, enhancing its exclusivity. While the guide build cost is approximately £1,050,000 with no VAT, final costs will align with your personalized fit-out preferences. This is a unique chance not to be missed, particularly for those seeking a blend of luxury, practicality, and the opportunity to shape a future landmark property in one of the city's most desirable settings. With plans and detailed build quotes readily available, this exceptional plot invites you to envision and curate your ideal lifestyle. Act swiftly to secure this exclusive opportunity!
Plot for sale in Little Plumstead, Norwich, NR13 — £500,000 • 6 bed • 6 bath • 8000 ft²
Plot for sale in Intwood Lane, Swardeston, NR14 — £400,000 • 4 bed • 3 bath • 3000 ft²
Plot for sale in The Loke, Costessey, NR5 — £500,000 • 2 bed • 2 bath
Plot for sale in Yarmouth Road, Norwich, Norfolk, NR7 — £1,250,000 • 1 bed • 1 bath
Plot for sale in Banningham Road, Aylsham, Norwich, Norfolk, NR11 — £400,000 • 4 bed • 1 bath • 4853 ft²
Land for sale in Townhouse Road, Costessey, Norwich, NR8 — £300,000 • 1 bed • 1 bath • 1938 ft²


























