**Standout Features:**
- Desirable village location in Swardeston, 4 miles south of Norwich
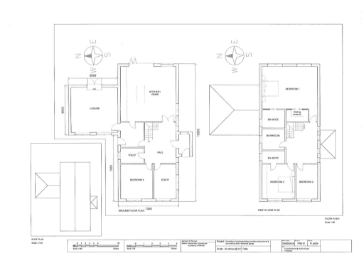
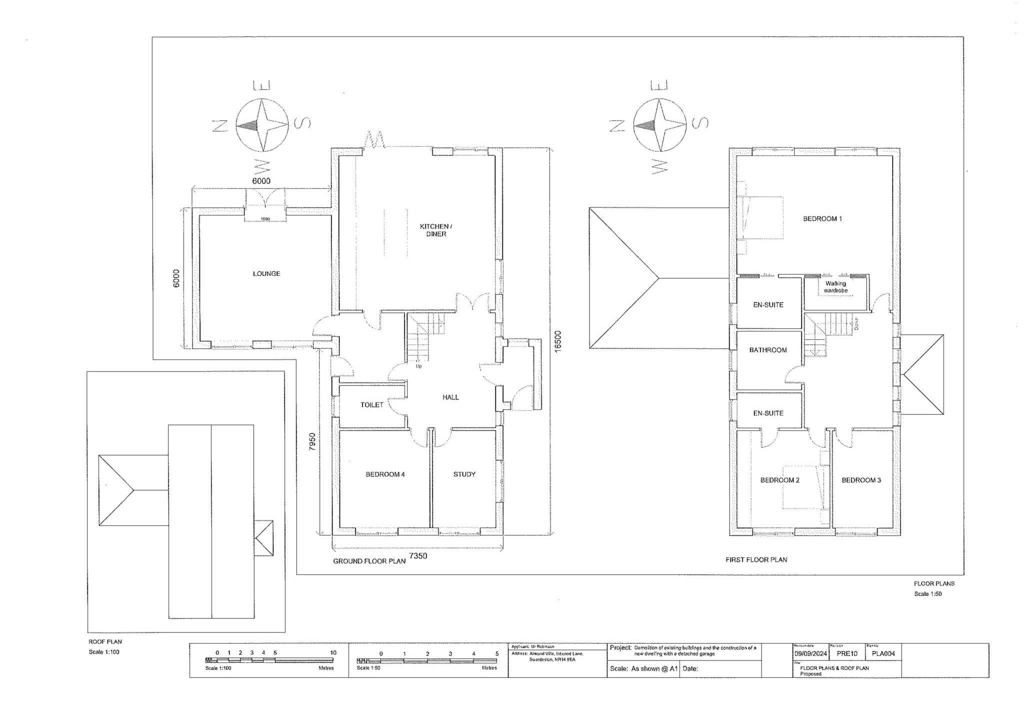
- Approved planning permission for a 4-bedroom detached residence (Ref: 2024/1677)
- Spacious plot of approximately 0.22 acres (STMS), with field views to the front and rear
- Proposed design offers 3,000 sq ft of living space, plus a double garage
- Close proximity to local amenities, schools, and transport links
This exceptional building plot in Swardeston presents a rare opportunity to craft your dream home in a sought-after village setting. With full planning approval for an impressive four-bedroom detached residence, you'll enjoy sweeping field views and the prospect of creating over 3,000 sq ft of bespoke living space. The location is ideal—only four miles from Norwich, residents can easily access nearby amenities, including supermarkets and local shops, as well as top-rated independent schools and primary education options.
Perfect for families, this plot offers unrivaled potential in an affluent area, combined with low crime rates and a welcoming community. Additionally, with fast transport links to Norwich and London, it's not just a home, but a lifestyle. Don’t miss this unique chance to realize your vision; contact us today to arrange a site visit and start your journey toward creating the perfect family haven.
Plot for sale in Town Close Road, Norwich, NR2 — £1,200,000 • 4 bed • 4 bath • 4951 ft²
Plot for sale in Little Plumstead, Norwich, NR13 — £500,000 • 6 bed • 6 bath • 8000 ft²
Land for sale in Townhouse Road, Costessey, Norwich, NR8 — £300,000 • 1 bed • 1 bath • 1938 ft²
Land for sale in Silfield Road, Wymondham, NR18 — £85,000 • 1 bed • 1 bath • 1157 ft²
Land for sale in Manor Farm Close, Drayton, Norwich, NR8 — £250,000 • 1 bed • 1 bath • 22131 ft²
Plot for sale in The Loke, Costessey, NR5 — £500,000 • 2 bed • 2 bath










