Large freehold plot with consent for a striking four-bedroom countryside home.
Planning permission granted for 4,853 sqft detached barn-style dwelling
CIL payment already satisfied by the current owner
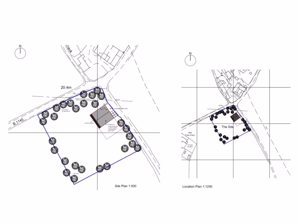
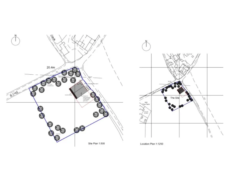
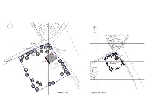
Huge 1.6 acre plot with countryside and field views
Freehold tenure; no flood risk and low local crime
Approved scheme shows four bedrooms but only one bathroom listed
Buyer responsible for build costs, contractor and planning conditions
Average broadband and mobile signal; check service connections
Close to Aylsham amenities and several ‘Good’ rated schools
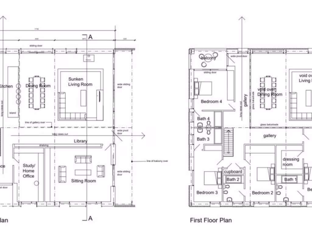
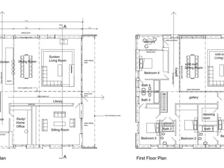
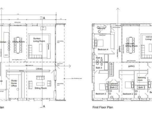
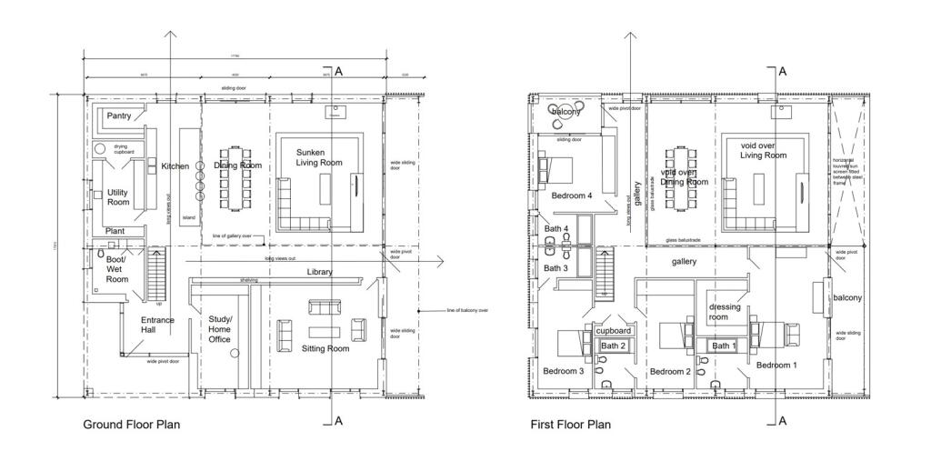
A rare, large freehold plot on the edge of Aylsham with planning permission granted for a detached four-bedroom, barn-style home. The consent (South Norfolk/Broadland 2024/3094) covers a substantial 4,853 sqft dwelling sited within approximately 1.6 acres of land, with CIL already satisfied. The site offers wide Norfolk field views and space for a garden and garage.
This opportunity suits a family or buyer seeking a substantial countryside new build with contemporary, energy-efficient design potential. The permission describes a modern, double-height, minimalist barn-style property with large windows and open-plan living; however, the project is a plot sale — the purchaser will be responsible for detailed build costs, contractor procurement, and complying with any conditions attached to the consent.
Practical advantages include freehold tenure, no flood risk, low local crime, and proximity to Aylsham amenities and good local schools. Utilities and communications are described as average; prospective buyers should confirm service connections, build costs, and any outstanding planning conditions with the local authority before exchange.
Notable considerations: the approved scheme is large for its location and lists only one bathroom against four bedrooms in the provided data, which may require review before construction. Council tax banding is not yet known. This plot is best for buyers prepared to manage a significant new-build project rather than those seeking a move-in-ready home.
Land for sale in Plot 1 land adjacent to Caradon, Shortthorn Road, Stratton Strawless, Norwich, Norfolk NR10 5NU, NR10 — £225,000 • 4 bed • 1 bath
Land for sale in Plot 2 land adjoining Caradon, Shortthorn Road, Stratton Strawless, Norwich, Norfolk NR10 5NU, NR10 — £225,000 • 5 bed • 1 bath
Land for sale in Building Plot, Great Witchingham, NR9 — £279,000 • 1 bed • 1 bath
4 bedroom detached house for sale in Brandiston Road, Cawston, Norfolk, NR10 — £1,250,000 • 4 bed • 3 bath • 2904 ft²
Plot for sale in Chequers Street, East Ruston, NR12 — £155,000 • 1 bed • 1 bath • 1883 ft²
5 bedroom detached house for sale in Salle, Norwich, Norfolk, NR10 — £475,000 • 5 bed • 4 bath • 5000 ft²














