Move-in ready family home with large garden and flexible living spaces.
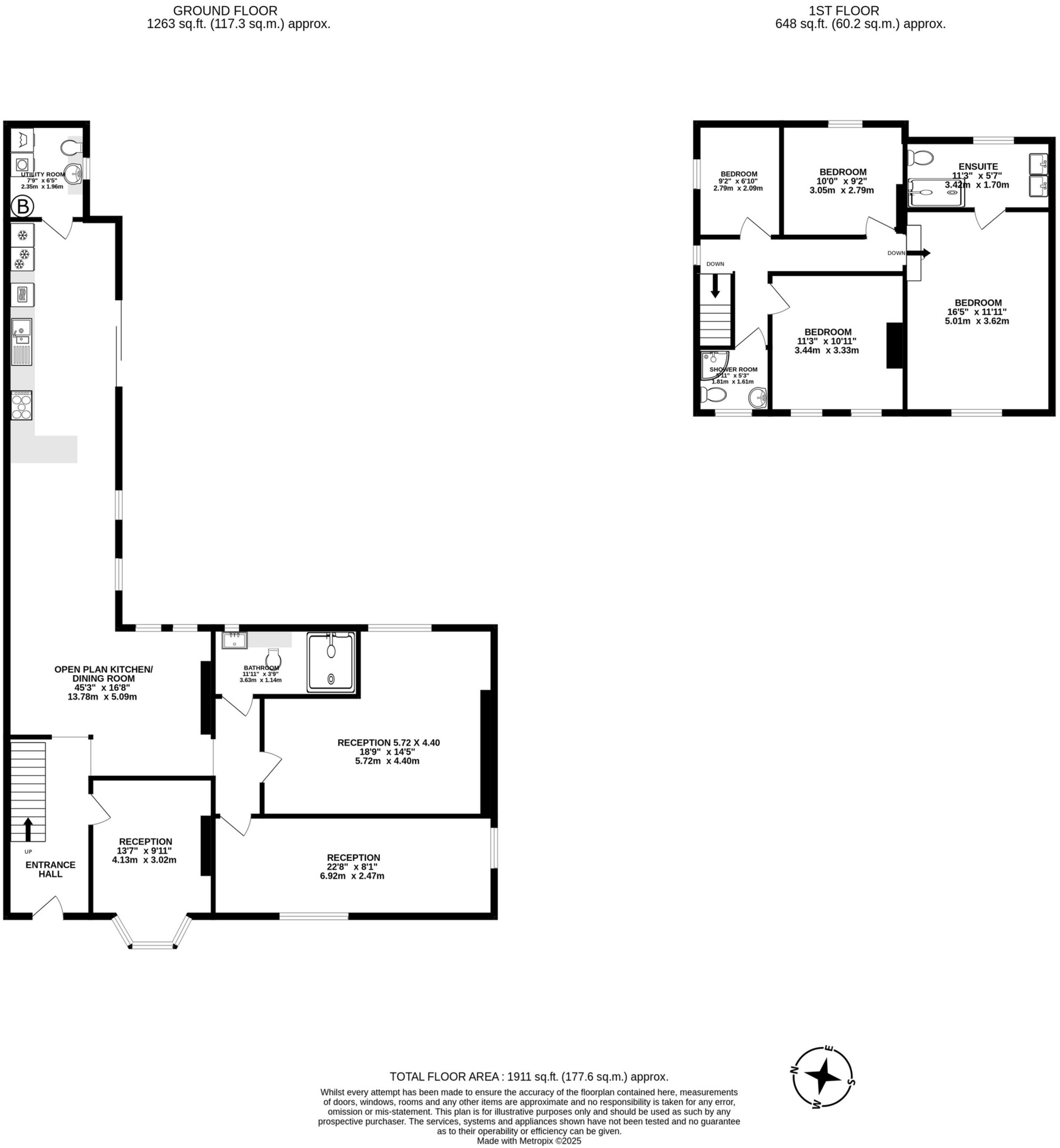
Four bedrooms and three modern shower rooms, including master en suite
Impressive open-plan kitchen/diner with integrated appliances and garden access
Underfloor heating in tiled areas; separate utility room and ground-floor WC
Recently replastered; new flooring, carpets and replacement windows throughout
Large south-facing rear garden and detached outbuilding for storage/workshop
Generous gravel driveway with covered carport providing extensive off-street parking
Solid brick construction (1900–1929) — may need insulation upgrades for efficiency
Glazing install date unknown; possible medium-term window upgrade costs
This recently refurbished detached period house blends original character with well-executed modern upgrades, offering four bedrooms and three contemporary shower rooms, including an en suite to the principal bedroom. The impressive open-plan kitchen/dining space with integrated appliances opens to the large south-facing rear garden, creating a flexible family hub for daily living and entertaining. Practical additions such as a separate utility/WC, feature glass staircase and underfloor heating in tiled areas add comfort and convenience.
The property has been comprehensively refreshed: replastered walls, new flooring and carpets, and replacement windows throughout, allowing immediate occupation with minimal initial work. A large gravel driveway with covered carport provides extensive off-street parking, and a detached outbuilding gives useful workshop or storage space. Local amenities, schools and the town centre are within walking distance, making this a convenient family location.
Buyers should note the house dates from the early 20th century and retains solid brick walls; external or internal insulation upgrades may be required to meet future energy targets. The glazing install date is unspecified, so replacement windows could be a medium-term cost if higher thermal performance is desired. Overall, the home offers move-in-ready condition with sensible scope for personalised improvement and value enhancement.
3 bedroom semi-detached house for sale in Lynn Road, Wisbech, Cambridgeshire, PE13 3DH, PE13 — £220,000 • 3 bed • 2 bath • 1509 ft²
6 bedroom detached house for sale in Wisbech, PE13 — £650,000 • 6 bed • 3 bath • 4377 ft²
5 bedroom detached house for sale in Wisbech, PE13 — £425,000 • 5 bed • 3 bath • 2701 ft²
4 bedroom detached house for sale in Woodcote Park, Wisbech, Cambs, PE13 1LX, PE13 — £425,000 • 4 bed • 2 bath • 1830 ft²
3 bedroom detached house for sale in Wisbech, Cambridgeshire, PE13 — £375,000 • 3 bed • 2 bath • 2073 ft²
4 bedroom semi-detached house for sale in Clarkson Avenue, Wisbech, PE13 — £280,000 • 4 bed • 2 bath










































































































