Low-maintenance one-bedroom retirement flat near shops, bus route and seafront.
No onward chain, first-floor one-bedroom retirement flat
Close to shops, main bus route, 1.5 miles to town and seafront
uPVC double glazing; electric storage heating (may need upgrading)
Service charge £1,569.28 every six months (includes water)
Ground rent £260 every six months; lease approx. 98 years remaining
Communal facilities: lounge, laundry, guest suite, house warden
Resident parking available on a first-come, first-served basis
Compact kitchen with built-in oven/hob; décor and fittings dated
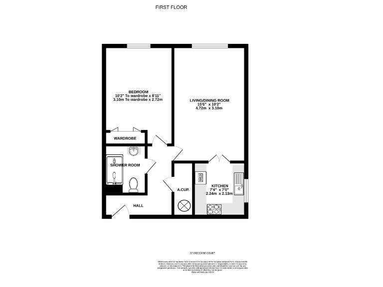
This first-floor, one-bedroom retirement apartment at Orcombe Court offers a compact, low-maintenance home for the over-55s. Located close to Littleham Cross shops and on the 57 bus route, it’s about 1.5 miles from Exmouth town centre, train station and seafront—convenient for local amenities and coastal walks.
The flat has a bright living/dining room, fitted kitchen with built-in oven, hob and hood, a double bedroom with fitted wardrobe and a shower room with grab rails. The building is uPVC double glazed and heated by electric storage heaters; communal facilities include a residents’ lounge, laundry, guest suite, on-site house manager and well-kept gardens.
Practical considerations are clear: the property is leasehold with about 98 years remaining, is sold with no onward chain, and attracts a service charge of £1,569.28 every six months (includes water) plus ground rent of £260 every six months. Parking is available on a first-come, first-served basis. The apartment is well suited to buyers seeking an independent but supported retirement setting, but those concerned about running costs or future heating upgrades should factor in the electric heating and service charges.
1 bedroom flat for sale in Littleham Road, Exmouth, EX8 2ET, EX8 — £75,000 • 1 bed • 1 bath • 491 ft²
1 bedroom retirement property for sale in Littleham Road, Exmouth, Devon, EX8 — £65,000 • 1 bed • 1 bath • 558 ft²
1 bedroom flat for sale in Littleham Road, Exmouth, Devon, EX8 2ET, EX8 — £80,000 • 1 bed • 1 bath • 505 ft²
2 bedroom flat for sale in Littleham Road, Exmouth, Devon, EX8 — £110,000 • 2 bed • 1 bath • 745 ft²
2 bedroom retirement property for sale in Littleham Road, Exmouth, Devon, EX8 — £110,000 • 2 bed • 1 bath • 627 ft²
1 bedroom ground floor flat for sale in Littleham Road, Exmouth, EX8 2ET, EX8 — £90,000 • 1 bed • 1 bath • 390 ft²














































