**Standout Features:**
- Spacious 3/4 bedroom Victorian cottage with rich coastal history
- Approximately 1.25 acres of land with river frontage
- Dual reception rooms and a modern kitchen with AGA
- Versatile outbuilding ideal for studio or home office
- Close proximity to National Trust salt marshes and local amenities
**Potential Concerns:**
- Cavity walls may require insulation for efficiency
- Potential maintenance concerns typical of older properties
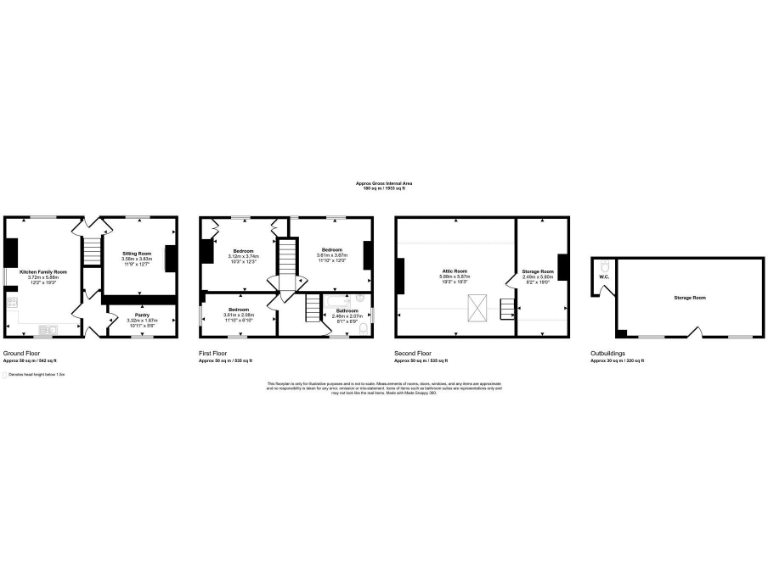
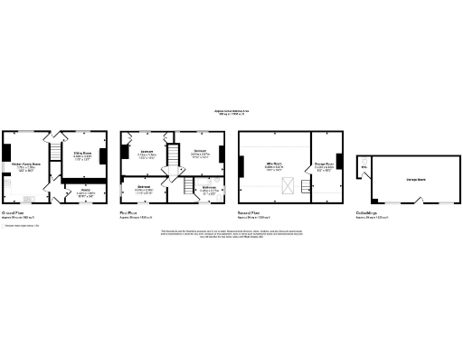
Immerse yourself in the charm of Gracious Cottage, a character-rich Victorian home nestled in the picturesque coastal village of Stiffkey. With three spacious bedrooms and versatile living areas, this property seamlessly combines period details with contemporary comforts. The heart of the home features a stunning triple-aspect kitchen and family room, perfectly positioned for panoramic views and airy light.
Set on a generous 1.25 acres, including enchanting river frontage, the outdoor space is a peaceful retreat, ideal for families or nature enthusiasts. An attractive outbuilding with a WC provides valuable additional space for a studio or garden office, enhancing the property's versatility.
Located just a short stroll from the beautiful National Trust salt marshes and convenient local amenities such as The Red Lion pub and Stiffkey Stores, this property is perfect for those seeking a blend of community and natural beauty. While the historic character may necessitate some updates, the potential for personal touches is immense, making it a perfect canvas for your dream coastal lifestyle. Don’t miss your opportunity to own this enchanting coastal retreat in one of North Norfolk’s most sought-after locations. Act now; your idyllic home awaits!
2 bedroom cottage for sale in Stiffkey, NR23 — £450,000 • 2 bed • 1 bath • 935 ft²
3 bedroom detached house for sale in Bridge Street, Stiffkey, Wells-next-the-Sea, Norfolk, NR23 — £750,000 • 3 bed • 2 bath • 1303 ft²
3 bedroom cottage for sale in Stiffkey, NR23 — £780,000 • 3 bed • 1 bath • 1773 ft²
7 bedroom semi-detached house for sale in High Street, Cley, Holt, Norfolk, NR25 — £1,250,000 • 7 bed • 6 bath • 3116 ft²
3 bedroom detached house for sale in Bridge Street, Stiffkey, Wells-next-the-Sea, Norfolk, NR23 — £900,000 • 3 bed • 3 bath • 1449 ft²
4 bedroom bungalow for sale in Rectory Hill Cottage, Cley, Norfolk, NR25 — £1,200,000 • 4 bed • 4 bath • 2492 ft²










































































































