Large five-bedroom house with 120ft private west-facing garden and double garage.
Five double bedrooms and master ensuite, approx. 2,293 sq ft
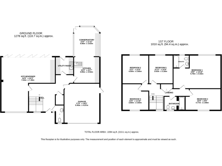
Located in one of Redbourn’s most sought-after roads, this extensively remodelled five-bedroom detached house offers generous family living across approximately 2,293 sq ft. The ground floor’s large open-plan reception and modern kitchen/breakfast room flow into a bright conservatory, creating a social heart with direct access to a private, west-facing 120ft rear garden. The master suite benefits from an ensuite and pleasant garden views, while four further double bedrooms provide flexible accommodation for children, guests or a home office.
The property has been newly renovated to a high standard and includes a double garage, gravel driveway with plentiful off-street parking, and fast broadband — useful for commuters and home workers. Its central village location means shops, amenities and well-regarded schools are all within a short walk, while Harpenden and St Albans are an easy drive for wider services and rail links to London.
Practical points are set out plainly: there are two bathrooms serving five bedrooms, council tax is relatively high, and the double glazing was installed before 2002 (so replacement may be a future cost). The house sits on a large plot with clear potential for extension or reconfiguration (subject to the usual consents) if additional living space is desired.
Overall, the property suits a growing family seeking ready-to-move-in accommodation in an affluent village setting, or a purchaser looking for a long-term family home with scope to personalise and expand.
4 bedroom detached house for sale in Cumberland Drive, Redbourn, St. Albans, AL3 — £750,000 • 4 bed • 3 bath • 1550 ft²
4 bedroom detached house for sale in Hemel Hempstead Road, Redbourn, St. Albans, AL3 — £600,000 • 4 bed • 1 bath • 1392 ft²
4 bedroom semi-detached house for sale in Crouch Hall Gardens, Redbourn, St. Albans, AL3 — £900,000 • 4 bed • 3 bath • 1852 ft²
4 bedroom detached house for sale in Rickyard Meadow, Redbourn, AL3 — £975,000 • 4 bed • 3 bath • 2076 ft²
5 bedroom detached house for sale in Cavan Road, Redbourn, St. Albans, Hertfordshire, AL3 — £950,000 • 5 bed • 3 bath • 1720 ft²
5 bedroom detached house for sale in Crouch Hall Lane, Redbourn, St. Albans, Hertfordshire, AL3 — £1,450,000 • 5 bed • 2 bath • 2294 ft²


































































































