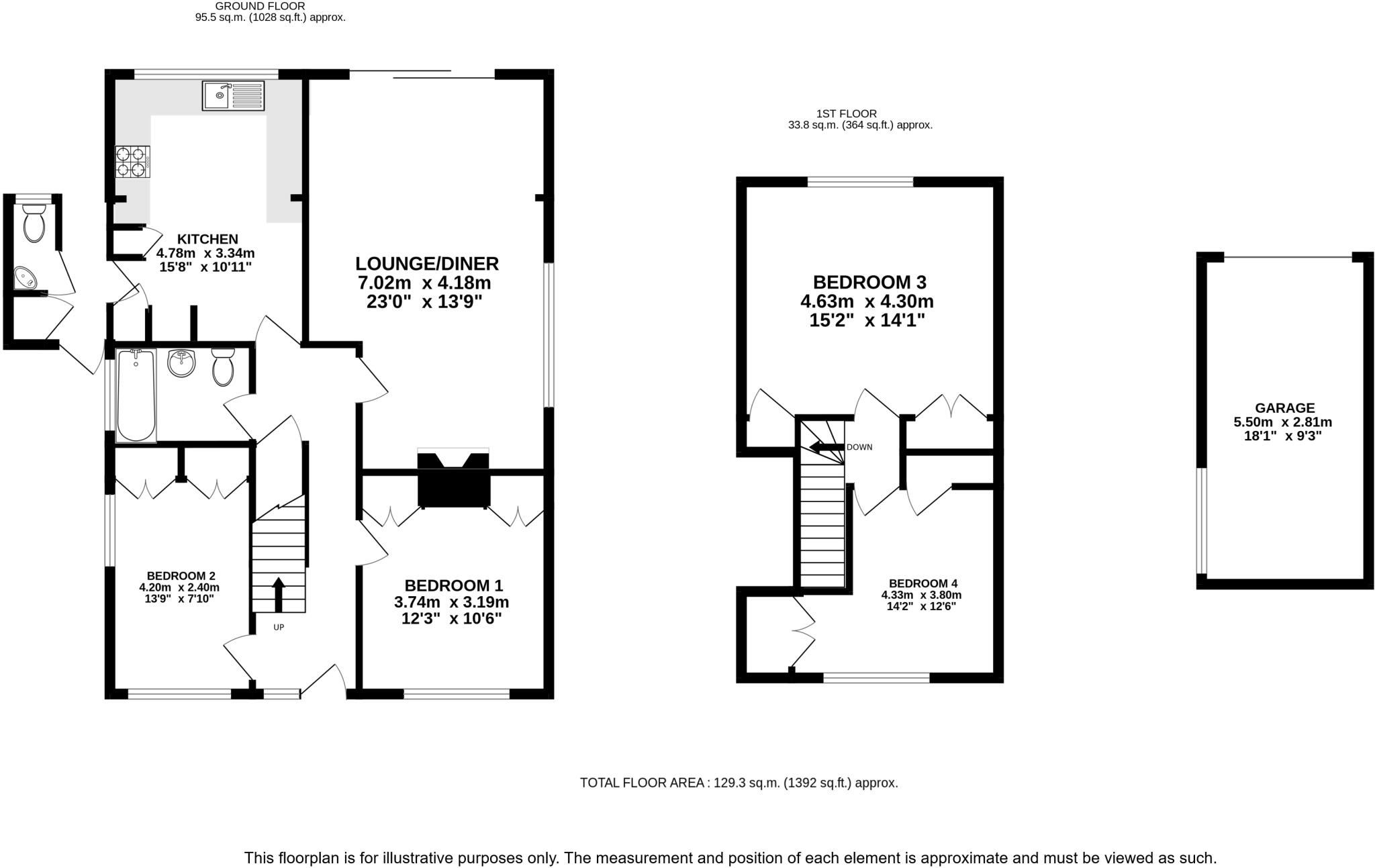
Four double bedrooms across two floors
Set back from Hemel Hempstead Road with generous off-street parking and a detached garage, this four-double-bedroom detached home suits growing families seeking space and scope. The ground floor offers a large living/dining room and an eat-in kitchen that, while functional, shows 1970s fittings and presents clear renovation potential. Upstairs are two further double bedrooms with built-in storage and two front double bedrooms served by a single family bathroom.
The south-facing rear garden is private and lawned with a patio and timber shed — ideal for children and summer entertaining. There is an outhouse off the kitchen with a WC and storage, useful for utility purposes or subject to improvement. The plot is modest, so any extension or redevelopment would need careful planning; the property is advertised with development potential subject to planning permission (no approvals in place).
Practical points include mains gas central heating, double glazing installed post-2002, and a solid brick construction likely without cavity wall insulation. The house is offered freehold, totals about 1,392 sq ft, and sits in Council Tax Band F (2024/25). Buyers should note one family bathroom, a dated kitchen, and likely retrofit costs for modern insulation and cosmetic updating.
Located close to Redbourn Common with good road links to the M1/M25 and easy access to St Albans and Harpenden rail connections, the home combines village character with commuter convenience. It will appeal to families wanting immediate accommodation with scope to modernise and extend (STPP).
4 bedroom detached house for sale in Hemel Hempstead Road, Redbourn, AL3 — £830,000 • 4 bed • 2 bath • 2291 ft²
4 bedroom detached house for sale in Rickyard Meadow, Redbourn, AL3 — £975,000 • 4 bed • 3 bath • 2076 ft²
4 bedroom link detached house for sale in The Park, Redbourn, Hertfordshire, AL3 — £775,000 • 4 bed • 2 bath • 1872 ft²
4 bedroom semi-detached house for sale in Hemel Hempstead Road, Redbourn, AL3 — £700,000 • 4 bed • 2 bath • 1391 ft²
4 bedroom detached house for sale in Cumberland Drive, Redbourn, St. Albans, AL3 — £750,000 • 4 bed • 3 bath • 1550 ft²
3 bedroom detached house for sale in Aysgarth Road, Redbourn, St. Albans, AL3 — £625,000 • 3 bed • 1 bath • 856 ft²


































































