Flexible twin‑unit office freehold near Beckenham Junction — gated parking and immediate occupation potential.
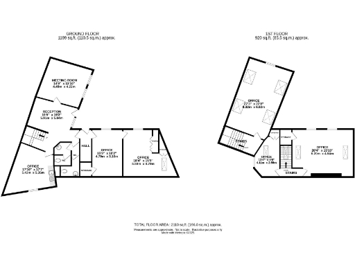
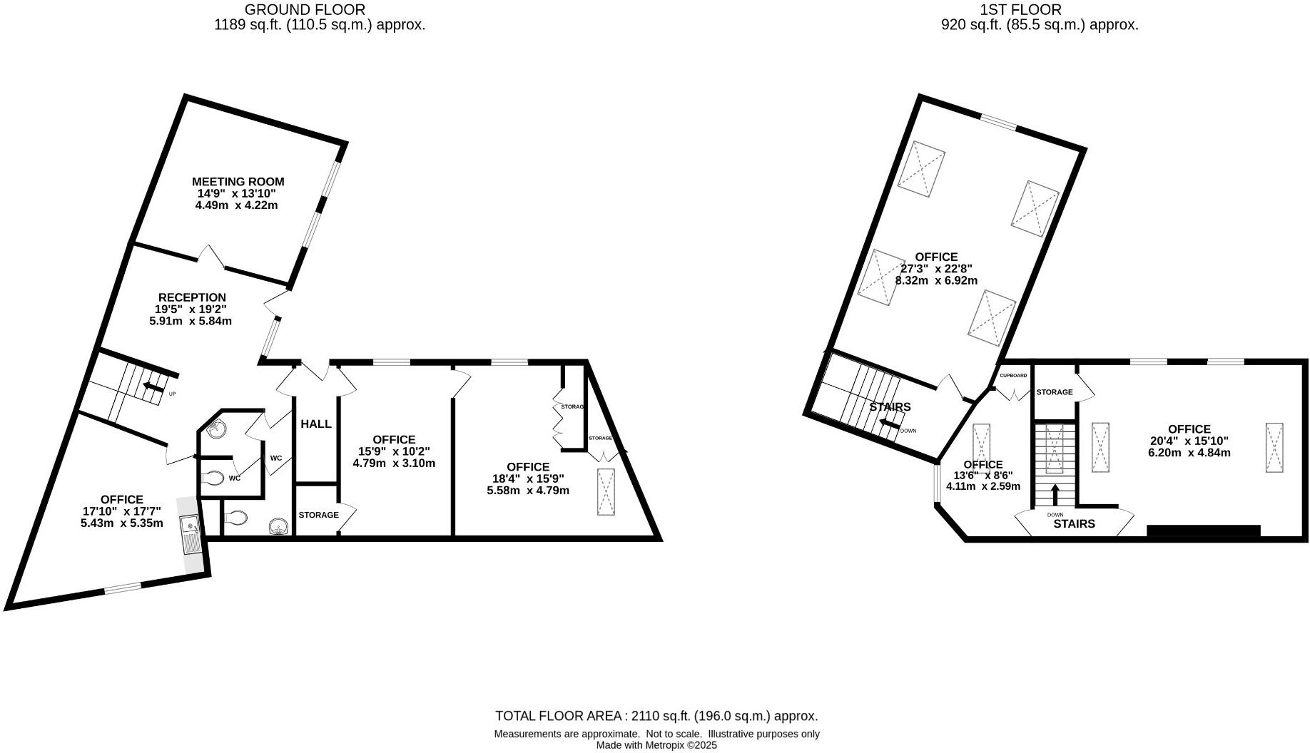
Freehold commercial office building, approx. 2,110 sq ft
Two interlinked units with separate entrances and staircases
Off‑street gated parking on large brick‑paved forecourt
Fitted CAT5 data trunking, air conditioning and kitchenette
Close walk to Beckenham Junction tram/train and town centre
Use Class E (flexible commercial uses); other uses S.T.P.A.
Business rates TBC and VAT may be payable on the sale
Some single‑glazed windows; equipment not independently tested
This freehold commercial office building on Limes Road offers a rare investment opportunity in central Beckenham. The property combines two interlinked semi‑detached buildings with dual front entrances and staircases, delivering flexible floorplates across approximately 2,110 sq ft. It is well‑appointed for immediate office occupation with fitted kitchenette, CAT5 trunking, air conditioning and engineered oak finishes.
Positioned within easy walking distance of Beckenham Junction tram/train links and the town centre, the building benefits from off‑street gated parking and very large plot size — useful for staff parking or future adaptation. The current Use Class E allows a broad range of commercial uses; other uses may be possible subject to planning.
Important practical notes: business rates are to be confirmed by the buyer and VAT may be chargeable. Some windows are single glazed and not all equipment has been independently tested, so a buyer should commission usual surveys (electrical, structural, services and planning) before exchange.
Overall this is a well‑presented, chain‑free commercial freehold that will suit investors or owner‑occupiers seeking a central Beckenham base with immediate usability and medium‑term refurbishment or reconfiguration potential.
2 bedroom semi-detached house for sale in Limes Road, Beckenham, London, BR3 — £755,000 • 2 bed • 1 bath • 1007 ft²
Shop for sale in Bromley Road, Beckenham, London, BR3 — £575,000 • 2 bed • 1 bath • 2256 ft²
3 bedroom end of terrace house for sale in Croydon Road, Penge, London, SE20 — £675,000 • 3 bed • 2 bath • 1549 ft²
4 bedroom detached house for sale in The Drive, West Wickham, BR4 — £1,220,000 • 4 bed • 1 bath • 1671 ft²
4 bedroom detached house for sale in Baylis Place, Bromley, London, BR1 — £1,625,000 • 4 bed • 2 bath • 2396 ft²
1 bedroom flat for sale in High Street, Penge, Bromley, SE20 — £240,000 • 1 bed • 1 bath • 495 ft²










































































