**Standout Features:**
- Mixed-use Victorian terraced building
- Ground floor commercial premises with basement
- Split-level 2-bedroom residential apartment above
- Generously sized southerly aspect rear garden
- Full refurbishment required
- Excellent location near Beckenham High Street
- Potential for multiple uses or rental income
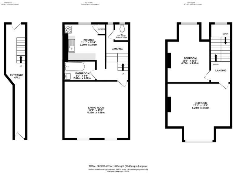
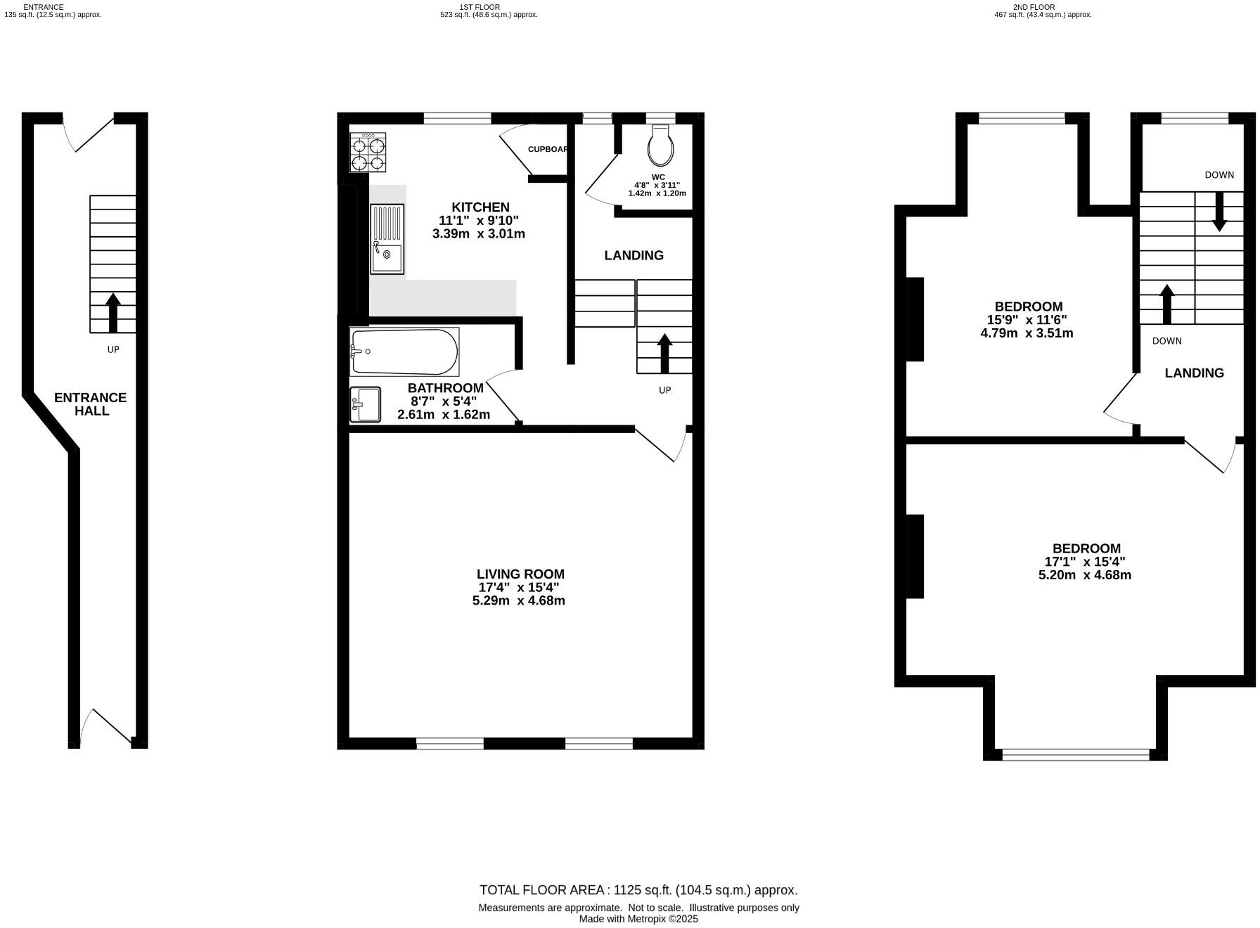
This rare mixed-use Victorian property presents an exciting opportunity for investors or first-time buyers looking to create their ideal space in a prime Beckenham location. The ground floor commercial premises, previously used as an off-licence, spans approximately 1,131 sq. ft. and is complemented by a spacious basement and a delightful southerly aspect garden. The upper-level features a charming 2-bedroom split-level apartment offering approximately 1,125 sq. ft. of living space, featuring high ceilings and large windows that enhance its character.
While the property requires significant refurbishment, it boasts tremendous potential for customization to meet residential or commercial needs. Situated in a bustling shopping parade close to local pubs and excellent schools with outstanding Ofsted ratings, this property appeals to families and professionals alike, making it perfectly positioned for future growth. **Act quickly—opportunities like this, especially in such a desirable area, are rare!**
Commercial property for sale in Limes Road, Beckenham, London, BR3 — £775,000 • 1 bed • 2 bath • 2110 ft²
High street retail property for sale in 70 Rainham Road, Rainham, Havering, London, RM13 — £450,000 • 1 bed • 1 bath • 526 ft²
2 bedroom semi-detached house for sale in Limes Road, Beckenham, London, BR3 — £755,000 • 2 bed • 1 bath • 1007 ft²
4 bedroom terraced house for sale in Clevedon Road, Penge, London, SE20 — £850,000 • 4 bed • 2 bath • 1442 ft²
Shop for sale in 123-125 High Street, Beckenham, Kent, BR3 — £337,500 • 1 bed • 1 bath • 450 ft²
Commercial property for sale in Bromley, Kent, BR2 — £625,000 • 1 bed • 1 bath • 473 ft²






























































































