Immediate rental income with refurbishment upside for committed investors.
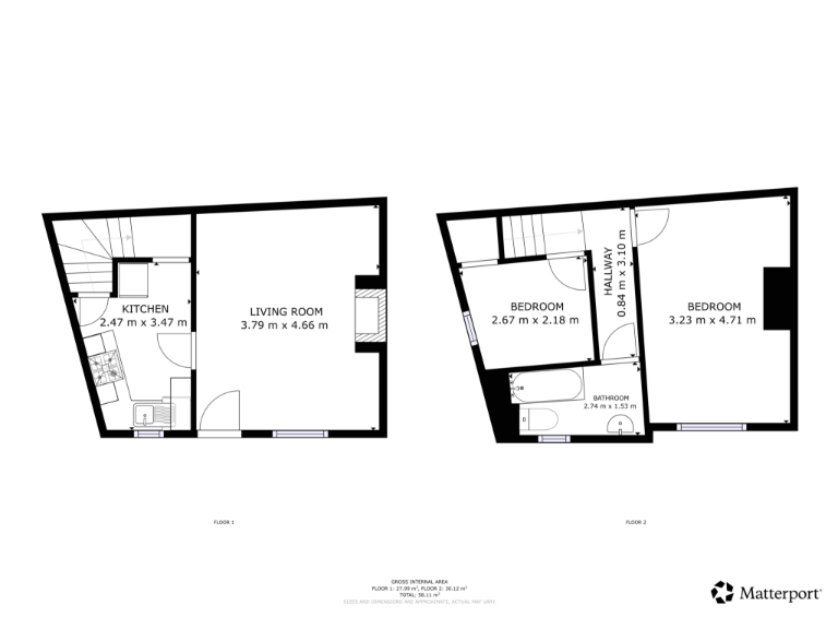
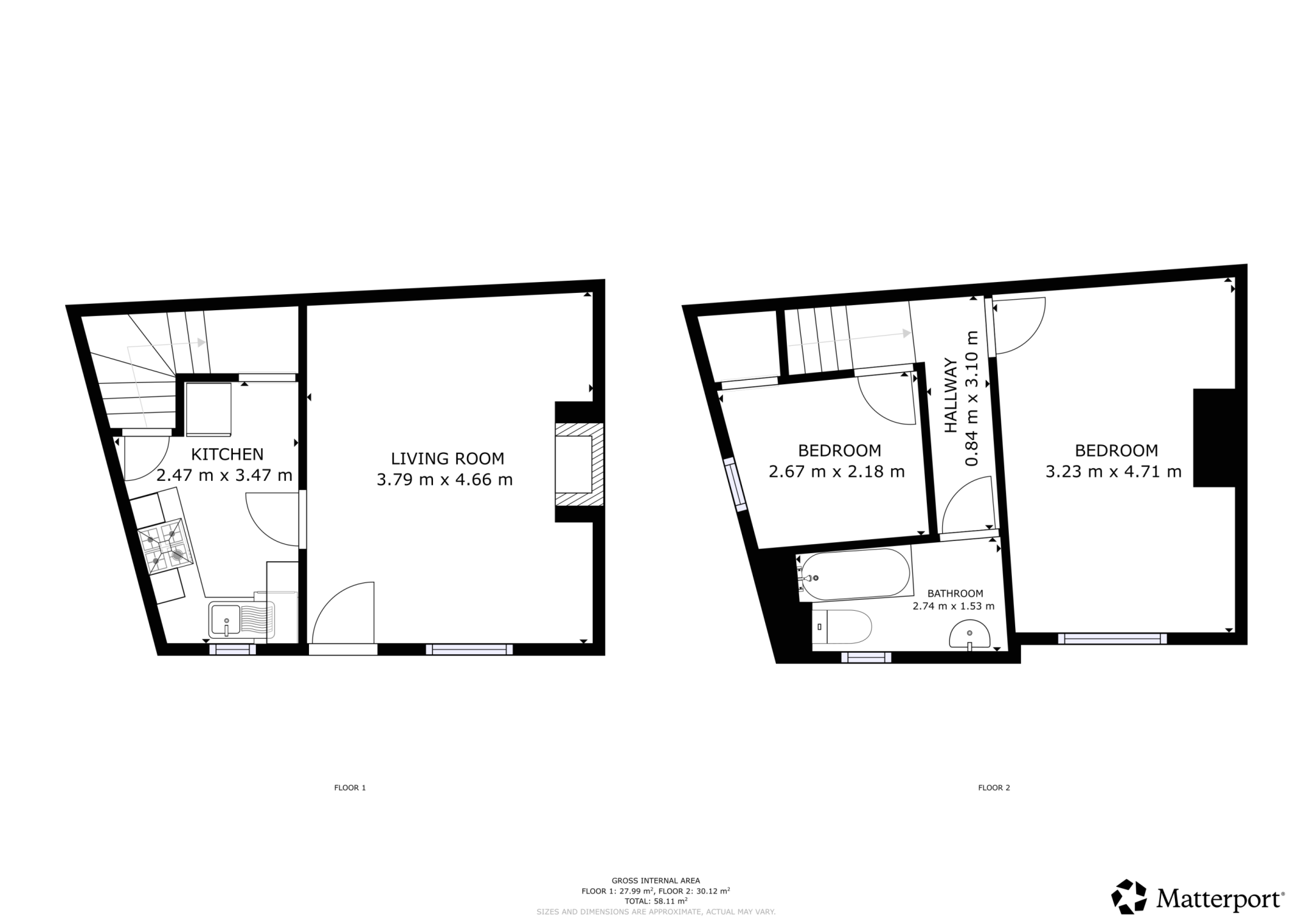
Two-bedroom Victorian end-terrace with period features and high ceilings
Freehold tenure; currently let with long-term tenant in situ
Annual gross rental income £7,200 (income confirmed)
Small overall size and very small private rear garden only
Dated condition; requires renovation and possibly damp/roof checks
Area shows high crime and deprivation; factor local demand risks
On-street parking only; no substantial front garden or off-street parking
Buyers’ premium applies to secure purchase; check Let Property Pack
This end-terraced Victorian house in Wibsey, Bradford, is presented as a straightforward buy-to-let opportunity with a long-term tenant in situ. The property is freehold, offers two bedrooms, standard communal street parking and a small private rear garden. It currently produces an annual gross income of £7,200 and should appeal to investors seeking immediate rental income and potential uplift after refurbishment.
The building is period stone-built with high ceilings in principal rooms, but the interior and exterior are described as dated and in need of renovation. Expect typical Victorian-era issues such as worn flooring, cosmetic wear, and possible need for targeted repairs; a damp inspection, redecoration and modernisation will likely be required to maximise rent or resale value.
Location strengths include proximity to local shops, schools and amenities in BD6, plus excellent mobile signal and fast broadband. Material considerations: the area records higher crime and general deprivation indicators, the plot and overall living space are small, and parking is on-street only. There is an existing tenant who intends to remain, which secures near-term income but restricts vacant-possession plans.
Serious investors and developers will find the property’s yield and refurbishment potential of interest, but should factor in tenant transfer, potential refurbishment costs and a buyers’ premium applied to the sale. Obtain the Let Property Pack, full tenancy details, internal photos and a condition survey before committing.
2 bedroom end of terrace house for sale in School Street, Bradford, BD4 — £120,000 • 2 bed • 1 bath • 624 ft²
1 bedroom detached house for sale in Spring Street, Bradford, BD10 — £105,000 • 1 bed • 1 bath • 656 ft²
2 bedroom semi-detached house for sale in Billing View, Bradford, BD10 — £130,000 • 2 bed • 2 bath • 732 ft²
3 bedroom terraced house for sale in Marsh Street, Bradford, BD5 — £125,000 • 3 bed • 1 bath • 915 ft²
2 bedroom terraced house for sale in Cross Lane, Bradford, BD7 — £114,000 • 2 bed • 1 bath • 570 ft²
1 bedroom terraced house for sale in High Street, Bradford, West Yorkshire, BD6 — £78,400 • 1 bed • 1 bath • 398 ft²






















































