Compact buy-to-let with reliable income and refurbishment potential.
Freehold mid-terrace with traditional stone façade
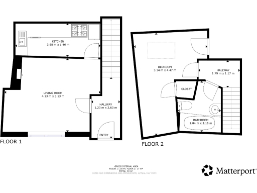
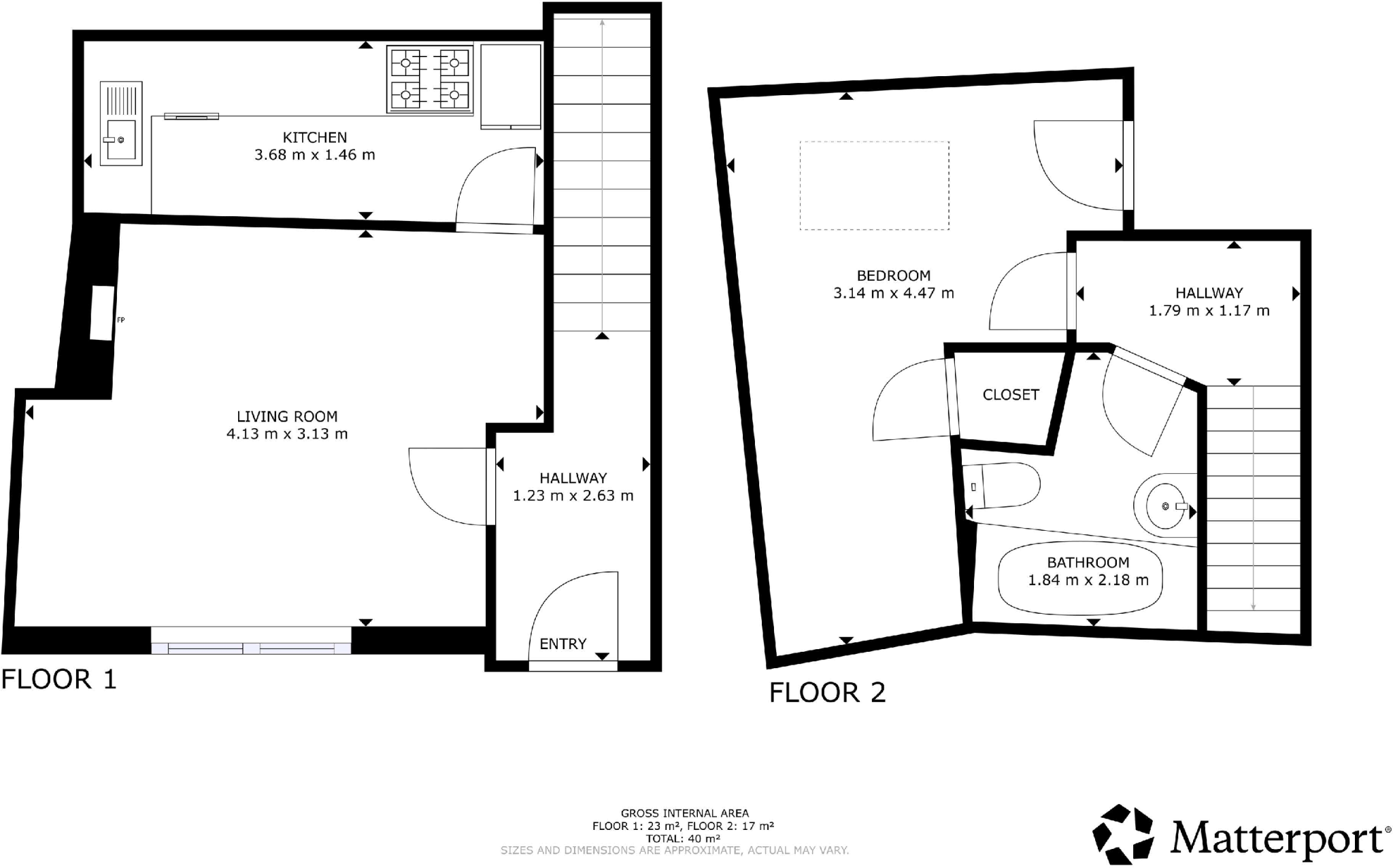
This compact mid-terrace one-bedroom property on High Street, Wibsey, is offered freehold and sits in a busy town-centre location with consistent pedestrian footfall and a long-term tenant in situ. The property currently produces a gross annual rental income of £5,400, delivering a gross yield of roughly 6.9% at the asking price of £78,400 — a straightforward buy-to-let addition for an investor seeking immediate income.
Externally the stone-built terrace presents as a traditional West Yorkshire property with a small rear courtyard; internal space is modest (approximately 398 sq ft) and will likely need some modernisation to maximise rental value. Broadband and mobile signals are good, and local amenities, shops and public transport are all within close walking distance, supporting tenant demand.
Notable risks and constraints are clear: the property is located in a very deprived area with above-average crime levels, and the neighbourhood classification suggests socio-economic challenges. The tenant has occupied the property for several years and currently intends to stay, which provides income security but limits immediate vacant possession options for refurbishment or change of use.
Prospective buyers should budget for internal upgrades and check planning, licensing or building constraints before considering conversions (HMO or short‑let). An on-site inspection, measured floorplan and the full Let Property Pack are recommended to confirm condition, exact layout and compliance requirements prior to purchase.
2 bedroom terraced house for sale in Beacon Street, Bradford, BD6 — £92,500 • 2 bed • 1 bath • 592 ft²
1 bedroom detached house for sale in Spring Street, Bradford, BD10 — £105,000 • 1 bed • 1 bath • 656 ft²
3 bedroom end of terrace house for sale in St. Helena Road, Bradford, BD6 — £140,000 • 3 bed • 1 bath • 1261 ft²
1 bedroom ground floor flat for sale in High Street, Wibsey, BRADFORD, BD6 — £70,000 • 1 bed • 1 bath • 485 ft²
2 bedroom terraced house for sale in Cross Lane, Bradford, BD7 — £114,000 • 2 bed • 1 bath • 570 ft²
2 bedroom end of terrace house for sale in School Street, Bradford, BD4 — £120,000 • 2 bed • 1 bath • 624 ft²


































































