Let property with steady income and clear refurbishment potential.
2 bedrooms, 2 bathrooms in a 732 sq ft semi-detached house
Freehold tenure with private front and rear gardens
Current gross rent £8,400 pa; tenants in situ under one year
Communal off-street parking; driveway for at least two cars
Area flagged as very deprived with high local crime rates
Buyer's Premium applied to sale; factor into purchase costs
Fast broadband and excellent mobile signal; no flood risk
Small plot and average-sized rooms; refurbishment can boost returns
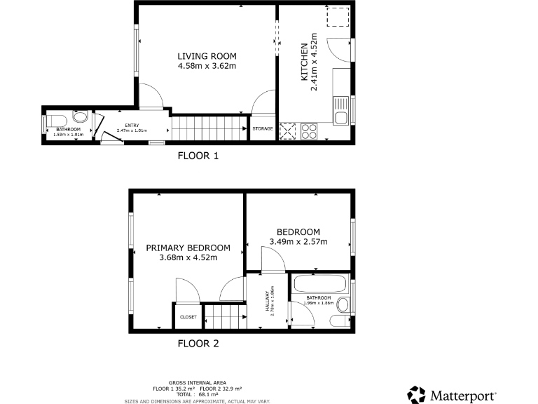
A practical two-bedroom semi-detached property offered freehold with immediate rental income. The house includes two bathrooms, a lounge, kitchen, private front and rear gardens and communal off-street parking — a simple, manageable asset for a buy-to-let portfolio. Current gross rental income is £8,400 per year; full tenancy details are available in the Let Property Pack.
The property is already let and the tenants have been in residence for under a year and report no plans to vacate. That provides continuity of income but means vacant possession is not guaranteed on completion. A Buyer’s Premium will be applied as part of the sale process — please consider this as an additional cost when assessing total purchase outlay.
Location factors materially affect investment risk and return. The postcode BD10 sits within a very deprived, high-crime area classification with mixed local school outcomes. Conversely, the property benefits from fast broadband and excellent mobile signal, straightforward maintenance (brick construction, modern windows), and no identified flood risk.
This opportunity is pitched at serious investors or developers comfortable managing tenants and operating in higher-risk neighbourhoods. The house’s average footprint (circa 732 sq ft), small plot and two-bed layout suit standard lettings; refurbishment potential exists to increase rent, but any works should account for local market conditions.
2 bedroom end of terrace house for sale in School Street, Bradford, BD4 — £120,000 • 2 bed • 1 bath • 624 ft²
2 bedroom semi-detached house for sale in Thornton Road, Bradford, BD8 — £113,000 • 2 bed • 1 bath • 753 ft²
3 bedroom detached house for sale in Queensbury Square, Bradford, BD13 — £172,000 • 3 bed • 2 bath • 872 ft²
3 bedroom terraced house for sale in Marsh Street, Bradford, BD5 — £130,000 • 3 bed • 1 bath • 915 ft²
1 bedroom detached house for sale in Spring Street, Bradford, BD10 — £110,000 • 1 bed • 1 bath • 656 ft²
2 bedroom terraced house for sale in Cross Lane, Bradford, BD7 — £114,000 • 2 bed • 1 bath • 570 ft²


































































































