Compact, ready-to-move-in flat beside village streams and local amenities.
Over-55s retirement apartment, first-floor position
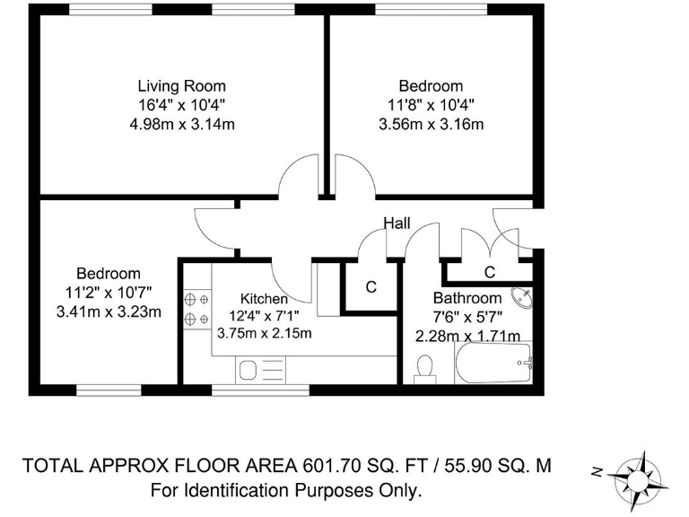
A bright, first-floor two-bedroom apartment set in a peaceful part of Eynsford village, offered exclusively for buyers aged 55 and over. The living room faces nearby streams and small waterfalls, bringing a calming outlook to everyday life. The layout gives flexibility — two double bedrooms or one bedroom plus a separate dining room — and the flat is presented ready to move into.
Practical features include gas central heating, double glazing and a dedicated off-street parking space, with additional visitor parking nearby. The development sits in landscaped grounds with pleasant walks and is close to local shops, bus stops and well-rated schools. Fast broadband is available for those who want to stay connected.
Important facts to note: the property is leasehold and sold chain-free; the overall internal size is small at about 601 sq ft; the site falls within a high flood risk area. Crime levels are above average locally, so consider personal security measures and insurance costs. Despite these factors, the flat offers low-maintenance, village-centre living and good potential for someone looking to downsize into a comfortable, ready-to-live-in home.
2 bedroom apartment for sale in Old Mill Close, Eynsford, Dartford, Kent, DA4 — £182,000 • 2 bed • 1 bath • 646 ft²
2 bedroom apartment for sale in Old Mill Close, Eynsford, Dartford, Kent, DA4 — £275,000 • 2 bed • 1 bath • 646 ft²
2 bedroom apartment for sale in Old Mill Close, Dartford, DA4 — £300,000 • 2 bed • 1 bath
2 bedroom ground floor flat for sale in Old Mill Close, Eynsford, Kent, DA4 — £250,000 • 2 bed • 1 bath • 593 ft²
2 bedroom apartment for sale in Rowhill Road, Hextable, Swanley, BR8 — £375,000 • 2 bed • 2 bath • 815 ft²
2 bedroom apartment for sale in Alexandra Walk, Prince Charles Avenue, South Darenth, DA4 — £160,000 • 2 bed • 2 bath • 699 ft²






































































