Create a bespoke family home with large secluded grounds and extension consent.
- Semi‑detached two-bedroom cottage on a generous secluded plot
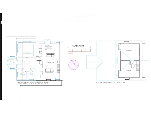
- Planning consent granted for single-storey extension (PA24/01152)
- Requires full refurbishment throughout and modernisation
- Exceptionally large, mature gardens backing onto open countryside
- Dilapidated greenhouse and overgrown patio area needing attention
- Two separate septic tanks within the curtilage (private drainage)
- Low to standard ceiling heights; character beams present
- Neighbouring plots have recent planning consents (may affect views)
A semi‑detached two-bedroom cottage set on a generous, secluded plot backing onto open countryside. The house requires full refurbishment but already has planning permission for a single-storey extension (Cornwall Council PA24/01152) to significantly increase ground-floor living space.
Inside offers a traditional layout: sitting room, kitchen/breakfast room, shower room and two double bedrooms above. Low to standard ceilings, some original beams and an untested gas fire in the fireplace give character but the property will need comprehensive updating to modern standards.
The gardens are the standout feature — unusually large for a cottage, well planted with mature trees and shrubs, with two main lawned areas, an overgrown patio, a dilapidated greenhouse and a useful block-built outhouse. There are two septic tanks within the curtilage (one serving this property and one for the neighbour).
This is an attractive project for a family or buyers wanting a countryside home with scope to create a bespoke layout and increase value. Note neighbouring planning consents for new-build and additional works nearby; connection to mains utilities is present but drainage is private.
2 bedroom cottage for sale in Crowntown, Helston, TR13 — £280,000 • 2 bed • 1 bath • 2217 ft²
2 bedroom detached house for sale in Lowertown, TR13 — £420,000 • 2 bed • 1 bath • 539 ft²
4 bedroom cottage for sale in Sparnon Lane, Carleen, TR13 — £695,000 • 4 bed • 2 bath • 2078 ft²
5 bedroom detached house for sale in Gweek, TR12 6UH, TR12 — £675,000 • 5 bed • 2 bath • 1807 ft²
4 bedroom detached house for sale in Carnkie, TR13 — £650,000 • 4 bed • 2 bath • 1522 ft²
2 bedroom semi-detached bungalow for sale in Boquio Farm, Farms Common, TR13 — £395,000 • 2 bed • 2 bath • 834 ft²


















































































































































